JA之家/工作室
JA House / STUDIOKAS
被动式设计与自然融合:JA House 项目最令人称道之处在于其对被动式设计策略的巧妙运用。设计师充分考虑了当地气候条件,通过交叉通风、定向开口以及对阳光的有效控制,营造了一个舒适宜人的室内环境。建筑师巧妙地利用自然光,减少了对人工照明的依赖,从而降低了能源消耗,体现了可持续设计的理念。这种设计手法不仅提升了居住体验,也展现了建筑师对环境的尊重和对可持续发展的承诺,是现代建筑设计的重要发展方向。
空间布局的巧妙与灵活性:项目在空间布局上展现了卓越的创造力。设计师将功能空间划分为四个独立的“盒子”,并通过中央的空隙连接,这个空隙不仅引入了充足的自然光线,也促进了空气的流通。这种开放式的设计理念,使得室内空间通透明亮,营造了宜人的居住氛围。同时,建筑师还通过楼层之间的细微错层、木制露台的设计,以及灵活的开合式分隔面板,增强了空间的灵活性和互动性,满足了居住者对多样化生活方式的需求。
对地域文化和居住体验的深度思考:JA House 不仅仅是一栋建筑,更是一个对居住体验和地域文化深刻思考的体现。建筑师从地块的朝向、当地的热带气候特点出发,运用现代热带风格的设计语言,创造出既具现代感又融入当地特色的建筑。项目强调“家”的品质,关注居住者在空间中的感受。设计师通过对光线、通风、材料和空间布局的精心设计,营造了一个舒适、开放、充满生机的居住环境,体现了建筑师对居住者生活品质的关注和对美好生活的向往。

© Mario Wibowo Photography Studio

© Mario Wibowo Photography Studio
建筑师提供的文字描述JA House在房子里灌输透明度和沉思性。采用被动设计技术的集成房屋建筑概念是解决这一日益严重问题的一种方法。交叉通风,设有位置良好的开口,以确保舒适的空气交换量,将暖空气向上引导并释放。与自然一起照明,减少对人工照明的依赖,从而降低能耗。
Text description provided by the architects. JA House instills transparency and contemplativeness in the house. The concept of integrated house architecture with passive design technology emerged as a solution to this ever-growing problem. Cross ventilation, arranged with well-placed openings to ensure a comfortable amount of air exchange, channels warm air upwards and releases it. Together with nature in lighting to reduce dependence on artificial lighting and thus reduce energy consumption.

© Mario Wibowo Photography Studio
在一个年轻家庭的人生旅程中,呈现第一个“家”是一个特殊的步骤和共同思考。在前世,在仓库综合体中教育和抚养两个孩子,在大跨度仓库建筑中生活大约五年是必要的,实际上是各种可能性中的一种选择。
Presenting the first "home" house in the life journey of a young family is a special step and thought together. In a previous life, educating and raising two children in a warehouse complex and living for about five years in a large-span warehouse building was a necessity and is actually a choice among all kinds of possibilities that will be passed.

© Mario Wibowo Photography Studio
“占用”的质量与建筑中专门规划的空间中居民的存在密切相关。居民的生活如何在这些空间中顺利流动变得重要而至关重要。在他们的新家中,空间质量的转变与希望、“占据”和“家”的质量是独立存在的。
The quality of "occupying" is closely related to the presence of the existence of residents in the spaces in the building that are specially planned. How the residents' lives flow well in these spaces becomes important and vital. The transition of space quality with hope, the quality of "occupying" and "home" are present by themselves in their new home.

© Mario Wibowo Photography Studio
设计理念从地块的朝向到入射阳光的方向。炎热和季风影响着建筑,是安排内部功能的起点。设计了一种特殊的形状,可以阻挡来自西方的热量进入主客厅,这是一个接待露台,前面有一棵非常大的现有树木。通过制作一个略微陡峭的屋顶坡度和宽阔的悬垂物来抵消西方阳光的热量。
The design concept starts from the orientation of the plot to the direction of the incoming sunlight. Heat and monsoon winds affect the building and are the starting point for arranging the interior functions. A special shape is designed that will block heat from the west from entering the main living room, a reception terrace with a very large existing tree in front of it. The counteracting of the heat from the western sun by making a slightly steep roof slope with a wide overhang.

© Mario Wibowo Photography Studio
现代热带风格的悬挑屋顶提供了抵御热带阳光和雨水的保护。两者都试图分别呼吸乡土建筑,在墙壁和非墙壁之间建立一种关系,并仍然使用灵活的开合主题面板分隔物来连接室内外空间。
A modern tropical approach with an overhanging roof provides protection against tropical sunlight and rain. Both try to breathe separately about vernacular architecture, create a relationship between walls and non-walls, and still use flexible open-close-motif panel dividers to connect the interior and exterior spaces.

© Mario Wibowo Photography Studio

Floor Plan 1F

East - West Section

© Mario Wibowo Photography Studio
功能空间区域分为4个盒子,中间有一个隔板,呈大空隙形式,阳光从上方直接进入。屋顶在空隙中开了一个特殊的孔,将自然光均匀地传播到房屋的核心,使房屋的每个功能都能很好地接收自然光和通风。
The functional space zones are divided into 4 boxes with a separator in the middle in the form of a large void where sunlight enters directly from above. The roof is made with a special hole in the void to spread natural light evenly in the core of the house so that each function of the house can receive natural light and ventilation well.

© Mario Wibowo Photography Studio
房子的内部设计是开放和宽敞的,有四个区域和主楼梯所在的交叉通道。一楼的功能是客厅和办公室,以及从道路北侧和西侧单独出入口的服务区。
The interior of the house is designed to be open and spacious with four zones and cross circulation where the main stairs are placed. The functions on the 1st floor are the living room and office, as well as the service area with separate door access from the north and west sides of the road.

© Mario Wibowo Photography Studio
楼层之间的细微差异为每个房间提供了不同的视觉效果和天花板高度。木制露台有助于将房间彼此隔开,并可直接通往游泳池。房子的中心区域与餐厅和干净的厨房相连,在中间有一个明亮的空隙。
The difference between floors with a slight split level provides different visuals and ceiling heights for each room. The wooden terrace helps separate the rooms from each other and has direct access to the swimming pool. The central area of the house is connected to the dining room and clean kitchen with a light void in the middle.

© Mario Wibowo Photography Studio

© Mario Wibowo Photography Studio

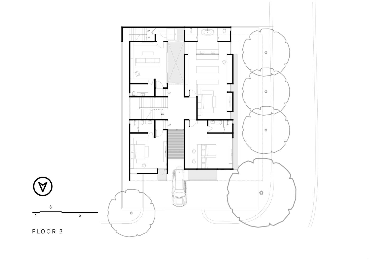
Floor Plan 3F

© Mario Wibowo Photography Studio
在三楼,每层的房间都可以通过有效的流通路径相互连接。三楼的上墙与西侧的多功能厅和主卧室融为一体,采用宽窗设计,但被长长的屋顶屋檐遮蔽。从窗户望出去,你可以看到日落,而不必感到灼热,也不必被它的光线所迷惑。
On the third floor, the rooms on each floor can be connected to each other with effective circulation paths. The upper wall on the third floor, which is integrated with the multifunctional room and the master bedroom on the west, has a wide window design but is shaded by a long roof eave. From the window, you can see the sunset without having to feel hot and dazzled by the effects of its rays.

© Mario Wibowo Photography Studio