艾尔利海滨别墅/Glide Bautovich
Airlie Beach House / Glyde Bautovich
通风与遮阳的巧妙结合: 项目最突出的亮点在于其对当地气候的深刻理解和应对。设计师巧妙地利用高层空间捕捉海风,结合木质遮阳阳台和巨大的屋顶悬挑,创造出良好的通风条件和遮阳效果,从而减少了对空调的依赖,体现了对可持续设计的实践。这种设计不仅优化了居住体验,也与当地炎热潮湿的气候条件完美契合,体现了对建筑与环境的和谐统一的追求。内部空间与外部阳台的无缝连接,模糊了室内外的界限,营造出开放、轻松的氛围,更进一步提升了居住的舒适度。
材料的本土化与景观的融合: 项目在材料的选择上,充分考虑了当地的实际情况和业主的需求。混凝土和砌块的选择,不仅考虑到飓风地区的安全性,也兼顾了成本效益。为了避免材料的“冰冷”感,设计师巧妙地引入景观、纹理和颜色, softening其硬朗。更进一步,项目将建筑与景观融为一体,例如运用三角形图案,灵感来源于当地红树根的形态,并将其抽象化应用于各个表面。这种设计手法不仅提升了建筑的美观度,也强调了建筑与周围环境的对话,体现了对地方文脉的尊重与呼应。
空间层次与社区互动: 设计师在空间布局上展现了精湛的技艺。首层空间采用了阴影下层空间设计,提供了凉爽的空气,并创造了从街道穿过房屋到大海的视野通廊。倾斜的柱子是对当地常见的She Oak树的微妙致敬,更增添了建筑的趣味性。另外,首层还设有错落有致的台阶,为居民提供了休闲交流的场所,促进了社区互动。这种设计不仅提升了房屋的实用性,也展现了设计师对社区和人居环境的关怀,使建筑成为连接居民与环境的桥梁。

© Brett Boardman

© Brett Boardman
建筑师提供的文字描述艾尔利海滩是通往降灵群岛的门户,也是大堡礁的主要旅游出发点。一个残酷的讽刺是,该镇自己的海滩在10月至5月期间不可游泳,因为那里到处都是海洋毒刺、水母和鲨鱼。因此,艾尔利海滩在主街商店后面的前滨建造了一个巨大的人造社区游泳池。大多数当地人不使用它,因为他们家里有一个游泳池。
Text description provided by the architects. Airlie Beach is the gateway to the Whitsunday Islands and is the major tourist departure point for the Great Barrier Reef. A cruel irony is that the town's own beach is not swimmable from October to May because it's full of marine stingers, jellyfish, and sharks. Because of that, Airlie Beach has built a giant man-made community pool along the foreshore, just behind the Main Street shops. Most local people don't use it as they have a pool in their house.

© Brett Boardman

axonometric

© Brett Boardman
从地质学上讲,自上一个冰河时代结束以来,今天存在的水道只有大约1万年的历史。Ngaro原住民是圣灵群岛的原始监护人,他们是澳大利亚最早有记录的土著群体之一,在该地区居住了大约9000年,留下了洞穴中的岩石艺术,特别是锤头鲨繁殖地纳拉湾。该场地被抬高,可以俯瞰珊瑚海和天空,两者融合在一起,创造出广阔的空间和两种蓝色的融合。
Geologically, the waterways that are present today have only been around for about 10,000 years since the end of the last ice age. The Ngaro Aboriginal people, the original custodians of the Whitsundays, who are one of the earliest recorded indigenous groups in Australia, inhabited the area for around 9000 years, leaving behind rock art in caves, particularly Nara Inlet, a Hammerhead Shark breeding ground. The site is elevated with commanding views of the Coral Sea and the sky, which mix together to create an expansiveness of space and a merging of two shades of blue.

© Brett Boardman
这个地区酷热难耐。湿度超出了你的想象。然而,住在那里的人并不像你想象的那么多使用空调。空调的冷空气和干燥空气与室外的热量和湿度之间的对比,给那些必须在室外工作的人带来了不平衡,就像业主一样。
The heat is dominating in this area and is often unbearable. The humidity goes beyond what you may think you can take. However, those who live there do not use air conditioning as much as you may think. The contrast between the cool and dry air of the air conditioner and the heat and humidity outside creates an imbalance for those who must work outside, as the owners do.

© Brett Boardman

© Brett Boardman

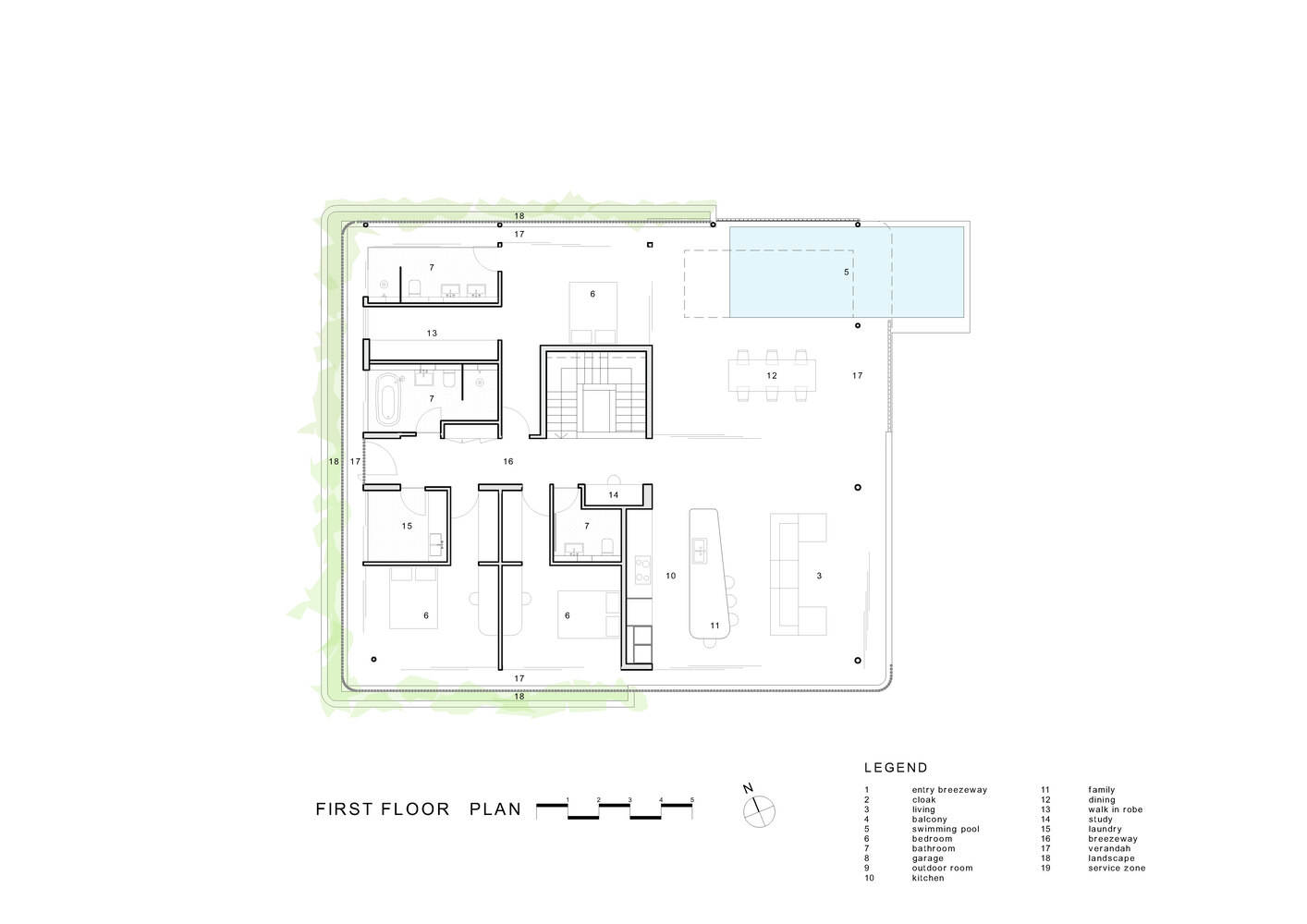
First Floor Plan

© Brett Boardman

Long Section

© Brett Boardman
因此,房子的主要客厅和卧室空间尽可能高,以捕捉海风。这些空间的边缘有木制遮蔽阳台,有时只有600毫米宽,但可以提供阴凉并最大限度地增加空气流通。几乎所有的内部空间都通向这些阳台,有巨大的可操作侧门,即使是最小的微风也能进入家中。阳台和巨大的屋顶悬挑,模糊了内部和外部空间的边缘,营造出一种开放、轻松的氛围。将游泳池高高地放置在这一层,可以与远处的珊瑚海和主要生活空间建立真正的联系。
As a result, the main living and bedroom spaces of the house are as high as possible to catch sea breezes. The spaces are edged with timber screened verandahs that are sometimes only 600mm wide but are there to provide shade and maximise air movement. Nearly all internal spaces open onto these verandahs, with big operable siding doors to allow even the smallest breezes to enter the home. The verandas, together with big roof overhangs, blur the edges of internal and external spaces, creating an open, relaxed atmosphere. Placing the pool up high on this level creates a real connection to the Coral Sea beyond and to the main living spaces.

© Brett Boardman
木屏风与阳台的一米高的混凝土仰墙不仅提供了遮荫,还为邻居提供了遮蔽,有助于将房子与外面的天空和大海的景色融为一体。
The timber screens, together with the solid metre-high concrete upturn wall of the verandah, not only provide shade but also screen the neighbours, helping to crystallise a private engagement of the house with the view of the sky and sea beyond.

© Brett Boardman

© Brett Boardman
房子的地面以一个阴凉的下层空间为特征,该空间为进入建筑物提供了较冷的空气,同时也允许从街道穿过房子看到外面的大海。支撑上方混凝土地板的摇摇晃晃的斜柱是对该地区前滨常见的She Oak树的微妙参考。undercroft交错的超大台阶让人们可以坐在外面的绿地中,阅读或喝啤酒,边走边与当地居民交谈。
The ground level of the house is characterised by a shaded undercroft space that provides cooler air to enter the building but also allows views from the street through the house to the sea beyond. The wonky, angled columns supporting the concrete floor above are a subtle reference to the She Oak trees that are often found on the foreshores of this area. The staggered, oversized steps in the undercroft allow people to sit outside ensconced in the greenery, to read, or to have a beer and talk to local residents as they walk by.

© Brett Boardman
业主们热衷于一个坚固的房子,一个在飓风地区表现良好的房子,随着时间的推移,一个会泛黄并融入景观的房子。混凝土和核心填充砌块的选择是立即决定的,特别是砌块,在该地区常用,因此成本效益相当高,但对于非建筑师来说,它可能是一种不可原谅的材料,为了软化其残酷的倾向,引入了景观、纹理和颜色。
The owners were keen on a solid home, one that performs well in cyclone areas and one that, over time, will patina and become embedded in the landscape. The choice of concrete and core-filled blockwork was decided upon immediately with blockwork in particular, commonly used in the area and therefore fairly cost effective, but it can be an unforgiving material for non architects and to soften its brutal tendencies landscape, texture and colour was introduced.

© Brett Boardman
我们和景观设计师一起,一直在讨论丛林中废墟的想法。蕨类植物、棕榈树、草和树木占据了屋顶、地下空间、墙壁和地面。根据红树林根部的形状开发了一个三角形图案,它在水线下形成一个扶壁,在大风中提供稳定性。该主题被抽象并绘制在厨房、游泳池外墙、入口通风道甚至车库门的表面上,作为一种经济高效的处理方式。
Together with the Landscape Architect, we were constantly discussing the idea of a ruin in a jungle. Ferns, palms, grasses, and trees occupy the roof, undercroft spaces, walls, and ground. A triangular motif was developed based on the shape of a mangrove tree root, which forms a buttress under the water line to provide stability in high winds. The motif was abstracted and painted onto surfaces found in the kitchen, the outside walls of the pool, the entry breezeway, and even the garage door as a cost-effective treatment.

© Brett Boardman
主楼梯与黄铜扶手的混凝土混合中加入了一种坚实的白垩色薄荷绿,这是出乎意料的、俏皮的,但同时又经久耐用。用于形成混凝土天花板的真木衬板通过反射的光线和阴影创造出银色且不断变化的纹理。你不会从假木模板衬里中得到这种东西,它很微妙,随着时间的推移,你会慢慢欣赏它。
A solid, chalky mint green colour added into the concrete mix of the main stairs paired with brass handrails is unexpected and playful but at the same time enduring and solid. Real timber lining boards used to form the concrete ceiling create a silvery and continually changing texture from reflected light and shadows. You don't get that from fake timber form liners, it is subtle, something you grow to appreciate over time.

© Brett Boardman
这所房子有一种开放而轻松的氛围,这可能是用来描述房子的主人Jonno、Lisa和他们的两个孩子的角色。然而,他们在设计过程中态度严谨,对新想法持开放态度,在建筑方面具有技术头脑,并欣赏精心打造的空间。他们热衷于与邻居、当地人或任何感兴趣的人讨论房子。他们关心建筑,喜欢它如何与当地社区进行对话。从表面上看,这座房子坚固、持久、有趣,但在更深的层次上,它具有强烈的地方感和与空间的联系。
The house has an open and relaxed atmosphere which could be the character used to describe the house's owners, Jonno, Lisa, and their two children. They were, however, rigorous in their approach to the design process, open to new ideas, technically minded in construction, and appreciative of crafted spaces. They are keen to discuss the house with their neighbours, locals, or anyone who is interested. They care about architecture and love how it creates a dialogue with their local community. On the surface, the house is solid, enduring, and playful, but on a deeper level, it has a powerful sense of place and connection to space.

© Brett Boardman