卡尔姆住宅/二五五建筑师
Kalm Residence / Two Five Five Architects
设计理念与社区营造:卡尔姆住宅的核心亮点在于其对“合住”理念的深刻诠释。项目并非简单地将两户人家安置在同一屋檐下,而是精心设计了私人空间与共享空间的平衡,从而促进社区感。建筑师通过建筑语言的微妙处理,例如在外立面上材料的对比、色彩的呼应,以及共享庭院的设计,巧妙地营造了既独立又统一的居住体验。共享花园和开放式布局不仅提供了充足的社交空间,也促进了家庭间的互动,形成了一种独特的生活方式,是可持续生活理念的良好实践,也为未来的合住项目提供了宝贵的经验。
材料与细节的精致:项目的精髓之一在于其对材料和细节的极致追求。外立面的深色砖块与袋装抹灰墙的对比,营造出一种大胆而精致的视觉效果。尤其是黑色面砖的“鸟嘴接合”处理,这种源于石材工艺的技术被巧妙地应用于砖块,赋予其精致、瓷砖般的外观,体现了建筑师对品质的极致追求。内部空间同样注重细节,温暖的木地板和干净的线条营造出温馨、现代的氛围。这种对材料和工艺的精湛运用,提升了建筑的整体质感,也展现了建筑师对设计美学的深刻理解,使建筑不仅仅是居住的场所,更是一件艺术品。
空间布局与可持续性:卡尔姆住宅在空间布局方面展现了出色的设计能力。开放式的内部布局营造了流畅的连接,同时预留了家庭成长的空间。共享花园作为核心,通过精心设计的景观和隐私元素,为每个家庭提供了专属的户外空间,同时促进了邻里间的互动。建筑设计还融入了可持续性考量,比如对自然采光和通风的利用,以及对材料的选择等。这种综合性的设计方法,不仅提升了居住品质,也体现了建筑师对可持续发展理念的实践,为未来的建筑设计提供了有益的启示。这种设计理念与空间布局的完美结合,使得该项目具有极高的可复制性和推广价值。

© Paris Brummer

© Paris Brummer
建筑师提供的文字描述两套房子,一处房产,一种共享的生活方式——位于兰德堡林登的卡尔姆住宅是一种深思熟虑的合住方式,两个家庭聚在一起建立可持续的生活方式。最初的愿景已经发展成为一个充满共同经历和挑战的家。
Text description provided by the architects. Two homes, one property, and a shared way of living—Kalm Residence, located in Linden, Randburg, is a thoughtful take on co-housing, where two families come together to build a sustainable lifestyle. What started as a vision has grown into a home filled with shared experiences and challenges.

© Paris Brummer

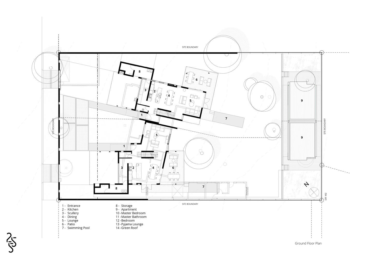
Ground Floor Plan

© Paris Brummer

© Paris Brummer
卡尔姆住宅的设计考虑到了个性和联系,精心平衡了私人和共享空间,让每个家庭都能享受自己的家,同时感受到社区的氛围。这一理念延伸到建筑细节,深思熟虑的设计元素在两座房子之间创造了一种对话,在庆祝其独特身份的同时加强了它们的统一性。
Designed with both individuality and connection in mind, Kalm Residence carefully balances private and shared spaces, allowing each family to enjoy their own home while embracing a sense of community. This philosophy extends to the architectural details, where thoughtful design elements create a dialogue between the two houses, reinforcing their unity while celebrating their distinct identities.

© Paris Brummer
房屋的外观展示了材料的鲜明对比,深色砖块和袋装抹灰墙创造了一个大胆而精致的立面。战略性地放置的大窗户可以让人瞥见迷人的内部,同时与郁郁葱葱的环境保持着强烈的联系。前院既是一个边界,也是一个统一的元素,将两个住宅无缝连接起来,增强了共同生活空间内的凝聚力。卡尔姆西区以其绿色瓷砖而闻名,通过加入一些黄色瓷砖巧妙地反映了卡尔姆东区——这一设计细节在卡尔姆东区得到了深思熟虑的呼应,在视觉上将两座房屋联系在一起。
The exterior of the houses showcases a striking contrast of materials, where dark bricks and bagged plastered walls create a bold yet refined façade. Large, strategically placed windows offer glimpses into the inviting interiors while maintaining a strong connection to the lush surroundings. Serving as both a boundary and a unifying element, the forecourt seamlessly links the two homes, enhancing the sense of cohesion within the co-living space. Kalm West, distinguished by its green tiles, subtly reflects Kalm East through the inclusion of a few yellow tiles—a design detail that is thoughtfully echoed on Kalm East, visually tying the two homes together.

© Paris Brummer

Section A

© Paris Brummer

© Paris Brummer
为了增加设计的独特性,黑色面砖被精确地切割成45度角,距离边缘仅10毫米。这种被称为“鸟嘴接合”的技术传统上用于大理石和石雕,使砖块具有精致的、近乎瓷砖般的外观。
Adding to the uniqueness of the design, the black face brick has been precisely cut at a 45-degree angle, just 10mm from the edge. This technique, known as a 'bird-mouth joint,' is traditionally used in marble and stonework, giving the bricks a refined, almost tile-like appearance.

© Paris Brummer
进入房屋后,人们会看到宽敞、光线充足的内部,开放式布局增强了内部空间,创造了流动和连接,同时为家庭扩张留下了成长空间。温暖的木地板和干净的线条增添了现代美学,塑造了一个现代而迷人的空间。共享花园空间成为一个焦点,精心设计的小径蜿蜒穿过郁郁葱葱的绿地和充满活力的花坛,同时通过景观和遮蔽元素创造隐私,确保每个家庭都能在自己的个人户外空间中尽情享受。宽阔的露台和露台延伸了户外的生活空间,为放松和社交聚会提供了充足的空间,这是一个被设计成绿洲的地方,孩子们在这里一起玩耍,生活发生在社区中。
Upon entering the houses, one is greeted by spacious, light-filled interiors, enhanced by the open-plan layout to create flow and connection while leaving room for growth as families expand. Warm wooden floors and clean lines add to the modern aesthetic, shaping a space that is contemporary and inviting. The shared garden space becomes a focal point, featuring carefully designed pathways that wind through lush greenery and vibrant flower beds while creating privacy with landscaping and screening elements, ensuring that each family can relish in their own personal outdoor space. The expansive patios and terraces extend the living spaces outdoors, providing plenty of room for relaxation and social gatherings, a place designed as an oasis where kids play together, and life happens in the community.

© Paris Brummer
卡尔姆住宅不仅仅是一个合住项目,更是一个深思熟虑的设计和共享生活的示范。每一个细节,从精心挑选的材料到两个房子之间微妙的视觉联系,都反映了个性和团结的平衡。卡尔姆住宅反映了塑造它的旅程、挑战和欢乐——一个为连接和共同未来而设计的家。
Kalm Residence is more than just a co-housing project—it's a demonstration to thoughtful design and shared living. Every detail, from the carefully selected materials to the subtle visual connections between the two homes, reflects a balance of individuality and togetherness. Kalm Residence stands as a reflection of the journey, challenges, and joys that have shaped it—a home designed for connection and a shared future.

© Paris Brummer