峡谷屋/橙墨设计
Ravine House / OrangeInk Design
环境融合与空间策略:峡谷屋最突出的亮点在于其对环境的深刻理解和巧妙的融合。面对限制性的开发规定,设计师并未选择妥协,而是将挑战转化为机遇。通过精心规划,将户外空间融入建筑的各个层面,例如改造原有的游泳池空间,使其成为四季皆宜的露台,或者在屋顶设计观景平台。这种策略不仅最大限度地利用了场地资源,更重要的是,它将建筑与周围的峡谷景观紧密联系起来,创造出“树屋”般的独特体验。项目的精髓在于设计师将限制转化为设计元素,展现了在严苛条件下创造卓越建筑的能力。
前室概念与空间互动:项目对“前室”概念的创新运用是其另一大亮点。设计师巧妙地利用建筑和峡谷作为边界,结合周围的树冠,营造出一个独特的半开放空间,为非正式社交提供了理想场所。高架木板路的设计,以及其与自然坡度的微妙互动,不仅界定了“前室”的视觉边界,更通过悬浮的结构,最大限度地保留了自然环境。这种设计手法打破了室内外的界限,增强了空间之间的互动性,使得居住者在享受室内舒适的同时,也能感受到大自然的魅力。这种开放、包容的设计理念,是现代建筑设计的重要趋势。
细节设计与可持续性:峡谷屋在细节设计上体现了对居住体验和可持续性的关注。重新设计的楼梯不仅优化了空间布局,更通过引入140平方英尺的绿色墙,提升了室内空气质量,同时为居住者带来了视觉享受。这种设计体现了对健康、舒适和可持续的综合考虑。此外,设计师在施工过程中巧妙地利用了螺旋桩等技术,在不破坏现有树木根系的前提下,实现了木板路的悬浮设计。这些细节都展现了设计师对技术和材料的熟练运用,以及对环境的尊重。项目的精髓在于,它将实用性、美学和可持续性完美地结合在一起。

© Scott Norsworthy

© Scott Norsworthy
建筑师提供的文字描述作为当地一对夫妇的“永久”之家,一个关键的优先事项是设计一个既舒适又亲密的空间,既适合家庭,又灵活,适合招待客人和大家庭。其愿景是将一个低矮、内向、黑暗的空间改造成一个温暖、温馨、光线充足、尊重其环境的现代住宅。
Text description provided by the architects. Commissioned as a 'forever' home for a local couple, a key priority was to design a space that was comfortable and intimate enough for the family yet flexible and inviting for entertaining guests and extended family. The vision was to transform a low-slung, inward looking, dark space into a warm, welcoming light filled modern home that respects its context.

© Scott Norsworthy

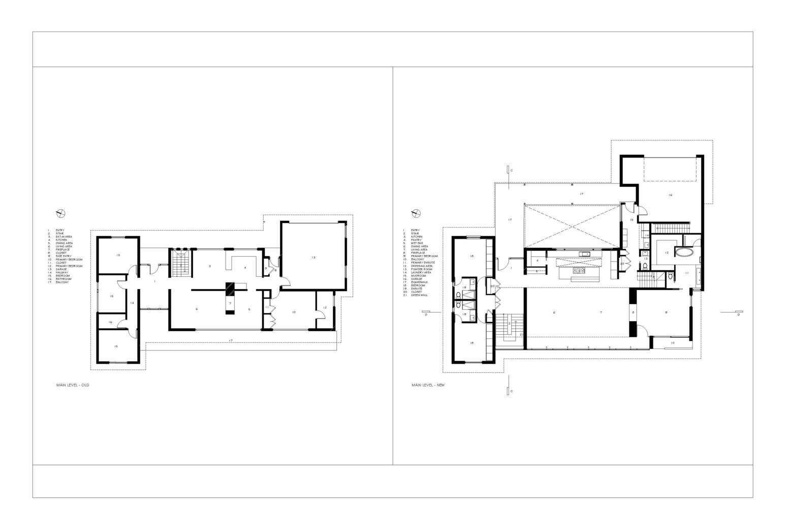
Plan - Main Level

© Scott Norsworthy
当地环保部门制定的限制性开发措施迫使该团队重新评估我们的翻修计划。住宅的三面也不允许增加地面,也不允许超出建筑围护结构的水平投影进入峡谷,唯一的例外是屋顶投影的适度余量。我们对甲板、露台和阳台的最初想法需要重新思考,因此决定在可能的情况下将这些设施放置在建筑占地面积内。精心的空间规划在各个楼层创造了小块的户外空间。在一个以前黑暗、气候可控的游泳池房间里,墙壁被拆除了,有效地将这个空间变成了一个四季皆宜的宁静露台,坐落在森林地板之上。将主住宅的屋顶线延伸到双层内部空间之外,但仍完全在建筑占地范围内,这为创造一个宁静的屋顶露台提供了机会,可以欣赏到峡谷对面的“树屋”景色。
Restrictive development measures outlined by the local conservation authority forced the team to re-evaluate our renovation ambitions. No ground plane additions were permitted on three sides of the dwelling as well, and no horizontal projections beyond the building envelope were allowed into the ravine with the only exception being a modest allowance for roof projections. Our initial ideas of decks, patios and balconies required a re-think, therefore a decision was made to position these amenities within the building footprint where possible. Careful space planning created pockets of outdoor space on all levels. Walls were removed in a previously dark, climate-controlled pool room, effectively transforming this space into a 4 season, serene patio perched just above the forest floor. Extending the main dwelling's roofline beyond the double-storey interior space, yet still fully within the building footprint, provided the opportunity to create a tranquil rooftop patio with 'treehouse' views across the ravine.

© Scott Norsworthy

© Scott Norsworthy

Sections
这种设计的一个关键方面源于房主对拥有“前室”的兴趣。非正式社交聚会可以在室内主要“活动”空间附近举行的空间。该团队决定以住宅和峡谷为外部边界建造一个前院,而周围的树冠将作为其上方的自然终点。庭院的建成边缘由一条高架木板路组成,木板路有尺寸匹配的长带状屋顶。新木板路和相邻自然坡度之间的高度略有变化,这有助于为“前室”创造一个明确的视觉边界。此外,通过在螺旋桩上设置镀锌钢梁,巧妙地避开树根,木板路有效地漂浮在自然坡度之上,为房屋入口提供了一条新的人行道,同时为下面的峡谷提供了一个引人注目的观景平台。
A key aspect of this design arose from the homeowner's interest in having a 'front room'. A space where informal social gatherings can occur in close proximity to the main 'event' space indoors. The team settled on creating a front courtyard using the dwelling and the ravine as its outer boundaries, while the surrounding tree canopy would act as its natural terminus above. The built edge of the courtyard consists of an elevated boardwalk with long ribbon-like roof of matching dimensions. The slight change in elevation between the new boardwalk and the adjacent natural grade helped create a defined visual boundary for the 'front room'. Also, by setting galvanized steel beams on helical piles strategically placed to avoid tree roots, the boardwalk effectively floats above the natural grade and provides a new-level pedestrian path to the entry of the home while offering a dramatic viewing platform into the ravine below.

© Scott Norsworthy

© Scott Norsworthy

Site
© Scott Norsworthy
现有的底层平面图对新房主来说效果很好,只需要稍作调整。现有的楼梯被移离了厨房区域,并与前入口对齐,可以看到下面的峡谷。新楼梯上有一堵140平方英尺的绿色墙,从楼梯平台一直延伸到天花板。在楼梯的底部,一个淡水池通过一个谨慎的滴灌系统积极地为绿色的墙壁供水。绿色墙壁不仅补充了邻近的自然环境,还提高了所有居住者的室内空气质量。
The existing ground floor plan worked well for the new homeowners and required only minor adjustments. The existing stair was relocated away from the kitchen area and positioned in line with the front entry offering a view onto the ravine below. The new stair is host to a 140 sq.ft green wall extending from the stair landing up to the ceiling. At the bottom of the stairs, a freshwater pond actively feeds the green wall with a discreet drip irrigation system. The green wall not only complements the adjacent natural environment but also enhances indoor air quality for all occupants.
© Scott Norsworthy