De Amicis 154住宅楼/乔瓦尼·瓦卡里尼建筑
De Amicis 154 Residencial Building / Giovanni Vaccarini Architetti
项目设计理念的创新:De Amicis 154住宅楼最令人印象深刻之处在于其对传统住宅类型学的重新解读。建筑师Giovanni Vaccarini大胆地将传统的“palazzina”(多户住宅楼)概念与现代城市环境相结合,颠覆了封闭式的住宅模式。项目通过一系列重叠的住宅单元,营造出开放、通透的视觉效果,并利用宽敞的露台与城市空间连接,使得建筑与周围环境产生互动。这种设计理念不仅体现了建筑师对居住空间的创新思考,也展现了对城市公共空间的尊重和融合,为城市建筑设计提供了新的思路。
建筑与城市环境的和谐统一:该项目的精髓在于其建筑与城市环境的完美融合。通过将建筑的底层后退,仅仅占据地块的一小部分,建筑师成功地创造了与周围公共空间的连续性。这种设计策略打破了私人空间与公共空间的界限,使建筑不再仅仅是一个孤立的个体,而是成为城市肌理的一部分。此外,建筑师还巧妙地利用了视线,与周围建筑物建立视觉联系,并运用光线的设计来强化这种联系,从而赋予建筑一种融入感和参与感,实现了建筑与城市环境的和谐统一,体现了设计师对城市空间的深刻理解。
材料与细节的精妙运用:除了设计理念,De Amicis 154住宅楼在材料和细节的处理上也体现了建筑师的精湛技艺。建筑外观采用堆叠的平面和郁郁葱葱的露台,赋予了建筑独特的视觉效果。建筑师在设计中融入了对植物形态的观察与模拟,使得建筑更像一个有生命的有机体。特别是,建筑外立面采用的细长钢柱,不仅增强了建筑的垂直感,也为建筑提供了结构支撑。此外,项目通过从中心核心向外辐射的灯光设计,突出了建筑的线条,增强了建筑的视觉效果,也营造出温馨的氛围,这些都体现了建筑师对细节的极致追求。

© Anna Positano, Gaia Cambiaggi

© Anna Positano, Gaia Cambiaggi
建筑师提供的文字描述位于佩斯卡拉市中心的Via De Amicis 154的新建筑由Giovanni Vaccarini Architetti设计,重新诠释了住宅结构的概念,将传统类型学与更直接的城市环境联系在一起。位于佩斯卡拉市中心的Via De Amicis 154的新建筑由Giovanni Vaccarini Architetti设计,重新诠释了住宅结构的概念,将传统类型学与更直接的城市环境联系在一起。Giovanni Vaccarini的新建筑被设想为一系列重叠的住宅,通过围绕中心核心可变延伸的宽敞露台向城市开放。该建筑的地面从临街面后退,只占据了地块的一小部分,为与周围公共空间的连续性创造了条件。佩斯卡拉的中心建立在现代城市结构之上,亚得里亚海海岸及其线性发展是一个关键的参考。Giovanni Vaccarini的工作室多年来一直位于佩斯卡拉,他在这种背景下反复探索他的建筑理念以及塑造它的文化。Vaccarini是意大利建筑界有影响力的人物,他开发了许多作品和项目,研究私人和公共空间之间的相互作用,涵盖了不同的建筑类型和规模:住宅、学校、体育场、能源生产设施和医院。对于Vaccarini来说,佩斯卡拉市是一个实验的地方,他可以在那里修改既定的类型学。palazzina是一座多户住宅楼,也是他研究的重点,就是这样一种类型学。
Text description provided by the architects. The new building at Via De Amicis 154, designed by Giovanni Vaccarini Architetti in the center of Pescara, reinterprets the concept of a residential structure, blending traditional typology with a more direct connection to the urban environment. The new building at Via De Amicis 154, designed by Giovanni Vaccarini Architetti in the center of Pescara, reinterprets the concept of a residential structure, blending traditional typology with a more direct connection to the urban environment. Conceived as a series of overlapping residences, the new architecture by Giovanni Vaccarini opens onto the city through spacious terraces that extend variably around a central core. The building's ground level steps back from the street frontage, occupying only a minimal portion of the lot and creating the conditions for continuity with the surrounding public space. The center of Pescara is built on a modern urban fabric where the Adriatic coast and its linear development serve as a key reference. Giovanni Vaccarini, whose studio has been based in Pescara for many years, has repeatedly explored his architectural ideas within this context and the cultures that have shaped it. Vaccarini—an influential figure in Italian architecture—has developed numerous works and projects examining the interplay between private and public spaces, spanning diverse building types and scales: residences, schools, stadiums, energy production facilities, and hospitals. For Vaccarini, the city of Pescara is a place of experimentation, where he can modify established typologies. The palazzina, a multifamily residential building and a focal point of his research, is one such typology.

© Anna Positano, Gaia Cambiaggi

1st Floor Plan

© Anna Positano, Gaia Cambiaggi
Via De Amicis 154的新建筑位于里维埃拉107附近,两年前沿着佩斯卡拉的海滨完工,Giovanni Vaccarini已经开始在亚得里亚海背景下探索他对宫殿的重新诠释。早期的项目引起了媒体和评论家的关注,不仅因为其原创和精致的构图选择,还因为其将住宅建筑与其城市环境的公共领域融为一体的方法。与Via De Amicis上的新建筑类似,Riviera 107既没有将自己局限在私人边界内,也没有沿着街道正面宣称自己。相反,它找到了一种混合的中间解决方案,重新定义了建筑在城市中的作用。这种方法打开了建筑与背景的接触,挑战了私人和公共空间的传统分离。
The new building at Via De Amicis 154 is located close to Riviera 107, completed two years prior along Pescara's seafront, where Giovanni Vaccarini had already begun exploring his reinterpretation of the palazzina within the Adriatic context. That earlier project drew attention from the press and critics, not only for its original and refined compositional choices but also for its approach to blending the residential building with the public realm of its urban surroundings. Similar to the new building on Via De Amicis, Riviera 107 did not confine itself within a private boundary nor assert itself along the street frontage. Instead, it found a hybrid, intermediate solution that redefined the building's role within the city. This approach opens up the architecture to engage with its context, challenging the traditional separation of private and public space.

© Anna Positano, Gaia Cambiaggi
Giovanni Vaccarini的这件新作品位于海岸附近的一个街区的拐角处,距离市中心的萨洛托广场不远。Via De Amicis的宫殿周围环绕着绿树成荫的大道和几座具有重要建筑意义的建筑,体现了一种当代视野,强调与周围的城市结构和公共空间的联系。这座建筑是一系列堆叠的平面,上面有郁郁葱葱的露台,完全环绕着公寓,向城市的多个方向延伸。有人居住的空间似乎在建筑的中心核心周围离心膨胀,中心核心在地面上的占地面积最小,形成了伸缩的动态相互作用。这种配置利用了视线,并与周围地区建立了视觉和空间联系,与周围环境建立了一种吸引人的、外向的关系。
This new work by Giovanni Vaccarini is located on the corner of an urban block near the coast, just a short distance from the central Piazza Salotto. Surrounded by treelined avenues and several architecturally significant buildings, the palazzina at Via De Amicis embodies a contemporary vision with a strong emphasis on connecting with the surrounding urban fabric and public space. The building emerges as a series of stacked planes with lush terraces that fully encircle the apartments, projecting toward the city in multiple directions. The inhabited spaces seem to expand centrifugally around the building's central core, which has a minimal footprint at ground level, creating a dynamic interplay of extension and contraction. This configuration takes advantage of sightlines and establishes visual and spatial connections with the surrounding area, creating an engaging, outward-looking relationship with its environment.

Section
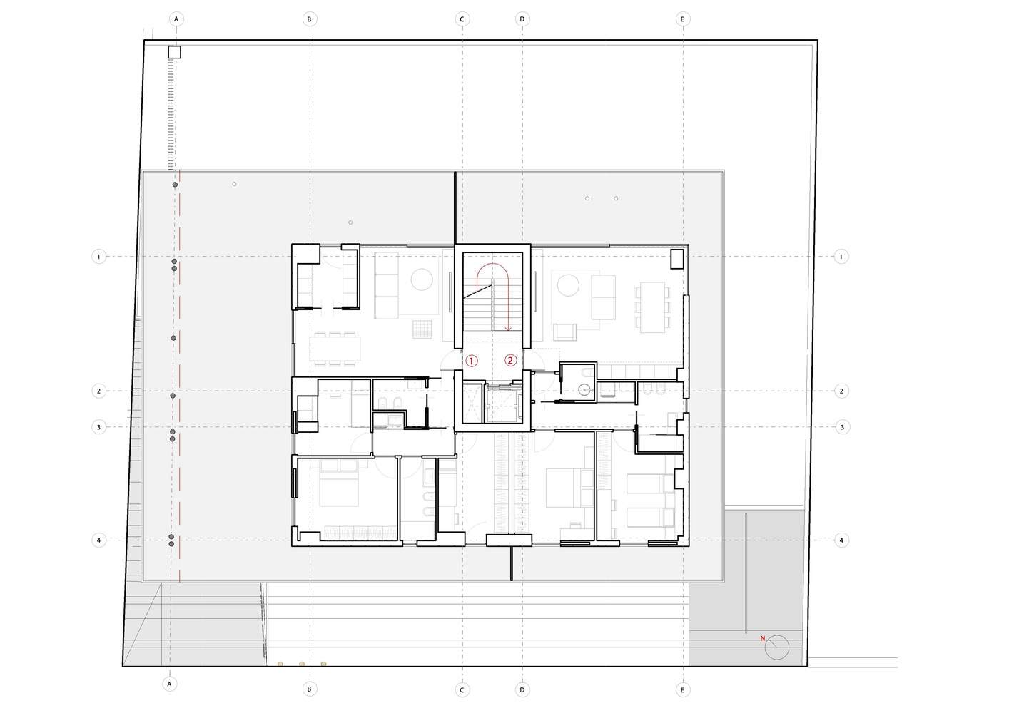
从街道平面图来看,该建筑呈现出一个紧凑的中央核心,只占据了可建造地块的一部分。这个中心区域主要用作上层的入口,并设有一条延续人行道的通道,邀请游客从一侧穿过体量到达另一侧。在上层,这一概念是相反的,每层楼都会不同程度地扩展,从而创建一个开放和动态的建筑轮廓。Vaccarini对该项目的方法旨在重新诠释街区建筑类型,融入由意想不到的海景及其城市背景塑造的独特分布概念。因此,宫殿呈现出一系列引人注目的堆叠别墅的外观。在Vaccarini的工作中,经常出现对植物形态的观察和模拟。例如,佩斯卡拉的Via De Amicis建筑可以被视为一个活的有机体,需要寻找光线、风景和联系的机会。它的六层地上楼层延伸各异,在城市环境允许的地方向外延伸,寻找大海和山脉之间的景观。在突出最明显的西北侧,一系列细长的钢柱——三根单柱和三根双柱——不规则地竖立着。这些柱子强调了垂直感,同时也有助于建筑的结构完整性。
Viewed in plan at street level, the building presents a compact central core that occupies only a portion of the buildable lot. This central area primarily serves as an entrance to the upper floors and features a pathway that continues the sidewalk, inviting visitors to move through the volume from one side to the other. On the upper levels, this concept is reversed, with each floor expanding to varying extents, creating a building profile that is both open and dynamic. Vaccarini's approach to this project aims to reinterpret the block building type, incorporating a unique distribution concept shaped by unexpected sea views and its urban context. As a result, the palazzina takes on the appearance of a striking series of stacked villas. In Vaccarini's work, the observation and emulation of plant forms are often present. The Via De Amicis building in Pescara, for instance, can be seen as a living organism driven by the need to seek out light, views, and opportunities for connection. Its six above-ground floors extend variably, reaching outward where the urban environment allows, in search of glimpses of the landscape between the sea and the mountains. On the northwest side, where the projection is most pronounced, a series of slender steel columns—three single and three paired— stand irregularly. These columns emphasize the perception of verticality while also contributing to the structural integrity of the building.

© Anna Positano, Gaia Cambiaggi
对当代城市空间的探索也体现在决定用从中心核心辐射出的众多微妙光线来突出建筑。这些光线主要放置在突出地板的下侧,通常沿着垂直墙壁延伸,强调将生活体验延伸到城市的主题。通过这样做,它们不仅增强了建筑与周围空间的视觉关系,而且在公共领域给了它一种认可和参与的感觉。对当代城市空间的探索也体现在决定用从中心核心辐射出的众多微妙光线来突出建筑。这些光线主要放置在突出地板的下侧,通常沿着垂直墙壁延伸,强调将生活体验延伸到城市的主题。通过这样做,它们不仅增强了建筑与周围空间的视觉关系,而且在公共领域给了它一种认可和参与的感觉。
The search for contemporary urban space is also evident in the decision to highlight the building with numerous subtle lines of light that radiate from the central core. Primarily placed in the undersides of the protruding floors, these light lines often continue along the vertical walls, emphasizing the theme of extending the living experience into the city. In doing so, they not only enhance the building's visual relationship with the surrounding space but also give it a sense of recognition and participation within the public realm. The search for contemporary urban space is also evident in the decision to highlight the building with numerous subtle lines of light that radiate from the central core. Primarily placed in the undersides of the protruding floors, these light lines often continue along the vertical walls, emphasizing the theme of extending the living experience into the city. In doing so, they not only enhance the building's visual relationship with the surrounding space but also give it a sense of recognition and participation within the public realm.

© Anna Positano, Gaia Cambiaggi
Giovanni Vaccarini是一位备受推崇的建筑师,以其在当代住宅空间的工作而闻名,他将高质量的构图与创新的设计融为一体。他长期以来一直专注于住宅建筑的主题,对“palazzina”的演变及其在塑造亚得里亚海城市景观中的作用进行了大量研究。Vaccarini的贡献不仅限于实践,还延伸到学术研究,特别是在大学教学方面。他的公司Giovanni Vaccarini Architetti最近的一些项目包括拉古萨的Presidio Ospedaliero Giovanni Paolo II、阿维扎诺的Istituto Omnicompressivo Giovanni XXIII和佩斯卡拉的Giuseppe Mazzini中学,该中学仍在建设中。他的作品继续影响着意大利的建筑界。意大利出版商LetteraVentidue最近出版了一本由Manuel Orazi编辑的新书,对Giovanni Vaccarini Architetti的作品及其与亚得里亚海地区的深厚关系进行了批判性探索,该工作室的许多项目都是在亚得里亚海地区建造的。
Giovanni Vaccarini is a highly regarded architect known for his work in contemporary residential spaces, blending high-quality composition with innovative designs. He has long focused on the theme of residential architecture, dedicating significant research to the evolution of the "palazzina" and its role in shaping the Adriatic city's urban landscape. Vaccarini's contributions extend beyond practice into academic research, particularly in university teaching. Some of the most recent projects from his firm, Giovanni Vaccarini Architetti, include the Presidio Ospedaliero Giovanni Paolo II in Ragusa, the Istituto Omnicomprensivo Giovanni XXIII in Avezzano, and the Giuseppe Mazzini Middle School in Pescara, which is still under construction. His work continues to influence the architectural scene in Italy. A new book edited by Manuel Orazi, recently published by Italian publisher LetteraVentidue, offers a critical exploration of the work of Giovanni Vaccarini Architetti and its profound relationship with the Adriatic region, where many of the studio's projects have been built.
© Anna Positano, Gaia Cambiaggi