公园广场商业大厦/Foster+Partners
Parkline Place Commercial Tower / Foster + Partners
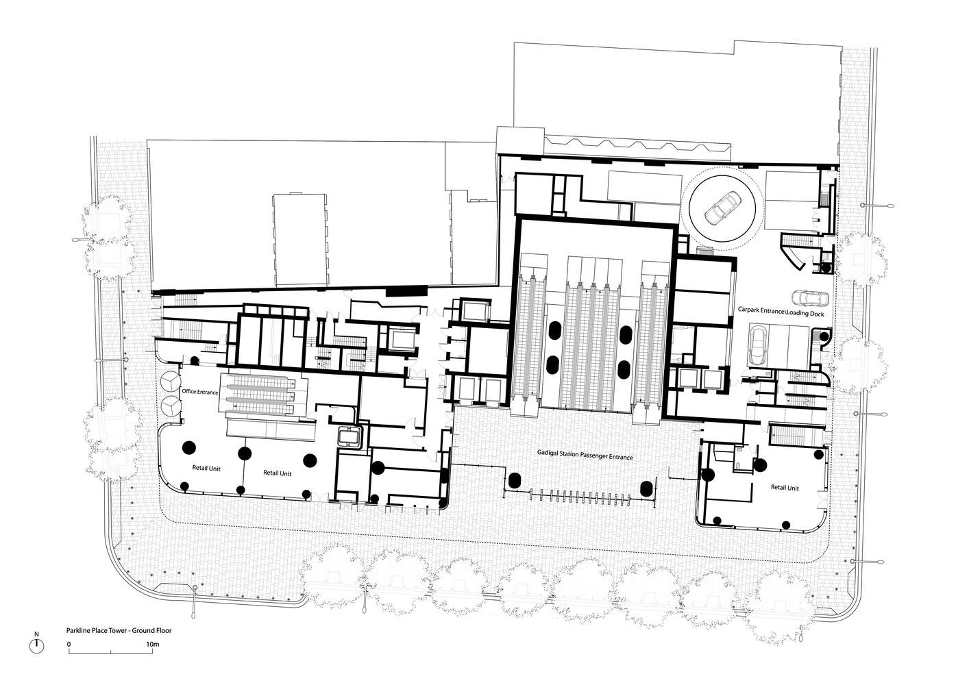
一体化设计与交通枢纽的完美结合:Parkline Place项目最令人称道的,莫过于其对车站和上盖开发的一体化设计。Foster + Partners巧妙地将Gadigal车站与39层的商业大厦视为一个整体,从结构、流线到视觉连接,都实现了无缝衔接。车站入口与塔楼立面上的凹槽设计相互呼应,强调了项目的垂直性,并在视觉上建立起两者之间的直接联系。这种一体化设计不仅优化了空间利用,提升了交通效率,更赋予了建筑独特的魅力,使其成为城市地标。
可持续性与人性化设计的深度融合:该项目在可持续性方面表现出色,获得了WELL白金和Greenstar六星级认证。设计中充分考虑了光照、通风和节能,例如,通过建筑朝向、遮阳板和凸起窗台等措施,最大限度地减少热量增加。此外,项目在办公空间的设计上,也注重人性化。大型灵活的楼层平面、相互连接的楼梯、社交中心以及各种互动空间,营造出充满活力和协作的工作环境。这些细节体现了设计师对使用者体验的深刻理解和关怀。
结构创新与文化传承的巧妙平衡:Parkline Place项目在结构设计上颇具创新性,车站结构本身成为了上盖开发的基础,简化了施工,并促进了项目的经济可行性。同时,设计还巧妙地融入了文化元素。建筑裙楼的高度与周边的遗产建筑相呼应,砂岩和青铜等材料的使用,更将开发项目与当地的文化环境紧密联系起来。这种结构创新与文化传承的巧妙结合,使得Parkline Place不仅是一个现代化的商业大厦,更是一个富有地域特色的城市地标。

Courtesy of Foster + Partners

Courtesy of Foster + Partners
建筑师提供的文字描述牛津地产集团('Oxford')、三菱地产亚洲('MEA')和Investa的Parkline Place开发项目已经完工,Parkline Place是悉尼新Gadigal车站上方的一座39层商业大厦。Foster+Partners是该团队的一员,该团队将车站设计和站上开发视为一个单一的实体,并建立了一种综合方法。该机构与COX Architecture、Aurecon(结构工程)和CPB Contractors密切合作,开发和实现了该项目。
Text description provided by the architects. Oxford Properties Group ('Oxford'), Mitsubishi Estate Asia ('MEA'), and Investa's Parkline Place development, a 39-storey commercial tower above the new Gadigal Station in Sydney, have been completed. Foster + Partners worked as part of the team that established an integrated approach to the design of the station and the over-station development, considering them as a single entity. The practice has worked closely with COX Architecture, Aurecon (structural engineering), and CPB Contractors to develop and realize the project.

Courtesy of Foster + Partners

Courtesy of Foster + Partners
Foster+Partners工作室负责人Gerard Evenden表示:“Parkline Place是悉尼连接最紧密的办公楼之一,其正下方有一个全新的车站,塔底周围有增强的行人基础设施。这个充满活力的新目的地位于市中心的中央商务区和中城区之间,提供高度灵活的办公室以及一系列社交空间、商店、咖啡馆和餐馆。”
Gerard Evenden, Head of Studio, Foster + Partners, said: "Parkline Place is one of the best-connected office towers in Sydney, with a brand-new station directly below and enhanced pedestrian infrastructure around the base of the tower. Located between the Central Business District and Midtown Precinct – in the heart of the city – this vibrant new destination provides highly flexible offices alongside an array of social spaces, shops, cafes, and restaurants."

Ground Floor Plan
Foster+Partners合伙人Muir Livingstone补充道:“我们很高兴看到Parkline Place开业。这是我们悉尼办事处的新家,我们期待在这样一个充满活力的地方工作。”
Muir Livingstone, Partner, Foster + Partners, added: "We are delighted to see Parkline Place opening its doors. It is the new home of our Sydney office, and we are looking forward to working in such a dynamic location."

Courtesy of Foster + Partners
Investa开发主管Mark Tait表示:“我们为Parkline Place感到非常自豪。这证明了Investa在提供复杂、高调的站上开发方面的良好记录。Parkline Place是我们与Foster+Partners在悉尼的第二个大型高档写字楼开发项目。入驻Parkline Place的主要租户的质量表明了市场对设计良好、可持续的建筑的需求,这些建筑与交通联系良好,并提供优质的便利设施。”
Mark Tait, Head of Developments, Investa said: "We're very proud of Parkline Place. It is a testament to Investa's track record of delivering complex, high-profile over-station developments. Parkline Place is our second major, premium-grade office development with Foster + Partners in Sydney. The quality of anchor tenants moving into Parkline Place demonstrates the market appetite for well-designed, sustainable buildings that are well connected to transport and offer premium amenity."

East-West Section
车站入口箱是上述车站开发的基础。新塔楼由三种独特的垂直形式铰接而成,带有弯曲的角玻璃。立面上的凹槽贯穿塔楼的整个高度,以车站的公园街入口为中心,在方案的这两个相互连接的部分之间建立了直接的联系。
The station entry box acts as the foundation to the over station development above. The new tower is articulated as three distinctive vertical forms with curved corner glazing. A recess in the facade continues through the full height of the tower and is centered on the station's Park Street entrance, creating a direct connection between these two interconnected parts of the scheme.

Courtesy of Foster + Partners
Gadigal车站的公园街入口用玻璃面纱庆祝,这使街道充满活力,并允许日光全天淹没车站大厅。与此同时,公园线广场位于皮特街的独立入口大厅具有强烈的垂直强调和三倍高的体量,通往商业大厅空间。
Gadigal Station's Park Street entrance is celebrated with a glass veil, which animates the street and allows daylight to flood the station concourse throughout the day. Meanwhile, Parkline Place's separate entrance lobby on Pitt Street has a strong vertical emphasis and a triple height volume that leads to the commercial lobby space.

Courtesy of Foster + Partners
塔楼的体量经过精心设计,以突出建筑的功能。大型灵活的地板在中央核心有两排电梯,可以连续不间断地欣赏周围公园和悉尼港的景色。办公空间的设计允许相互连接的楼梯、社交中心、休息空间、客户会议室和互动空间,丰富了工作空间。
The tower's massing has been carefully crafted to accentuate the building's functions. The large flexible floorplate has two banks of lifts in a central core, allowing for continuous uninterrupted views of the surrounding parks and Sydney Harbour. The office spaces have been designed to allow interconnecting stairs, social hubs, breakout spaces, client meeting rooms and interaction spaces enriching the workspace.

Courtesy of Foster + Partners
塔楼的主立面朝南,阳光照射很少,垂直遮阳板也很少,以应对清晨和傍晚的低角度阳光。在东立面和西立面,使用凸起的窗台大大减少了玻璃面积,以最大限度地减少热量的增加
The primary elevation of the tower faces south, with very little solar exposure, and has minimal vertical sunshades to deal with low-angle early morning and evening sun. On the east and west elevations, the glazed area is substantially reduced using a raised sill to minimize heat gain Solar exposure is further

Courtesy of Foster + Partners
通过投射遮阳帘来减少阳光直射,最大限度地欣赏公园内外的景色。该建筑被评为WELL白金和Greenstar六星级(设计和竣工v1.3)。
reduced by projecting shades that help manage the high sun and maximize views to the parks and beyond. The building is rated WELL Platinum and Greenstar 6-Star (Design and As Built v1.3).

Courtesy of Foster + Partners
围绕开发项目底部的裙楼遵循皮特街和卡斯尔雷街两座遗产保护建筑的建筑高度。此外,砂岩和青铜的使用将开发与该地区其他周围的遗产建筑联系起来。
A podium around the base of the development follows the building heights of the two heritage listed buildings adjacent to the site on Pitt Street and Castlereagh Street. Furthermore, the use of a sandstone and bronze links the development to other surrounding heritage buildings in the area.

Courtesy of Foster + Partners

North-South Section
车站结构有效地为开发奠定了基础,简化了施工,使建设更容易、更经济。站外开发的投资回报也补贴了该项目的成本,为该公共交通基础设施项目创造了一个经济可持续的模式。设计团队能够调整结构并优化建筑服务,优先考虑乘客流通,并为车站和上述商业开发项目创建单独的入口。
The station structure effectively acted as the foundation for the development, simplifying construction and making it easier and more economical to build. The return on investment from the over-station development also subsidized costs for the project, creating an economically sustainable model for this public transport infrastructure project. The design team was able to align the structure and optimize building services, prioritizing passenger circulation and creating separate entrances for both the station and the commercial development above.

Courtesy of Foster + Partners