乌泰塔尼之家
Uthai Thani House
设计理念的平衡与融合:“乌泰塔尼之家”最突出的亮点在于其巧妙地平衡了传统与现代两种截然不同的生活方式。设计师深入理解了居住者的需求,特别是对父亲的尊重,保留了其对木材、自然通风的偏好,并结合女儿对现代居住的需求,创造了一个融合两种风格的空间。这种设计策略并非简单的风格叠加,而是通过对空间布局、材料选择和细节处理的精心考量,实现了两种生活方式的和谐共存。建筑师成功的解决了矛盾,创造出了一个让居住者都满意的居住空间。
对材料的创新运用与情感寄托:项目的精髓在于对材料的创新应用。建筑师大胆采用了钢结构,以确保房屋的坚固性和易于维护,而木材则作为表面覆盖材料,巧妙地将现代建筑技术与传统审美结合起来。更令人感动的是,所有木材都来自父亲多年收集的旧木材,这不仅赋予了房屋独特的质感和颜色,更承载了家庭的情感记忆。这种对材料的精心挑选和利用,不仅体现了设计师对细节的极致追求,也赋予了建筑更深层次的文化内涵和家庭情感价值。
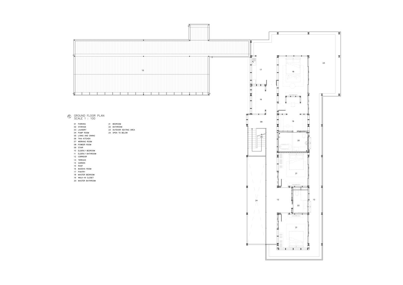
空间布局的实用性与诗意性:从平面图可以看出,该项目的空间布局既考虑了实用性,又兼顾了诗意性。客厅的狭窄视角引导人们的视线,将重点引向开放的起居和用餐区,以及背景中生机盎然的树木,营造出一种与自然的亲近感。卧室的设计充分考虑了父亲和女儿不同的生活习惯和安全需求。而二层大阳台的设计,不仅提供了开阔的视野,也起到了遮阳的作用,实现了功能与美学的完美结合。整体设计充满了对居住者细致入微的关怀,体现了设计师对建筑与生活的深刻理解。
/ I Like Design Studio

© Soopakorn Srisakul

© Soopakorn Srisakul
建筑师提供的文字描述这栋房子是为未来主人的退休而建的。这所房子的主人在乌泰他尼省出生并长大,是一个传统农业家庭的一员。她有机会在曼谷学习和工作,目的是回到她安静的家乡和家人住在一起。这块地最初是祖父母所有的,但主人的父亲现在住在一座有100年历史的破旧木屋里。房子的主人想建造这座新房子,这样她的家人就可以住在一起了。父亲按照乡下人的生活方式生活,喜欢木头胜过水泥,喜欢自然空气,不喜欢空调系统。这处房产的主人来自曼谷,显然喜欢现代住宅;因此,建筑师的主要问题是兼顾两者。
Text description provided by the architects. The house was created to accommodate the future owner's retirement. The house's owner was born and grew up in Uthai Thani Province as part of a traditional farming family. She had the opportunity to study and work in Bangkok, with the goal of returning to her quiet hometown to live with her family. The plot of land was originally owned by grandparents, but the owner's father now lives in a 100-year-old wooden house that is in disrepair. The house's owner wanted to create this new house so that her family could live together. Father, who lives according to the provincial lifestyle, prefers wood over cement, prefers natural air, and dislikes air conditioning systems. The owner of the property, who arrived from Bangkok, clearly likes a modern residence; thus, the architect's main issue was to accommodate both.

© Soopakorn Srisakul

© Soopakorn Srisakul

First Floor Plan

© Soopakorn Srisakul
这所房子的客厅很朴素,也不复杂。设计师试图从一楼的停车场创造一个狭窄的视角,以引起人们对生活和用餐区的关注,这些区域是开放的,背景中有一组树木。起居区的后部与一个大型泰国厨房相连,以支持一起做饭的家庭成员的生活方式。里面的区域是房主的工作空间,他偶尔会在那里休息,然后全职搬到那里。
This house's living room is modest and uncomplicated. The designer sought to create a narrow perspective from the parking lot on the first floor to bring attention to the living and dining areas, which are open and have a group of trees in the background. The back of the living area is linked to a large Thai kitchen to support the lifestyle of family members who cook together. The area inside is the homeowner's working space, where he occasionally comes to rest before moving there full-time.

© Soopakorn Srisakul

© Soopakorn Srisakul

Second Floor Plan

© Soopakorn Srisakul

© Soopakorn Srisakul
最深的一层是父亲的卧室,供那些选择睡在底层的人使用。他希望它通风良好,同时在晚上保持高度安全。设计师设计了一堵墙,让空气在里面流动。卧室的另一边是一扇木门,白天可以旋转打开以欣赏外面的景色,晚上可以关闭并锁上以确保安全。第二层被设计成房主的卧室。主卧室前面的一个大阳台与走道阳台相连,可以看到一望无际的稻田。它还可以作为一楼的遮阳篷。
Deepest at the end of the floor is a father's bedroom for those who choose to sleep on the bottom floor. He wants it to be well-ventilated while remaining highly safe at night. The designer created a wall to allow air to flow inside. On the other side of the bedroom is a wooden door that can be rotated to open during the day to see the view outside and closed and locked at night for security. The second story was designed as the homeowner's bedroom. A big balcony in front of the master bedroom connects to the walkway balcony and provides a view of the rice fields as far as the eye can see. It also serves as an awning for the first floor.

© Soopakorn Srisakul
这所房子是从主人父亲的生活方式演变而来的,其中包括偏爱木材和传统的泰国住宅,以及住在泰国房子下面的空间里。创作者希望父亲能够继续过着正常的生活,而不必修改他的使用模式,从而提高便利性和安全性。房主已经习惯了现代住宅,所以他们不需要改变自己的行为。
This house evolved from the owner's father's lifestyle, which included a preference for wood and traditional Thai dwellings, as well as living in space beneath a Thai house. The creator intended for the father to be able to continue living life as usual without having to modify his usage patterns, hence boosting convenience and safety. Homeowners are already accustomed to modern dwellings, so they do not need to change their behavior.

© Soopakorn Srisakul

© Soopakorn Srisakul

Detail

© Soopakorn Srisakul
该项目彻底改变了这座房子,使其成为一座现代泰国住宅,钢结构比木结构更坚固。为了确保易于维护,房子只使用木材作为表面覆盖材料。用来建造房子的所有木材都是父亲随着时间的推移收集的旧木材。虽然有许多不同类型的木材,但每种木材的颜色都是独一无二的。它们的位置必须使颜色相似,颜色方向相同,这很难构建。但它很好,对父亲和主人来说都有感情意义。
The project revolutionizes this house into a modern Thai home with a steel construction that is stronger than a wood structure. To ensure easy maintenance, the house only utilizes wood as a surface covering material. All the timber utilized to construct the house was old wood that the father had collected over time. Although there are many different types of wood, the color of each is unique. They must be positioned so that the colors are similar and colored in the same direction, which is challenging to build. But it's good and holds sentimental meaning for the father and owner.
© Soopakorn Srisakul