Lambkill Ridge/Peter Braithwaite工作室有限公司
Lambkill Ridge / Peter Braithwaite Studio Ltd.
与自然的对话:这个项目最突出的亮点在于它与周围自然环境的深刻对话。建筑师将建筑体量巧妙地架高,置于树冠之中,这不仅提供了壮观的视野,还将居住者直接融入了自然景观。长长的木板路作为引导,连接了入口与蜿蜒的自然小径,形成了一种仪式感和过渡,强化了人与自然的互动。建筑的选址和朝向都经过精心设计,旨在最大化视野,同时保护自然生态。这种细致入微的设计体现了对环境的尊重和对居住体验的深刻理解。
可持续设计的实践:项目的精髓在于其对可持续性的深度实践。在设计上,它采用了离网设计,包括被动式通风、最大化热量吸收的窗户、焚烧厕所和雨水收集系统等。这些措施体现了对环境影响的最小化,并力求实现资源的循环利用。在材料选择上,项目大量使用了当地采购的粗琢铁杉,这不仅减少了运输对环境的影响,也突出了地方特色。同时,建筑师还采用了轻质木材框架,结合黑色金属元素,实现了原始与现代、自然与工业的和谐统一,展现了可持续设计的多样性和潜力。
空间与材料的诗意:Lambkill Ridge在空间和材料的运用上展现出一种诗意的美感。两个镜像的体量分别作为睡眠亭和生活亭,功能划分清晰,又相互呼应,形成了一种和谐的平衡。内部空间通过阁楼设计,进一步拓展了空间维度,同时也提供了更好的视野。材料的选择则更具特色,粗琢铁杉的原始质感与黑色金属的工业感形成了鲜明对比,营造出一种独特的视觉体验。整体而言,这个项目在设计上注重细节,从建筑与自然环境的融合,到可持续设计的实践,再到空间与材料的诗意表达,都体现了设计师的专业素养和对建筑本质的深刻理解。

© Peter Braithwaite

© Peter Braithwaite
建筑师提供的文字描述Lambkill Ridge的名字很亲切,它的绰号来源于当地一种植物绵羊月桂的俗称,这种植物在新斯科舍省特伦斯湾的荒地上大量存在。这座建筑是为一个热爱自然的四口之家设计的度假胜地,它有两个几乎相同的体量,沿着一条狭长的木板路镜像,这条木板路连接着通往蜿蜒的自然小径。
Text description provided by the architects. Affectionately named, Lambkill Ridge has its moniker derived from the common name for a local plant, Sheep Laurel, which can be found in abundance along the barren lands of Terence Bay, Nova Scotia. Designed as a getaway for a nature enthusiast young family of four, the architecture features two nearly identical volumes mirrored along a long, narrow boardwalk that connects the access road to the winding nature trails beyond.

© Peter Braithwaite

Elevations
从森林地面升起,信任树冠,目的是将用户置于自然环境中,从内部的阁楼空间欣赏贫瘠土地和海洋的壮丽景色,并鼓励自然景观在整个过程中继续蓬勃发展。沿着木板路向上爬上两层楼梯间,可以看到一个微妙的小径入口,入口被两个黑暗的体量所包围。
Hoisted up off the forest floor and trust into the tree canopy, the intention was to situate the user prominently into the natural environment, provide breathtaking views over the barren lands and out to the ocean from the loft spaces within, and encourage the natural landscape to continue to thrive throughout. The long ascent up the two-tiered stairwell and along the boardwalk provides views to the entrance of a subtle trailhead that is framed by the two darkened volumes.

© Peter Braithwaite

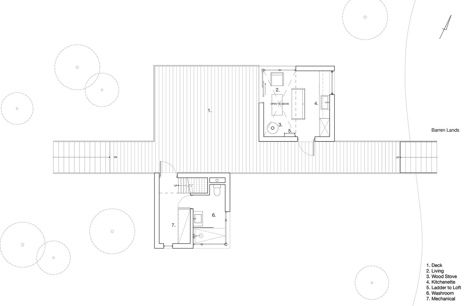
Plan

© Peter Braithwaite
攀登时遇到的第一卷是睡亭,在那里你会发现一个机械壁橱,上面有完全可持续的设备、一个完整的浴室和一个睡眠阁楼。第二卷,也被称为生活亭,有一个白橡木覆盖的小厨房,主生活空间有一个燃木炉,上面有一个客人睡阁楼。设计主要是离网的,主要特征包括一个窗户,旨在最大限度地增加热量,以及被动通风,以帮助调节一年中所有月份的温度,一个焚烧厕所和一个雨水收集和过滤系统。
The first volume that you encounter upon your climb is the sleeping pavilion, where you will find the mechanical closet boasting fully sustainable equipment, a full bath, and a sleeping loft above. The second volume, also known as the living pavilion, houses a white-oak-clad kitchenette, the main living space with a wood-burning stove and a guest sleeping loft above. Designed to be largely off-grid, key features include a window designed to maximize both thermal heat gain, as well as passive ventilation to help regulate temperatures in all months of the year, an incinerating toilet, and a rainwater collection and filtration system.

© Peter Braithwaite

Elevations and Plan
虽然外部体量与景观融为一体,但内部的物质性利用了当地资源,为这个不起眼的项目增添了突出的设计特色。展示了当地采购的粗琢铁杉,同时突出了该地区常见的轻质木材框架做法。由于这些结构是“外包的”(框架外部的绝缘层),黑色金属电线管和其他黑色金属特征遍布各处,增加了一种与铁杉原始性质并置的工业化程度。
While the exterior volumes sit starkly in the landscape, the interior materiality draws upon local resources and adds prominent design features to this modest project. Locally sourced, rough-hewn hemlock is showcased while highlighting typical light-timber framing practices found in the region. As the structures are 'outsulated' (insulation on the outside of the framing), black-metal electrical conduits along with other black-metal features are strewn throughout adding a level of industrialism that juxtaposes the raw nature of the hemlock.

© Peter Braithwaite