比什科堡/法内尔萨工作室
Burgbühne Beeskow / Atelier Fanelsa
场地与历史的对话:该项目最引人入胜的亮点在于其与历史文脉的对话与融合。设计巧妙地将现代展馆置于中世纪城堡的中心,并非简单的堆砌,而是尊重并延续了城堡丰富的建造和再利用历史。建筑师通过最小化混凝土的使用、采用点状基础等方式,最大限度地保护了遗址的历史结构。折叠幕墙立面从红砖城堡墙壁的材质和颜色中汲取灵感,使得新建筑与原有建筑在视觉上形成呼应,既是对历史的致敬,又展现了当代建筑对传统的理解与创新。这种细致的尊重和巧妙的对话,赋予了项目独特的文化深度。
功能与使用的灵活性:项目的精髓在于其高度的功能性和使用灵活性。三个展馆和室外舞台的设计,充分考虑了多功能文化用途的需求。舞台不仅仅是一个表演场所,展馆也能作为舞台布景或更衣室使用,这种多用途的设计,极大地提升了建筑的使用效率和灵活性。无障碍屋顶的融入,更是提升了舞台设计的实用性和包容性。更重要的是,建筑师与用户之间的密切合作,确保了设计方案真正满足社区的需求。这种从夏季活动到冬季城堡节日、研讨会和画廊的转变,充分展现了建筑在不同季节、不同功能需求下的适应能力,为社区提供了丰富的文化生活场所。
可持续与本土的实践:该项目在可持续性和本土化方面也展现了卓越的实践。优先使用基于地质和生物的建筑材料,体现了对环境的责任感。而大部分工作由当地木工公司完成,这家公司与城堡的合作已经延续到第三代,这不仅保证了项目的品质,也促进了当地经济的发展,加强了社区与建筑之间的联系。这种对本土材料和工艺的依赖,减少了运输带来的环境负担,同时也传承了当地的建筑文化。内部设计也遵循克制和单色的原则,采用浅色的木材和油毡地板,营造出简约而舒适的氛围,与外部环境形成和谐统一,充分体现了建筑的整体性和可持续性。

© Simon Menges & Nino Tugushi

© Simon Menges & Nino Tugushi
建筑师提供的文字描述新的Burgbuhne Beeskow由三个展馆组成,其中一个室外舞台位于城堡建筑群的中心。这座中世纪城堡有着丰富的建造和再利用历史。如今,这些建筑是区域文化和教育中心,是农村社区的中心聚会场所。
Text description provided by the architects. The new Burgbühne Beeskow comprises three pavilions with an outdoor stage located in the center of the listed ensemble of the castle complex. This medieval castle has a rich history of construction and reuse. Today, the buildings serve as the regional cultural and educational center, acting as a central meeting place for the rural community.

© Simon Menges & Nino Tugushi
展馆和室外舞台的开发具有多功能文化用途的愿景,是通过用户和建筑师之间的密切合作创造的。舞台为演员和音乐家提供了一个表演场所,而展馆则作为舞台布景或更衣室。无障碍屋顶也融入了舞台设计。除了夏季活动外,展馆还在冬季举办城堡节日、研讨会和一个小画廊。
The pavilions and outdoor stage were developed with the vision of multifunctional cultural use, created through close collaboration between the users and the architects. The stage provides a performance venue for actors and musicians, while the pavilions function as stage sets or dressing rooms. The accessible roofs are also integrated into the stage design. In addition to summer events, the pavilions host castle festivals, workshops, and a small gallery during the winter months.

© Simon Menges & Nino Tugushi

© Simon Menges & Nino Tugushi

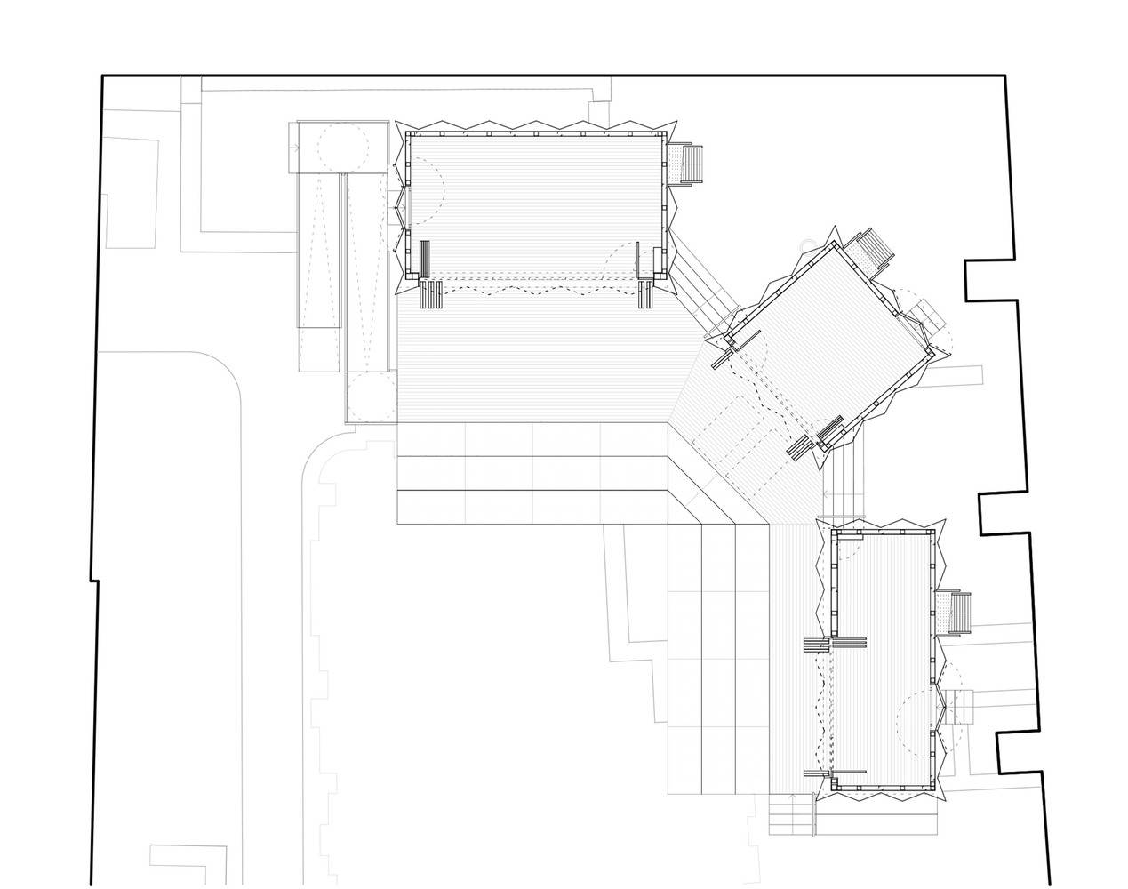
Floor Plan
该建筑优先考虑基于地质和生物的建筑材料。大部分工作是由当地的一家木工公司完成的,该公司现在已经与城堡合作了第三代。展馆建在历史悠久的铺路石上的点状基础上,最大限度地减少了混凝土的使用,保护了遗址的历史结构。这些展馆采用木框架结构,并使用木纤维隔热,适合全年使用,包括在冬季作为画廊。折叠的幕墙立面从红砖城堡墙壁的材质和颜色中汲取灵感。在内部,设计是克制和单色的,以浅色的木材和油毡地板为特色。
The construction prioritizes geo-based and bio-based building materials. Most of the work was carried out by a local carpentry firm, which is now in its third generation of involvement with the castle. The pavilions are elevated on point foundations set atop the historic paving, minimizing the use of concrete and preserving the historical fabric of the site. Built with a timber frame construction and insulated using wood fiber, the pavilions are suitable for year-round use, including as a gallery in winter. The folded, curtain-wall façade draws inspiration from the materiality and color of the red brick castle walls. Internally, the design is restrained and monochromatic, featuring light-colored wood and linoleum flooring.

© Simon Menges & Nino Tugushi
庭院立面可以通过折叠百叶窗和滑动窗广泛打开。开放时,这些大开口会邀请游客进入展馆,并欣赏城堡的壮丽景色。关闭后,优雅的亭子与身后的城堡墙壁无缝融合。
The courtyard façades can be opened widely with folding shutters and sliding windows. When open, these large openings invite visitors into the pavilions and offer generous views of the castle. When closed, the elegant pavilions blend seamlessly with the castle wall behind them.

© Simon Menges & Nino Tugushi