博尔索尼/博蒂奇尼剧院+Facchinelli ARW+布雷西亚基础设施
Teatro Borsoni / Botticini + Facchinelli ARW + Brescia Infrastructure
城市肌理的巧妙融入:这个剧院项目最令人印象深刻的亮点在于其对城市肌理的深刻理解与巧妙融入。建筑师将剧院设计为“城市建筑”,这不仅仅是一个口号,而是贯穿设计始终的核心理念。通过将建筑后退于街道线,创造出一个花岗岩铺成的“公民墓地”以及绿树成荫的广场,剧院不仅成为了一个文化场所,更成为了一个重要的公共空间,积极参与到城市的日常生活中。建筑与周边环境的互动,重新定义了公共空间,对于提升该地区的价值至关重要,体现了建筑师对城市更新的深刻思考和贡献。
材料与光影的完美结合:项目的精髓在于对材料和光影的精心运用。大型粗琢混凝土的运用赋予了建筑坚实、厚重的质感,与铝制凉廊的结合则形成了一种对比,既体现了现代感,又保留了历史的韵味。连续的玻璃墙在视觉上将门厅与广场连接起来,强调了剧院的开放性,为建筑注入了通透感和活力。半透明聚碳酸酯面板的运用更是画龙点睛之笔,它们构成了舞台层飞行塔的外墙,在夜间被内部光线照亮,营造出一种梦幻般的视觉效果,使建筑在夜晚也能成为城市的焦点。
空间设计的多元与包容:剧院的空间设计充分体现了多元性和包容性。项目不仅包含主厅和儿童厅两个表演空间,还设置了各种公共区域,如酒吧门厅、儿童房等,满足了不同年龄和不同需求的人群。室内材料的选择也极具考量,木质隔音墙板与深灰色石膏和树脂地板的对比,营造出一种既温暖舒适又现代时尚的氛围。独特的“橙色的小路”设计,更体现了对儿童的关怀,为孩子们创造了一个专属空间。这种多元化的设计,使得剧院不仅仅是一个表演场所,更成为了一个充满活力的社区中心。

© Federico Covre

© Federico Covre
建筑师提供的文字描述新剧院是名为“Oltre la strada”的Via Milano更广泛重建项目的关键要素。该倡议旨在改变该地区的工业身份,将剧院确立为一个正在经历重大复兴的地区的地标,并通过众多增强项目加以丰富。这座建筑远离街道线,创造了一个用花岗岩铺成的“公民墓地”,东侧有一个绿树成荫的广场,毗邻现有的住宅区。广场以通风烟囱和南面机房的镜像体积而闻名。重新定义周围的公共空间与建筑本身一样,对于提升该地区的价值至关重要。
Text description provided by the architects. The new theatre is a pivotal element of the broader redevelopment project for Via Milano, titled "Oltre la strada." This initiative seeks to transform the industrial identity of the area, establishing the theatre as a landmark in a zone undergoing significant revitalization, enriched by numerous enhancement projects. Set back from the street line, the architecture creates a "civic churchyard" paved with granite and a tree-lined plaza on its eastern side, adjacent to the existing residential area. The plaza is distinguished by ventilation chimneys and the mirrored volume of the plant room to the south. Redefining the surrounding public space is as crucial as the architecture itself in enhancing the area's value.

© Federico Covre

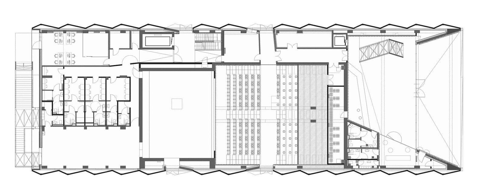
Ground Floor Plan

© Federico Covre
剧院被设计为“城市建筑”,是一个文化冷凝器。该建筑是一个平行六面体,由大型粗琢混凝土和铝制凉廊构成,凉廊雕刻在面向米兰大道的北立面上,主入口就位于米兰大道上。巨大的墙壁完全由4x1.25米的大型粗琢混凝土块预制系统制成。连续的玻璃墙在视觉上将门厅与广场连接起来,强调了剧院对城市的开放性。
Designed as "civic architecture," the theatre acts as a cultural condenser. The building is a parallelepiped volume defined by large-scale rusticated concrete and aluminum loggia carved into the north facade facing Via Milano, where the main entrance is located. The cyclopean wall is made entirely with a prefabricated system of large rusticated concrete blocks measuring 4x1.25 m. A continuous glass wall visually connects the foyer to the plaza, emphasizing the theatre's openness to the city.

© Federico Covre

© Federico Covre
体积上升到舞台层的飞行塔中,其长边覆盖着半透明的聚碳酸酯面板,当从内部照射时,这些面板在夜间会发光。剧院作为一个包容性的城市空间,为不同年龄段的人提供房间、公共区域、通往新广场的酒吧门厅,以及一个带舞台的大厅,与更衣室和储物区相连。室内材料包括隔音墙板的木材,与大厅的深灰色石膏和树脂地板形成对比。公共空间采用浅灰色、木材和铝的组合,后者用于楼梯、栏杆和接待台,赋予了空间独特的个性。一条“橙色的小路”从门厅通往儿童房,标志着这个特殊的区域。
The volume rises into the fly tower at the stage level, with its long sides clad in translucent polycarbonate panels that glow at night when illuminated from within. The theatre functions as an inclusive urban space, hosting rooms for different age groups, communal areas, a bar foyer opening onto the new plaza, and a large hall with a stage connected to dressing rooms and storage areas. Interior materials include wood for the acoustic wall panels, contrasting with dark grey plaster and resin floors in the halls. Communal spaces feature a combination of light grey, wood, and aluminum, the latter used for staircases, railings, and reception counters, giving the space its distinctive character. An "orange path" leads from the foyer to the children's room, marking this special area.

© Federico Covre

Longitudinal Section

© Federico Covre
剧院由两个表演厅组成,均可从一楼进入。主厅可容纳312名观众,设有三条过道——一条中央过道和两条横向过道——与紧急出口相连。其木制墙壁由LED灯带照亮,天花板设计确保了最佳的声音放大。高架的木制舞台,下面有一个中空的空间,增强了声音的共鸣。另一方面,儿童大厅可容纳169个座位。它的木地板无缝延伸到舞台,提供了一个非正式的休息区,大厅没有飞行塔,反映了它更简单、更亲密的设计。这座剧院是城市和城市内部的建筑,是振兴一个拥有丰富工业历史的地区的催化剂,将其转变为当今和子孙后代文化和社会复兴的灯塔。
The theatre comprises two performance halls, both accessible from the first floor. The main hall, seating 312 spectators, features three aisles—one central and two lateral—connected to emergency exits. Its wooden walls, illuminated by LED strips, and the ceiling design ensure optimal sound amplification. The elevated wooden stage, with a hollow space underneath, enhances voice resonance. The children's hall, on the other hand, accommodates 169 seats. Its wooden floor extends seamlessly to the stage, providing an informal seating area, and the hall lacks a fly tower, reflecting its simpler, more intimate design. This theatre is an architecture for the city and within the city—a catalyst for revitalizing an area with a rich industrial history, transforming it into a beacon of cultural and social renewal for today's and future generations.

© Federico Covre