杰克逊霍尔历史博物馆/HGA
Jackson Hole History Museum / HGA
设计理念的精妙融合:杰克逊霍尔历史博物馆项目最显著的亮点在于其对历史、文化与现代性的巧妙融合。建筑师不仅保留了两个历史悠久的小屋,并将其与新博物馆建筑巧妙结合,更通过通透的玻璃幕墙设计,将博物馆内部的展览与外部的城市景观连接起来。这种开放的设计理念,使得博物馆不再是一个封闭的场所,而是与社区互动,吸引路人驻足。设计团队在设计中融入了杰克逊霍尔独特的西部特色,例如木质材料的运用和建筑形式的呼应,使得新建筑既现代又具有地方特色,实现了历史文脉的延续与创新。
社区参与与可持续发展的实践:项目的另一个重要特点是其高度的社区参与。建筑师与当地居民、土著社区等进行了广泛的沟通,充分听取他们的意见和建议,这为设计的各个方面提供了信息,确保了博物馆能够反映杰克逊霍尔的整体历史叙事。更值得称赞的是,该项目将可持续发展理念贯穿始终。设计团队优先考虑生态问题,通过可持续设计,实现了HJH对保护环境的目标。这种以人为本、关注环境的设计理念,不仅提升了博物馆的社会价值,也为未来的建筑项目树立了典范,使其不仅仅是一个历史博物馆,更是一个社区文化中心。
空间布局与功能设计的亮点:博物馆的空间布局与功能设计也体现了建筑师的专业素养。通过灵活的空间设计,为展览、教育活动、社区聚会等提供了多样的可能性。室内外空间的连接是设计的重点,一楼的露台和二楼的屋顶露台,分别提供了与户外环境的互动。同时,展览区域的设计使得参观者既能欣赏到外部景色,又能看到内部的历史展示。此外,建筑师巧妙地利用了材料的质感,如木材、金属等,营造出一种既质朴又现代的氛围。总而言之,该项目是一个设计理念先进、功能布局合理、体现地方特色的优秀建筑作品,值得我们学习和借鉴。

© Albert Vecerka/Esto

© Albert Vecerka/Esto
建筑师提供的文字描述杰克逊霍尔历史博物馆为历史杰克逊霍尔(HJH)建立了一个新的遗址,作为文化目的地和当地教育以及社区聚会的场所。校园有效地展示了HJH的丰富藏品,作为博物馆互动展览、教育节目和活动的永久场所,旨在让当地人和游客都能与该地区以及居住了数千年的人建立有意义的联系。总的来说,占地四分之一英亩的校园拥有新的三层博物馆、两个历史悠久的小屋和综合户外空间,其设计框架突出了杰克逊霍尔的自然、文化和建筑历史,同时利用了现代建筑性能和技术。
Text description provided by the architects. The Jackson Hole History Museum establishes a new site for History Jackson Hole (HJH) as a cultural destination and local fixture for education as well as community gathering. The campus effectively puts on display HJH's robust collection in a permanent home for the museum's interactive exhibits, educational programming and events, designed so that locals and visitors alike can form a meaningful connection to the region and those who have inhabited it for millennia. In total, the quarter-acre campus features the new three-story museum, two historic cabins and integrated outdoor space within a design framework that highlights the natural, cultural and architectural past of Jackson Hole while leveraging modern-day building performance and technology.

© Albert Vecerka/Esto
校园位于杰克逊市中心一个著名的历史街区内,部分受到保护地役权的保护,因其深厚的历史、公共绿地和蓬勃发展的当地企业而备受推崇。HGA与HJH团队密切合作,开展了一个全面的社区参与过程,尽早并经常沟通设计和可持续发展战略,以在居民、土著社区和其他人之间建立共识。这种利益相关者的参与为设计的各个方面提供了信息,特别是当它告诉杰克逊历史的全面叙述时。此外,由于利益相关者和设计团队在整个项目过程中优先考虑生态问题,HJH通过可持续设计进行保护的目标也得以实现。
The campus is situated within a prominent, historic downtown Jackson block, partially protected by conservation easements and revered for its deep history, public greenspace and thriving local businesses. HGA worked closely with the HJH team to conduct a thorough community engagement process, communicating design and sustainability strategies early and often to build consensus across residents, indigenous communities and others. This stakeholder engagement informed various aspects of the design, particularly as it tells the comprehensive narrative of the history of Jackson. Furthermore, HJH's goal of preservation through sustainable design was also achieved as stakeholders and the design team prioritized ecological concerns throughout the project's course.

© Albert Vecerka/Esto

© Albert Vecerka/Esto

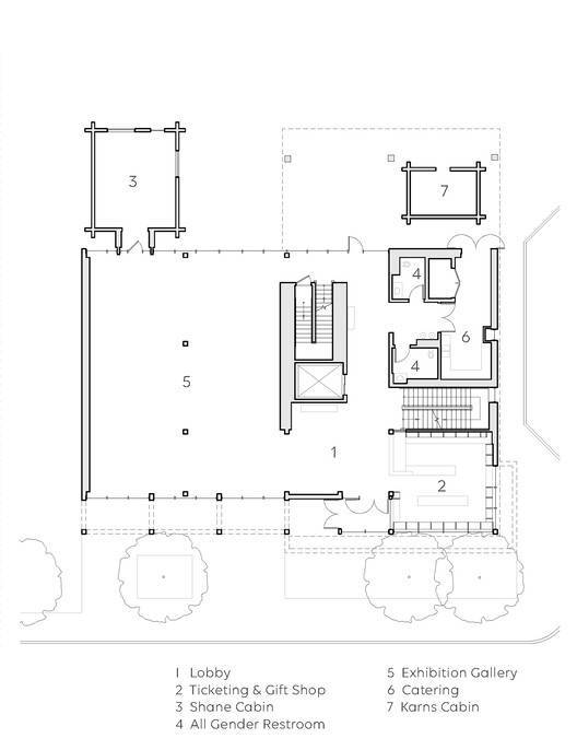
Plan - 1st Floor

© Albert Vecerka/Esto
HGA对新校区的设计始于对现有博物馆的评估,该博物馆黑暗、不透明,与城镇相对封闭。最终的设计实现了HJH的目标,即通过一座吸引人且透明的博物馆建筑向更广泛的社区开放校园。展览区有两堵玻璃墙——一堵连接到一个新的公共公园,一堵连接市中心的其他地方——这样路人就可以看到里面活生生的历史。该设计优先考虑并最大限度地提高了HJH及其访客的互动性,为节目、活动、对话和演示提供了多个灵活的空间。与户外的连接是通过一楼的露台实现的,露台上有集成到整体流通路径中的木屋,还有一个二楼的屋顶露台,供游客欣赏雪王山度假村和周围连绵起伏的山坡的景色。游客还可以透过博物馆展览区看到外面的小屋。
HGA's design of the new campus started with an evaluation of the existing museum which was dark, opaque and relatively closed off to the town. The final design achieves HJH's goal of opening the campus to the broader community with an inviting and transparent museum building. Exhibit areas have two glass walls—one linking to a new public park and one linking to the rest of downtown—so that passersby can see inside toward living history. The design prioritizes and maximizes interactivity for HJH and its visitors, with multiple flexible spaces for programs, events, conversations and presentations. A connection to the outdoors is achieved via a groundfloor patio that houses log cabins that have been integrated into the overall circulation path as well as a second-floor rooftop terrace for visitors to enjoy views of Snow King Mountain Resort and the surrounding rolling hillside. Visitors can also see through museum exhibit areas to the cabins outside.

© Albert Vecerka/Esto

© Albert Vecerka/Esto

New Site

© Albert Vecerka/Esto
由于城镇广场区域的现有指导方针,合作设计工作在背景和当代设计之间取得了微妙的平衡,将杰克逊市中心的西方特色和历史相关性与反映杰克逊霍尔现在和未来的现代博物馆相结合。新博物馆建筑的总体设计借鉴了杰克逊标志性的西方美学,反映了该街区传统商店的类型,底层正面为玻璃,二层为穿孔窗户。博物馆的占地面积与街对面的一栋两层城镇建筑保持一致,并向下移动,以与另一边规模更大的房产相匹配。该设计还包括一条与标志性城镇木板路同步的有盖木板路,将博物馆与中央广场的其他部分无缝连接。质朴的材质是通过材料的温暖和个性来实现的,甚至在适当的情况下,还可以通过木材的粗糙表面、温暖的金属、编织纹理等来实现。这是对杰克逊“老西部”风格的认可,但通过一种既现代又永恒的真实方法。
Due to existing guidelines for the town square area, the collaborative design effort struck a delicate balance between contextual and contemporary design, integrating both the Western character and historic relevance of downtown Jackson alongside a modern museum reflecting Jackson Hole's present and future. Drawing from Jackson's signature Western aesthetic, the overall design of the new museum building mirrors typologies of legacy stores on the block with glassy ground floor frontage and punched windows on the second level. The museum's footprint holds its scale with a two-story town building across the street and shifts down to match more intimately scaled properties on its other side. The design also features a covered boardwalk in sync with iconic town boardwalks, seamlessly connecting the museum to the rest of the central square. A rustic materiality is achieved through warmth and character in materials, even down to rougher finishes on wood, where appropriate, warmer metals, woven textures and more. There is a nod to the Jackson "Old West" style, but through an authentic approach that feels both modern and timeless.