MSLAN角/分解
MSLAN corner / Devolution
设计理念的创新性:这个项目最突出的亮点在于其设计理念的创新性,它不仅仅是一个商店,而是一个多功能的“创作者工作室”,将零售、社区活动和休憩空间完美结合。它跳脱了传统的商店模式,将建筑设计与社区需求紧密结合,创造了一个开放、包容且充满活力的空间。这种设计理念体现了对空间使用的深度思考,以及对城市环境的积极回应。通过引入“工作室开放日”的概念,激发了空间的活力,为消费者提供了独特的购物体验。
空间利用与材质运用的精妙:项目的精髓在于其空间利用的巧妙和对材质的精准运用。利用转角位置的优势,巧妙地创造了一个小型袖珍公园,为社区提供了休憩场所,体现了对街道和周边环境的尊重。天然松木的运用,营造了温馨、舒适的氛围,与“工作室开放日”的主题相呼应。通过对材质的选择和组合,设计师成功地将私密性与开放性融为一体,创造出一个既能满足零售需求,又能满足社区需求的理想空间。这种精妙的空间处理和材质选择,是项目成功的关键。
社区融入与未来展望:项目最大的价值在于其对社区的积极融入和对未来的展望。通过在商店中融入生活方式商品和咖啡,进一步丰富了功能,提高了吸引力。更重要的是,MSLAN的未来规划是将此空间打造成社区服务中心,为社区居民提供更多的便利和交流机会。这种对社区的关注和承诺,使得这个项目不仅仅是一个商业空间,更是一个连接人与人、人与社区的纽带。这种长远的规划和对社区的积极贡献,赋予了项目更深远的意义,使其成为一个可持续发展的建筑案例。

© Xunkai Zou

© Xunkai Zou
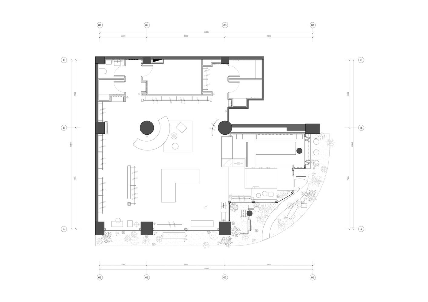
“MSLAN角”是DEVOLUTION为服装品牌MSLAN设计的一种新的街头商店模式。由于它位于街区的拐角处,我们在设计中考虑了它与街道的独特关系,让位于一个供人们休息的小型袖珍公园。
"MSLAN corner" is a new street shop model designed for the clothing brand MSLAN by DEVOLUTION. Because it is located at the corner of a block, we have considered its unique relationship with the street in the design, giving way to a small pocket park for people to rest.

© Xunkai Zou

© Xunkai Zou

© Xunkai Zou
我们以“工作室开放日”为出发点,以天然松木为主要材料,营造出一个令人放松的场景,唤起工作室主人外出的感觉。“创作者工作室”是一个多功能空间,集孤独、创意场地和会议区于一体。它融合了个人美学、家具品味、爱好、生活兴趣、收藏品和个人创作元素。这个空间令人放松,充满个性,散发着精致的品味。它本质上既是私人的,也是开放的。这一概念为MSLAN将生活方式商品和咖啡融入其最初的时尚零售模式提供了背景设置。
We take "Studio Open Day" as its starting concept, using natural pinewood as the main material to create a relaxing scene that evokes the feeling of the studio owner being away. The "Creator's Studio" is a multifunctional space that integrates solitude, creative site, and a meeting area. It blends personal aesthetics, furniture taste, hobbies, life interests, collectibles, and elements of personal creation. The space is relaxing, full of individuality, and exudes refined taste. It is both private and open in nature. This concept provides a contextual setting for MSLAN to incorporate lifestyle goods and coffee into its original fashion retail model.

© Xunkai Zou

© Xunkai Zou

© Xunkai Zou
未来,不同的“创作者”(或各种MSLAN系列)将为这个“工作室”带来多样化的可能性。同时,作为一种新型的街头商店,MSLAN也在积极探索这些空间的公共功能。除了作为一家商店,“MSLAN角”未来还将提供更多的社区服务。在这个街角庆祝成立10周年之际,“老朋友”MSLAN正在用这种全新的身份重新构想自己,旨在成为该社区的“新邻居”。
In the future, different "creators" (or various MSLAN collections) will bring diverse possibilities to this "studio." Meanwhile, as a new type of street shop, MSLAN is also actively exploring the communal functions of such spaces. Beyond being a store, "MSLAN corner" will also offer more community services in the future. Celebrating its 10th year at this street corner, the "old friend" MSLAN is reimagining itself with this fresh new identity, aiming to become a "new neighbor" in the neighborhood.

Floor Plan
© Xunkai Zou