博蒙之家/工作室ITCH
Bomun House / Atelier ITCH
设计概念的精炼与创新:博蒙之家/工作室ITCH项目最引人注目的亮点在于其设计概念的精炼。面对狭窄的场地限制、密集的邻近建筑和有限的自然光线,设计师并未选择复制周围红砖建筑的标准化风格,而是专注于通过简化立面来创造视觉冲击。这种“以简胜繁”的设计策略展现了设计师对环境的深刻理解和对材料的精准运用。通过选择与周围建筑形成鲜明对比的材料,设计师成功地使建筑在环境中脱颖而出,同时也解决了预算限制问题,体现了设计的实用性和经济性。
空间布局的巧妙利用与整合:项目的精髓在于对有限空间的巧妙利用和整合。设计师充分利用了业主对四楼露台的渴望,将其作为设计核心。通过将四楼与露台无缝连接,并在露台上引入自然绿化,创造了一个开放、通透的生活空间。尤其值得称道的是,将浴室设计在露台附近,打造出独特的、面向天空的沐浴体验,这种设计不仅提升了居住的舒适度,更赋予了生活仪式感。设计师在权衡了通风、存储空间等诸多因素后,最终保留了这一关键功能,体现了对居住者体验的尊重和对设计理念的坚持。
挑战与解决方案的完美结合:该项目在应对诸多设计挑战时展现了设计师卓越的专业能力。面对有限的自然光线和通风条件,设计师并未局限于传统的解决方案,而是通过对内部空间的重新组织,最大限度地提高了气流和内部开放性。例如,将外部材料延伸到露台栏杆,巧妙地阻挡了周围建筑带来的不良景观,同时保持了天空的视野。这种对细节的精心考量,体现了设计师对空间和光线的敏锐感知。此外,项目在预算限制下对材料的选择,以及对实用性与美观性的平衡,都展现了设计师出色的综合能力。

© Joel Moritz

© Joel Moritz
建筑师提供的文字描述初始住房和周边条件。这座建筑坐落在一条狭窄的小巷中间,里面挤满了三到四层的红砖多户人家,在住宅区很常见。这些建筑在设计和装修上几乎完全相同,以统一的、几乎大规模生产的方式排列在街道两旁。这座特殊的建筑有一个面向道路的外部楼梯,其宽度几乎不足以供车辆通行。不幸的是,由于这一侧朝南,楼梯阻挡了大部分自然光到达内部。此外,由于东西两侧的相邻建筑仅相距一米,因此几乎不可能获得足够的阳光或清晰的视野。
Text description provided by the architects. Initial Housing and Surrounding Conditions. The building sat in the middle of a narrow alley, tightly packed with three- to four-story red brick multi-family houses—common in residential neighborhoods. These buildings, nearly identical in design and finish, lined the street in a uniform, almost mass-produced fashion. This particular building had an external staircase facing the road, which was barely wide enough for vehicle access. Unfortunately, because this side faced south, the staircase blocked much of the natural light from reaching the interior. Additionally, with neighboring buildings just one meter away on both the east and west sides, securing adequate sunlight or a clear view was nearly impossible.

© Joel Moritz
业主愿景:规模与风格。业主选择这座建筑的最大原因是它的四楼。拥有一个室外露台并欣赏开阔的天空景色是一个决定性因素。虽然总建筑面积有限,即使业主同时占用三楼和四楼,但紧凑的空间对他们来说并不是一个主要问题。他们的计划是出租一楼和二楼,同时将上层用作私人住宅。关键的设计挑战是确保,尽管室内空间很小,但四楼的露台会给人一种开放和放松的感觉。
Owner's Vision: Scale and Style. The biggest reason the owner chose this building was its fourth floor. The ability to have an outdoor terrace and enjoy an open view of the sky was a deciding factor. Although the total floor area was limited—even with the owners occupying both the third and fourth floors—the compact space was not a major concern for them. Their plan was to rent out the first and second floors while using the upper levels as their private residence. The key design challenge was ensuring that, despite the small indoor space, the fourth-floor terrace would provide a sense of openness and relief.

© Joel Moritz
设计理念、结构和外部材料。由于外部楼梯的存在,建筑最具视觉优势的一侧——面向道路的一侧——显得杂乱无章。与周围的红砖建筑一样,它遵循了一种标准化的美学,但它看起来比邻居更混乱。鉴于自然光和景观条件较差,我们的首要任务是将建筑的外观打造成一个干净而引人注目的外观。由于较低的楼层将被出租,因此建筑以积极的方式脱颖而出也很重要。
Design Concept, Construction, and Exterior Materials. The most visually dominant side of the building—the one facing the road—was cluttered due to the external staircase. Like the surrounding red brick buildings, it followed a standardized aesthetic, but it appeared even more disorganized than its neighbors. Given the poor conditions for natural light and views, our main priority was to refine the building's exterior into a clean yet striking presence. Since the lower floors would be rented out, it was also important for the building to stand out in a positive way.

© Joel Moritz
我们认为,简单地简化立面就足以产生强烈的视觉效果。当我们探索各种材料时,预算限制使我们选择了最具成本效益的选择——一种不仅价格合理,而且与周围建筑形成鲜明对比的选择。
We believed that simply streamlining the façade would be enough to make a strong visual impact. While we explored various materials, budget constraints led us to choose the most cost-effective option—one that was not only affordable but also created a distinct contrast with the surrounding buildings.

© Joel Moritz

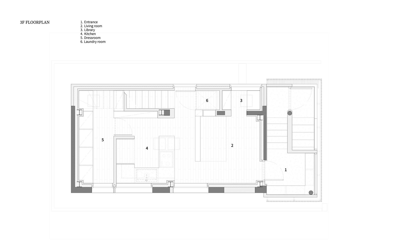
3rd Floor Plan

© Joel Moritz
室内布局和设计方法。最显著的内部特征是四楼和露台之间的无缝连接。在一座高大狭窄的建筑中,顶部的开放空间是通风和开放的重要来源。虽然周围的建筑高度相似,限制了外部视野,但我们将外部材料延伸到露台栏杆。这种方法有助于阻挡难看的景色,同时仍然可以无障碍地欣赏天空。
Interior Layout and Design Approach. The most significant interior feature was the seamless connection between the fourth floor and the terrace. In a tall, narrow building, this open space at the top served as a crucial source of ventilation and openness. Although the surrounding buildings were of similar height, limiting external views, we extended the exterior material up to the terrace railing. This approach helped block unsightly views while still allowing an unobstructed view of the sky.

© Joel Moritz

4th Floor Plan

© Joel Moritz
一个关键的设计决定是将浴室放置在四楼露台附近。通过在露台上整合自然绿化,创造一种开放的、面向天空的沐浴体验,我们的目标是建立一种令人耳目一新的日常仪式——一个在一天结束时放松和重置的机会。
A key design decision was placing the bathroom adjacent to the fourth-floor terrace. By integrating natural greenery on the terrace and creating an open, sky-facing bathing experience, we aimed to establish a refreshing daily ritual—an opportunity to unwind and reset at the end of the day.

© Joel Moritz
施工过程、挑战和独特之处。考虑到有限的自然光,我们专注于最大限度地提高气流和内部开放性。最初,我们考虑在三楼加入一个中庭式的空间来增强通风,但这个想法最终被放弃了,因为它大大减少了实际存储和可用空间。然而,对我们和业主来说,一个不可谈判的方面是宽敞的浴室,可以看到四楼的露台。即使以其他妥协为代价,这一功能对于确保独特而清新的生活体验至关重要。
Construction Process, Challenges, and Unique Features. Given the limited natural light, we focused on maximizing airflow and internal openness. Initially, we considered incorporating an atrium-like space on the third floor to enhance ventilation, but this idea was ultimately abandoned as it significantly reduced practical storage and usable space. However, one aspect that remained non-negotiable—for both us and the owner—was the spacious bathroom with a view of the fourth-floor terrace. Even at the cost of other compromises, this feature was essential in ensuring a unique and refreshing living experience.
© Joel Moritz