Casa Verde Gago/布鲁诺·迪亚斯建筑事务所
Casa Verde Gago / Bruno Dias Arquitectura
尊重与创新并存:Casa Verde Gago项目展示了对历史背景的尊重和创新精神的完美结合。它不仅仅是简单的翻新,更是一次对历史记忆的致敬。通过保留原建筑的精髓,同时引入现代设计元素,项目在过去和现在之间搭建了一座桥梁。这种设计手法巧妙地融合了传统葡萄牙房屋的特色,例如对木材的运用,结合现代的审美,创造了既熟悉又新颖的视觉体验。这体现了建筑师在设计中对细节的关注,以及对材料选择和使用的深刻理解。
空间与功能的巧妙转换:项目的亮点之一在于对原有空间进行再利用和重新定义。例如,将原本的酒窖改造成了带水箱和极简主义景观的户外空间,极大地提升了居住的舒适度与品质。同时,设计者精心规划了公寓的布局,使每个单元都拥有合理的功能分区。垂直交通的设置不仅有效地界定了空间,也为建筑增添了独特的个性。这种对空间功能的重新思考和优化,使得整个项目既满足了现代生活的需求,又保留了历史建筑的魅力。
和谐的视觉与材料运用:Casa Verde Gago在色彩和材料的选择上独具匠心。绿色外墙呼应了葡萄牙传统房屋的色调,营造出一种怀旧而温馨的氛围。木材的运用则为建筑带来了温暖的质感,并在视觉上创造了独特的和谐感。这种和谐并非简单的复古,而是在尊重传统的基础上,融入了现代设计理念,使得建筑既有历史的沉淀,又不失现代感。通过对材料和色彩的精妙运用,Casa Verde Gago营造出一种亲密、舒适且具有独特个性的居住空间。

© Hugo Santos Silva

© Hugo Santos Silva
建筑师提供的文字描述Casa Verde Gago位于安西安的历史中心,是一座旧建筑翻修的结果。这个项目有一种现代感,尊重其历史背景的记忆。同时,它能够反映一种创新的方法,保留遗址的精髓,同时在过去和现在之间建立对话,而不会损害设计和施工阶段所做选择中反映的历史身份。
Text description provided by the architects. Casa Verde Gago is located in the historic centre of Ansião and is the result of the renovation of an old building. This project has a contemporary feel that respects the memory of its historical context. At the same time, it is capable of reflecting an innovative approach, preserving the essence of the site, while establishing a dialogue between the past and the present, without compromising the historical identity reflected in the choices made during the design and construction phase.

© Hugo Santos Silva

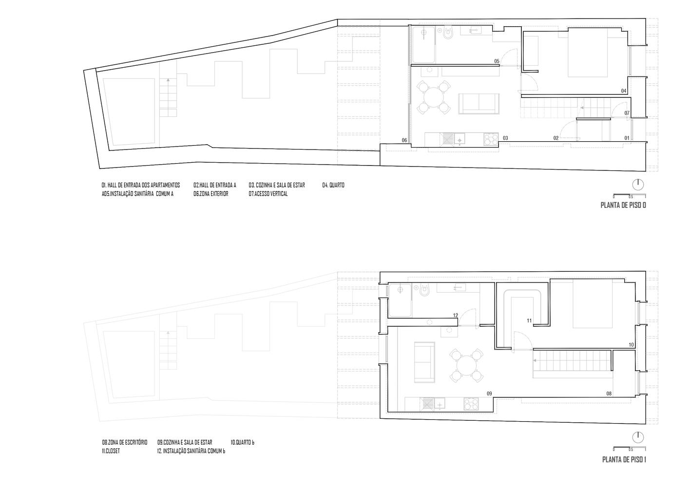
Plans

© Hugo Santos Silva

© Hugo Santos Silva
Casa Verde Gago这个名字来源于建筑所在街道的名称和立面颜色的融合。绿色是指传统葡萄牙房屋的色调,唤起了传统与现代相结合的微妙怀旧之情。它不仅仅是一种美学选择,它象征着对过去的记忆。木材是项目中的一个突出元素,指的是葡萄牙旧建筑的传统布局。然而,它的使用旨在创造一种轻微的视觉不和谐,从通常的传统中脱颖而出,但不会破坏街道的和谐。这种材料,无论是在结构上还是在内部细节上,都给人一种亲密舒适的感觉。
The name Casa Verde Gago comes from the fusion of the name of the street where the building is located and the colour chosen for the façade. Green, which refers to the colour palette of traditional portuguese houses, evokes the subtle nostalgia that combines the traditional with the contemporary. More than just an aesthetic choice, it symbolises the memory of the past. The presence of wood, a prominent element in the project, refers to the traditional layout of old portuguese buildings. However, its use has been designed to create a slight visual dissonance, standing out from the usual tradition, but not breaking with the harmony of the street. This material, both in the structure and in the interior details, gives the space an intimate and cosy feel.

© Hugo Santos Silva

© Hugo Santos Silva
Casa Verde Gago的另一个重要方面是露台。这个重要的社交空间在使用方面已经发生了变化。在曾经有酒窖的地方,这个空间被重新定义,创造了一个带水箱和极简主义景观的户外空间,为居民创造了一种更现代、更温馨的环境。该项目分为两套一居室公寓,每套位于一层。每套公寓都包括一间卧室、厨房、起居区、浴室,在平面图一楼还有一间办公室和壁橱。垂直通道是界定和定义公寓分布的元素。
Another essential aspect of Casa Verde Gago is the patio. This important space for socialising has been transformed in terms of its use. Where there used to be a wine cellar, the space has been redefined with the creation of an outdoor space with a water tank and minimalist landscaping, creating a more modern and welcoming environment for the residents. The project is divided into two one-bedroom apartments, each on one floor. Each apartment consists of a bedroom, kitchen, living area, bathroom and, on Plan Floor 1, an office and closet. The vertical access is the element that delimits and defines the distribution of the apartments.
© Hugo Santos Silva