牛顿公园/ROAR
Newton Park Place / ROAR
设计理念的创新与传承:牛顿公园项目最令人印象深刻的亮点在于其对历史文脉的尊重与现代设计语言的巧妙融合。面对二级保护建筑,设计团队ROAR没有选择简单地复刻维多利亚时代的风格,而是以前瞻性的视角,设计了一个与当代花园相呼应的现代扩建部分。这种“差异化”的设计策略,在尊重历史的同时,也赋予了建筑全新的生命力。橡木材料的选择不仅体现了对可持续发展的关注,也为项目带来了温暖、自然的质感。这种对材料和设计的精细考量,使得扩建部分与原有建筑和谐共生,相得益彰,展现了设计团队深厚的设计功底和对建筑本质的深刻理解。
空间布局的灵动与功能性:项目的精髓在于其对空间布局的巧妙设计,满足了居住者对生活品质的追求。设计师没有采用常见的开放式布局,而是将空间划分为独立的厨房、餐厅和客厅,创造了更具私密性和功能性的居住环境。特别是新的用餐区,巧妙地利用天窗和落地窗引入自然光线,营造出温馨舒适的氛围。螺旋酒窖的设计,既满足了储藏需求,又成为空间的一大亮点。此外,全宽的双折叠窗,最大化了室内外的连接,实现了“内外通透”的设计理念。这些细节体现了设计师对居住者生活方式的深刻洞察,以及对空间利用的极致追求,使建筑不仅具有美观的外形,更具备了卓越的功能性,满足了居住者对舒适度和生活品质的需求。
可持续发展的实践与生态融合:牛顿公园项目体现了对可持续发展理念的深入实践。通过在主屋屋顶安装太阳能电池板,减少能源消耗;采用野花绿色屋顶,改善生物多样性。这些措施不仅降低了建筑对环境的影响,也提升了居住体验。而由Lily Gomm设计的花园景观,更将建筑与自然完美融合。精心设计的铺砌、池塘和种植,营造出宜人的户外空间,并将视线引向远方,将居住体验延伸到室外。这种对可持续性、生态环境和景观的全面考量,不仅使建筑更具生命力,也为未来的建筑设计提供了宝贵的经验。整个项目体现了对环境负责的设计态度,以及对人与自然和谐共生的美好愿景。

© Craig Wharton

© Craig Wharton
建筑师提供的文字描述ROAR已经完成了可持续发展;天然材料导致了伦敦东南部Chislehurst一处历史悠久的维多利亚式房产的扩建。橡木扩建项目为房主Kelly Johnson及其家人提供了一个最小的休憩空间,为该物业增加了30平方米的面积,价格为45万英镑加增值税。Newton Park Place是一处位于Chislehurst保护区的二级上市物业,由维多利亚时代建筑师Ernest Newton设计,以其白话复兴风格、不对称平面和不规则开窗为特征。ROAR没有像之前在2007年进行的改建那样模仿传统的维多利亚式建筑,而是有意将新的木结构扩建部分设计得与众不同——这是一个与当代花园相匹配的现代扩建部分,并允许对房屋内部进行大幅扩建。
Text description provided by the architects. ROAR have completed a sustainable & natural material-led extension to a historic Victorian property in Chislehurst, South East London. With a brief for a minimal retreat for homeowner Kelly Johnson and her family, the oak extension adds 30sqm to the property for £450,000 plus VAT. A Grade II Listed property located in the Chislehurst Conservation Area, Newton Park Place was designed by Victorian architect Ernest Newton and characterized by it's Vernacular Revival style, asymmetrical plan, and irregular fenestration. Rather than imitate the traditional Victorian architecture, as had been done previously with alterations in 2007, ROAR designed the new timber framed extension to be purposefully different - a modern addition that matches the contemporary garden and allows for a large extension to the home's interiors.

© Craig Wharton

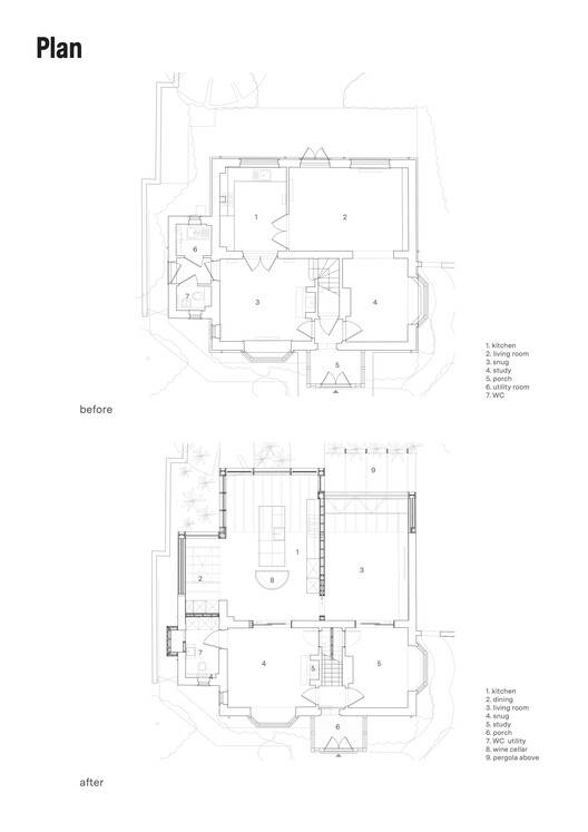
Plans

© Craig Wharton
Kelly在《Don't Move,Improve!他们觉得自己有经验和技能来设计现代、可持续和美丽的东西。起初,她正在寻找带有Crittall窗户的常见砖砌扩建,但ROAR想做一些更大胆、更环保的事情,说服她改用木材。橡木因其低碳和长寿命,以及木纤维隔热的规格而被选中。与专业木匠Tim Gaudin合作,该框架在德文郡的车间制造,拆卸,然后在伦敦现场重新组装。
Kelly approached ROAR as she had seen their work via Don't Move, Improve! and felt they had the experience and skills to design something that would be contemporary, sustainable, and beautiful. Initially, she was looking for the usual brick extension with Crittall windows but ROAR wanted to do something bolder and greener, convincing her to go with timber instead. Oak was selected for its low embodied carbon and longevity, along with the specification of wood fiber insulation. Working in partnership with specialist joiner Tim Gaudin, the frame was fabricated in their workshop in Devon, dismantled, and then reassembled on-site in London.

© Craig Wharton

© Craig Wharton
在内部,房主凯利·约翰逊(Kelly Johnson)要求在后面留出两个单独的空间,用于厨房和厨房;餐厅和客厅。新的用餐区是厨房外的一个单独的“角落”,由上方的天窗和落地窗环绕。最后是红绳吊坠,有温暖而丰富的暴露橡木托梁、拱腹和开窗。房主的葡萄酒选择现在也整齐地存放在一个由工程石灰岩混凝土制成的3米深的螺旋酒窖中。全宽4米宽的双折叠窗和集成式窗座构成了新的生活区。外露的托梁延伸到橡木凉棚里。凉棚的花盆在客厅提供隐私屏蔽和防晒保护,但随着时间的推移,也会形成一个绿色的围栏,供户外用餐。在夏季,双折叠门可以完全打开,最大限度地加强内外之间的联系。
Inside, rather than the customary open plan design that's typical of London residential extensions, homeowner Kelly Johnson asked for two separate spaces to the rear for kitchen & dining and living room. The new dining area is a separate 'nook' off the kitchen framed by the skylight above and picture window. Finished off by the red string pendant, with warm and rich exposed oak joists and soffit and fenestration. The homeowner's wine selection is also now neatly archived in a 3m deep spiral wine cellar crafted from engineered limestone concrete. Full width 4m wide bi-folding windows with an integrated window seat complete the new living area. With the exposed joists extending into the oak pergola. The planters to the pergola provide privacy screening in the living room and solar protection, but also over time will form a green enclosure for outside dining. During summer the bi-folding doors can be fully opened maximising this connection between inside and out.

© Craig Wharton
在可持续性方面,ROAR热衷于任何保持花园和高质量设计的作品。太阳能电池板被安装在主屋的屋顶上,隐藏在视线之外,以减少能源费用。扩建部分顶部是野花绿色屋顶,改善了生物多样性,软化了扩建部分,创造了一种令人惊叹的体验;主卧室的景色就像拥有自己的野生草地。
In terms of sustainability, ROAR were keen that any works felt in keeping the garden and high quality design. Solar panels were incorporated on the roof of the main house concealed from view to reduce energy bills. And the extension topped by a Wildflower green roof, improving biodiversity, softening the extension and creating an amazing experience & view from the master bedroom akin to having your own wild meadow.

© Craig Wharton
Lily Gomm的花园设计直接从房屋的建筑延伸出来,定义了种植床,并将景观框回到了延伸部分。一系列定制的大幅铺砌与门洞对齐,将视线引向花园,并将您引导到两个空间——一个有池塘和相邻长椅的区域,作为坐下来欣赏池塘吸引的野生动物的地方,还有一个更大的开放空间,里面有舒适的椅子和植树。这两个空间都由粘土铺路砖的边缘细节进一步定义,并铺设了自粘砾石,与靠近房屋的更大面积的粘土铺路砖形成对比。
The garden design, by Lily Gomm, extends directly from the architecture of the house defining the planting beds and framing the view back to the extension. A run of bespoke large format paving aligns to the door opening drawing the eye out into the garden and directing you to two spaces - an area with a pond and adjacent bench seating as a spot to sit and enjoy the wildlife the pond lures in and a larger open space containing comfy chairs and feature tree planting. Both spaces are further defined by edging details of clay pavers and are laid with self-binding gravel to contrast against the larger areas of clay pavers closer to the house.

© Craig Wharton