格里菲斯大道之家/考特尼·麦克唐纳建筑师事务所
Griffith Avenue House / Courtney McDonnell Architects
项目亮点:这个项目体现了建筑师对原有结构的尊重,对新旧融合的巧妙运用。项目在保留原有结构的基础上,通过设计和改造,实现了对1950年代老房子的翻新与扩建,充分利用了新的空间和光线,创造出开放式的生活空间,满足了客户对开放式生活和连接户外环境的需求。项目也展示了对细节的关注,以及在设计中融入当代元素的创意。例如,格里菲斯大道之家对原有房屋的翻修和扩建,展示了其对细节的关注,以及在设计中融入当代元素的创意。
项目精髓:格里菲斯大道之家的精髓在于其对功能性和美学上的平衡。设计既考虑了现代生活方式的需求,又保留了原有的建筑特色。通过巧妙的结构调整和细节设计,项目将现代元素融入了旧建筑,创造出具有现代风格的建筑空间。该项目还巧妙地利用了光线和空间,例如通过屋顶光线和庭院,将自然光引入室内,营造出舒适、宽敞的居住环境。这种对光线、空间和功能的结合,是该项目最值得称赞的地方。
项目评价:从建筑设计角度来看,格里菲斯大道之家是一个成功的改造项目。它不仅解决了功能性的问题,比如客户的居住需求,还保留了建筑的历史价值,并将其与现代的设计元素相结合。设计师对空间的合理利用,对材料的选择,以及对光线的控制,都体现了其专业的水平。项目在保留原有结构的基础上,通过设计和改造,实现了对1950年代老房子的翻新与扩建,充分利用了新的空间和光线,创造出开放式的生活空间。这种设计既考虑了历史的延续,也满足了现代生活的需求,是一个兼具实用性和美观性的优秀案例。

© Peter Molloy

© Peter Molloy
建筑师提供的文字描述2021年,Courtney McDonnell Architects受聘对格里菲斯大道上最近购买的一栋20世纪50年代的房子进行翻修和扩建。这栋房子需要全面升级,并进行重新配置和扩建,以适应客户的需求。
Text description provided by the architects. In 2021, Courtney McDonnell Architects were engaged to work on the renovation and extension of a recently purchased 1950s house on Griffith Avenue. The house required significant upgrading throughout, together with a reconfiguration and extension to suit the client's brief.

© Peter Molloy

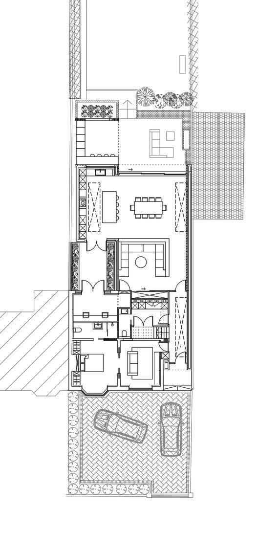
Plan

© Peter Molloy
我们的客户最近从美国搬来,他们呼吁开放式生活,与户外相连,有足够的娱乐和社交空间,有一个家庭办公室、一个新的前门、一个主卧套房和一个单独的探亲套房。该设计的核心是将该物业恢复到其原始形态,同时引入当代扩建,以增强功能和美学吸引力。
Our clients, who had recently relocated from the US, called for open-plan living with a connection to the outdoors, plenty of spaces to entertain and gather socially, a home office, a new front entrance, a master suite, and a separate guest suite for visiting family. The design centers on restoring the property to its original form while introducing a contemporary extension that enhances functionality and aesthetic appeal.

© Peter Molloy

© Peter Molloy
面对格里菲斯大道的原始前台接待室被保留下来,并被改建为客房,以容纳来访的家人。一个新的侧边延伸是新旧之间的纽带,其特征是面向大道的重新定位的前门(最初位于山墙上),一个巨大的屋顶灯,以及暴露的木托梁,这些托梁在一天中投射出不断变化的光影图案。这个过渡空间通过隐蔽的镶板门谨慎地容纳了通往原始房间的通道,通往衣帽间、客房套房、公用设施和卫生间。
The original front reception rooms facing Griffith Avenue were preserved and repurposed as a guest suite to accommodate visiting family. A new side extension serves as a link between the old and new, featuring a relocated front door that faces the Avenue (originally located on the gable), a dramatic large roof light, and exposed timber joists that cast shifting patterns of light and shadow throughout the day. This transitional space discreetly houses access to the original rooms, via concealed paneled doors, to a coat closet, guest suite, utility, and WC.

© Peter Molloy
在新走廊扩建的尽头,一扇引人注目的白色水晶玻璃门通往一个面向后花园的现代化两层砖砌扩建部分。一楼包括开放式起居区、厨房和用餐区,而一楼则专用于主卧套房。一楼的庭院将自然光引入方案的核心。
At the end of the new hallway extension, a striking white crystal glass door opens into a modern two-story brick extension facing the rear garden. The ground floor encompasses open-plan living, kitchen, and dining areas, while the first floor is dedicated to a master suite. A courtyard on the ground floor draws natural light into the heart of the scheme.