莱特之家/施瓦茨与建筑
Leit House / Schwartz and Architecture
设计理念的巧妙呼应:项目最引人注目的亮点在于其设计理念与场地环境的深度融合。建筑师巧妙地借鉴了索诺玛山谷火山岩的特质,将建筑外观、材料选择与当地地貌紧密结合。黑色的雪松木外墙(寿杉板)不仅是对火山岩色彩的呼应,更是一种具有实用意义的防火策略,体现了设计对环境的尊重与适应。这种对场地文脉的理解与回应,使得建筑不仅仅是一个居住空间,更像是一件与自然融为一体的艺术品,展现了建筑设计的高度。建筑师通过对材料的精心选择,传递出对环境的敬畏。
功能与形式的和谐统一:该项目在有限的空间内实现了功能的最大化,体现了建筑师对空间利用的极致追求。尽管建筑面积仅为816平方英尺,但通过精心布局,满足了居住者的生活需求。开放式的起居空间和紧凑的储藏“脊柱”设计,在视觉上增加了空间的通透感,也确保了功能的完整性。项目的平面图和剖面图清晰地展示了建筑师对空间尺度和比例的精准把握。设计团队在控制预算的同时,依然保证了设计的核心理念得以延续,这种对功能与形式的统一考量,是项目成功的关键因素,也展现了建筑师的专业能力。
可持续设计的深入实践:该项目在可持续设计方面展现了卓越的实践,超越了常规的规范要求。建筑师不仅注重材料的环境友好性,选择了低碳排放的材料,如浴室瓷砖、木材,更将可持续理念融入到建筑的整体系统,包括太阳能、离网供水和化粪池系统。这种对可持续设计的深入理解,体现在对细节的极致追求上,也体现在建筑与环境的和谐共生中。项目以最小的建筑面积实现了最大的功能,从根本上减少了对环境的影响,实现了对土地的尊重,充分体现了建筑师对可持续设计的深刻理解和实践。

© Douglas Sterling Photography

© Douglas Sterling Photography
建筑师提供的文字描述数百万年前,索诺玛山谷的火山喷出炽热的岩浆。随着熔岩迅速冷却,喷发的气体被困住,形成多孔空腔,而不是结晶成致密的石头。这些变黑的岩石——流纹岩、玄武岩、安山岩和浮石——至今仍点缀在风景中,尽管外表如此,但它们的轻盈令人惊讶。
Text description provided by the architects. Millions of years ago, the volcanoes of Sonoma Valley spewed hot magma across the landscape. As the lava quickly cooled, the eruption's gases became trapped, forming porous cavities instead of crystallizing into dense stone. These blackened rocks —rhyolite, basalt, andesite, and pumice—still dot the landscape today, surprising in their lightness despite all appearances.

© Douglas Sterling Photography
该建筑是开阔景观中的另一个“点”,参考了变黑岩石的弹性,使用了固有的耐火材料、水泥灰泥、立缝金属和变黑的雪松墙板,这是寿杉板的传统。后者既是对火山岩形成过程的概念性认可,也是一种实用的消防策略。
The structure sits as another "dot" in the open landscape and references the resiliency of the blackened rocks, using inherently fire-resistant materials, cementitious stucco, standing seam metal, and blackened cedar siding in the tradition of the Shou Sugi Ban. The latter is both a conceptual nod to the process of volcanic rock formation and a practical strategy for fire protection.

© Douglas Sterling Photography

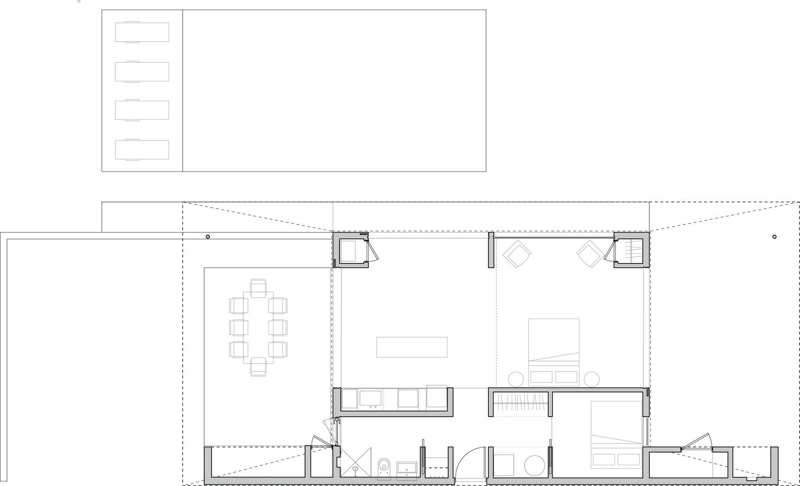
Plan

© Douglas Sterling Photography
在一个将开放式生活区锚定在山谷的密集存储“脊柱”图中,我们研究了房屋大小和功能的许多可能性。最后,为了实现预算目标,我们将允许的方案减少了三分之一,只需从可扩展图中删除一个隔间即可。816 SF计划的最终版本保留了图表的精髓,但以一种低调的方式。
Within the diagram of a dense storage 'spine' anchoring an open living area towards the valley, we studied many possibilities for the size and function of the home. In the end, to meet budget goals, we reduced our permitted scheme by one-third, simply removing a bay from the expandable diagram. The final version of the 816 SF plan maintained the essence of the diagram, but in a much down way.

Sections

© Douglas Sterling Photography

Sunrise Diagram
事实上,在可预见的未来,“宾馆”将成为主楼。尽管该地块占地40英亩,但客户看到了缓慢开发该物业的长期前景。目前,这个小结构满足了他们与双胞胎孩子的所有周末需求。尽管,或者可能是因为,该项目的规模小,功能基本,但每一个细节都很重要。在这里,黑暗巨大的屋顶上不可思议的轻盈感是该项目的关键主题。我们将这座建筑视为一个雕塑般的物体,让人联想到散布在山谷景观中的火山岩。
The 'guest house' will, in fact, be a main house for the foreseeable future. Although the site is 40 acres, the clients see the long game in slowly developing the property. For now, this tiny structure serves all their weekend needs with their twin children. Despite, or perhaps because of, the project's small scale and basic functions, every detail counts. Here, the uncanny feeling of lightness in the dark massive roof is the critical leitmotif for the project. We treated the structure as a sculptural object reminiscent of the volcanic rocks strewn across the valley landscape.

© Douglas Sterling Photography
该项目提出了一种持久的、非侵入性的房屋与这片日益受到火灾威胁的景观的关系——一种在这片脆弱的土地上轻盈但具有弹性的建筑。除了代码要求的可持续性措施外,该项目还从更根本的层面实现了这些目标。最重要的是,这是一个功能齐全的小家庭住宅,占地40英亩,占地816平方英尺;当然,可持续建筑的一个主要衡量标准是尽可能少地建造。其中一位客户在该领域工作,并始终如一地监控与这些目标相关的设计和施工。每种材料都因其对环境的低影响而被选中,无论是浴室瓷砖和木材种类,还是建筑系统,包括太阳能、离网井和化粪池系统。
The project proposes a lasting, non-invasive relationship of the house to this increasingly fire-threatened landscape –an architecture that treads lightly but with resilience on this fragile land. Beyond the code required measures of sustainability, this project embraces these goals at an even more fundamental level. Most critically, this is a fully functional home for a small family with an 816 SF footprint on a 40-acre site; certainly, a prime measure of sustainable building is building as little as possible. One of the clients works in this field and consistently monitors the design and construction relative to these goals. Each material was selected for its low environmental impact —whether bathroom tile and species of wood or building systems, including solar power and an off-grid well and septic system.

© Douglas Sterling Photography