Mathamangalam House/SOHO建筑师事务所
Mathamangalam House / SOHO Architects
空间布局的巧妙设计:Mathamangalam House的空间组织简单而高效,由两个功能分区组成:一个提供隐私和宁静的睡眠区,另一个则是充满活力的客人生活区、厨房和服务区。两者通过一个双层高的家庭区域连接,该区域作为家庭的核心,其开阔的空间感和大窗户设计,不仅提升了室内的通透性,还巧妙地将室内外空间融合,创造出一种自然流动的生活体验。这种布局既满足了家庭成员的独立需求,又增强了家庭成员之间的互动性。
气候适应与可持续性:该住宅的设计充分考虑了喀拉拉邦潮湿的热带气候,通过精心规划的分区布局,巧妙地应对了西南和东北风向,确保全年良好的通风效果。这种被动式通风设计不仅减少了对人工冷却系统的依赖,提高了能源效率,还为居住者营造了舒适宜人的室内环境。这种对自然气候的敏感性和对可持续设计的追求,展现了建筑与环境之间的和谐共生。
视觉与功能的平衡:建筑的立面设计通过双层高的柱子和悬挑屋顶,营造出富有节奏感和视觉冲击力的效果。同时,穿孔墙的巧妙运用在提供隐私保护的同时,又保证了空气的自由流通。这种设计在视觉美感与功能需求之间达到了完美的平衡,既创造了私密、亲密的空间,又让整个住宅与自然环境保持紧密联系,体现了设计的智慧和对居住者需求的深刻理解。

© Varun Gopal, Abin Biju

© Varun Gopal, Abin Biju
建筑师提供的文字描述该住宅位于喀拉拉邦坎努尔古朴的Mathamangalam村。场地地势较高,加上逐渐上升和广阔的前景,让人在接近住宅时有一种期待感。这段上升的旅程将居住者与自然环境联系起来,让人们逐步体验房子。
Text description provided by the architects. The residence is located in the quaint village of Mathamangalam in Kannur, Kerala. The elevated topography of the site coupled with the gradual ascent and expansive foreground on offer gives a sense of anticipation as one approaches the residence. This rising journey connects the occupants to the natural surroundings, allowing the house to be experienced progressively.

© Varun Gopal, Abin Biju

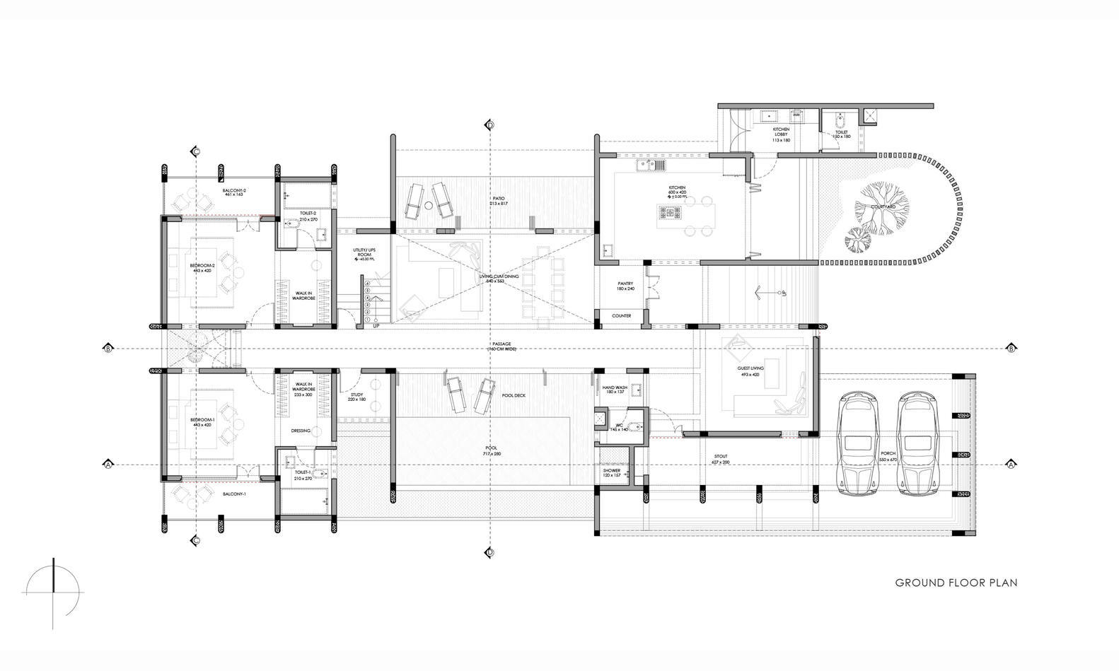
Ground Floor Plan

© Varun Gopal, Abin Biju
房子的结构简单而实用,由两个不同的街区组成。一个街区设有睡眠区,提供隐私和宁静,而另一个街区则设有客人生活区、厨房和服务区,确保日常生活的高效组织和流动。这两个街区由一个漫长而广阔的家庭区域连接起来,该区域是家庭的核心。家庭区采用双层天花板设计,给人一种开放和宏伟的感觉,而大窗户和滑动门则提供了直接的视野和通往室外空间的通道。在这个区域的一边,游泳池可以放松和娱乐,而在另一边,一个宁静的花园庭院提供了宁静的户外度假场所。
The organization of the house is simple yet functional, composed of two distinct blocks. One block houses the sleeping quarters, providing privacy and tranquility, while the other block contains the guest living, kitchen, and service areas, ensuring efficient organization and flow of daily life. These two blocks are linked by a long, expansive family area, which serves as the heart of the home. The family area is designed with a double-height ceiling, giving it a sense of openness and grandeur, while large windows and sliding doors offer direct views and access to the outdoor spaces. On one side of this area, a swimming pool invites relaxation and recreation, while on the opposite side, a peaceful garden court provides a serene outdoor escape.

© Varun Gopal, Abin Biju

Diagram

© Varun Gopal, Abin Biju
该设计有效地适应了喀拉拉邦潮湿的热带气候。房屋的分区经过仔细考虑,以应对主要的西南风和东北风模式,确保住宅全年保持良好的通风和舒适。通过调整房屋以捕捉这些凉爽的微风,该设计最大限度地减少了对人工冷却系统的需求,从而提高了能源效率并促进了被动通风。
The design efficiently responds to Kerala's humid tropical climate. The zoning of the house has been carefully considered to respond to the predominant southwest and northeast wind patterns, ensuring that the residence remains well-ventilated and comfortable throughout the year. By aligning the house to capture these cooling breezes, the design minimizes the need for artificial cooling systems, thus enhancing energy efficiency and promoting passive ventilation.

© Varun Gopal, Abin Biju
悬挑屋顶由双层高的柱子支撑,不仅提供结构支撑,还创造出富有节奏感、视觉冲击力的立面。为了进一步优化空间体验并提供隐私,在厨房庭院和游泳池区域周围战略性地放置了穿孔墙。这些墙定义并封闭了特定的空间,确保厨房和游泳池等私人区域不被看到。同时,墙壁上的穿孔允许空气自由流通,保持整个房屋的自然通风。这种设计确保了隔离和开放之间的平衡,创造了私人、亲密的空间,这些空间仍然与更大的环境相连。
The overhanging roof is supported by double-height columns, which not only provide structural support but also create a rhythmic, visually striking façade. To further refine the spatial experience and provide privacy, perforated walls are strategically placed around the kitchen court and the pool area. These walls define and enclose specific spaces, ensuring that private areas like the kitchen and pool are protected from view. At the same time, the perforations in the walls allow air to circulate freely, maintaining a continuous flow of natural ventilation throughout the house. This design ensures a balance between seclusion and openness, creating private, intimate spaces that are still connected to the larger environment.

© Varun Gopal, Abin Biju