房子8/马科斯·贝尔托迪·阿尔奎托斯
House 8 / Marcos Bertoldi Arquitetos
环境融合与设计尊重:该项目在2124平方米的坡地上巧妙地融入了自然环境,通过建筑退缩和保留原生林地,体现了对自然的尊重。L形布局不仅优化了空间功能分区,还将社交区域、服务空间和工作室合理集中。建筑的双层高体量和绿色屋顶设计,既满足了功能需求,又减少了对周边环境的压迫感。这种对环境的敏感性和设计的巧妙结合,是项目的显著亮点。
空间与光影的精妙处理:社交区的设计展现了建筑技术和美学的完美融合。四面玻璃的矩形布局,充分利用了东方和西方的自然光线,同时通过抬高西面开口的高度,确保了隐私。屋顶和墙面的倒置梁设计,创造出一种“爆炸体积”的视觉效果,使光线可以从不同角度进入空间。这种设计不仅提升了空间的通透感,还增强了建筑的现代感和艺术性。
材料与景观的和谐统一:项目在材料选择和景观设计上表现出高度的统一性。外露的混凝土结构与灰色陶瓷砖的搭配,形成了轻盈与厚重的对比,营造出独特的质感。主入口的圆形剧场式设计和巴拉那白色大理石的层叠排列,不仅美化了景观,还有效稳定了坡地。这种对材料和景观的精心雕琢,使建筑与自然环境相得益彰。

© Eduardo Macarios

© Eduardo Macarios
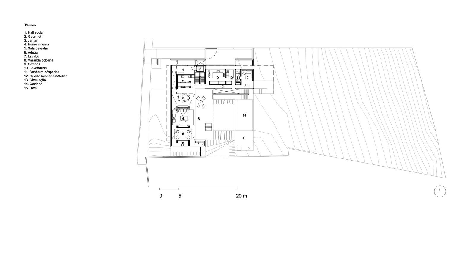
建筑师提供的文字描述2124平方米的坡地,后面有一片原生林地,通过建筑退缩、保留后面的草坪花园和游泳池来定义该项目,同时尊重当地环境法规要求的保护区。L形的底层平面图集中了社交区域、服务空间和工作室。L的较短部分有一个单层双层高的体量,专门用于房屋的主要生活空间,并辅以位于绿色屋顶下较低体量的化妆室和酒窖。较长的一段由三层组成,从地下室的车库、一楼的服务区和楼上的卧室开始。卧室位于北面,主卧面向东方,俯瞰着林地。
Text description provided by the architects. The 2,124 m² sloping lot with a native woodland at the rear, defined the project by imposing a building setback, preserving a lawned garden and a pool at the back, while respecting the protection zones required by local environmental regulations. The L-shaped ground floor plan concentrates the social areas, service spaces, and a studio. The shorter leg of the L features a single-story double-height volume dedicated to the main living spaces of the house, which are complemented by a powder room and a wine cellar located in the lower volume beneath a green roof. The longer leg comprises three levels, starting with garages in the basement, service areas on the ground floor, and bedrooms on the upper floor. The bedrooms are positioned to the north, with the master suite facing east and overlooking the woodland.

© Eduardo Macarios

Plan - Ground floor

© Eduardo Macarios
矩形布局的四面都装有玻璃的社交区,在面向游泳池的一侧受益于东方的阳光,在面向街道的立面上受益于西方的阳光。为了确保隐私,西面的开口从离地面3米以上的高度开始。在社会领域,技术和美学融合在一起。屋顶板和侧面暴露的混凝土墙对细长比例的追求是通过两个倒置的梁来实现的,这两个梁将这些平面连接起来,不允许它们接触。其结果是,人们会感觉到一个爆炸的体积,由允许光线从不同角度进入的分离面板组成。这些倒置的梁还锚定了一个巨大的暴露混凝土棱柱体,该棱柱体悬浮在社会区域上方,向外突出到林地,悬臂超过5米。这个街区包括一个英式庭院照亮的家庭活动室和房子的其余私人区域。
The social area, glazed on all four sides of the rectangular layout, benefits from eastern sunlight on its side facing the pool and western light on the street-facing façade. To ensure privacy, the western openings begin at a height of over 3 meters above the floor. In the social area, technique and aesthetics converge. The pursuit of slender proportions in the roof slab and the lateral exposed concrete walls is achieved through two inverted beams that connect these planes without allowing them to touch. The result is the perception of an exploded volume, composed of detached panels that allow light to enter from various angles. These inverted beams also anchor a large prismatic block of exposed concrete, which hovers above the social area, projecting outward toward the woodland with a cantilever of over 5 meters. This block contains the family room, illuminated by an English courtyard, and the remainder of the private areas of the house.

© Eduardo Macarios
外露的混凝土结构和围护结构从地面升起。直接铺设在地面上的墙壁覆盖着灰色陶瓷砖,其纹理和体积与暴露的混凝土元素的轻盈形成对比。主入口以圆形剧场般的楼梯和广场为特色,也采用了相同的材料。房屋编号“8”被整合到一个黑色金属栏杆中,可以通过两个圆形切口看到。景观设计最引人注目的特点是巴拉那白色大理石块的层叠排列,这有助于稳定现有的坡度。
The exposed concrete structure and enclosures are raised off the ground. The walls laid directly on the terrain are covered in gray ceramic bricks, contrasting in texture and volume with the lightness of the exposed concrete elements. The main entrance, featuring an amphitheater-like staircase and plaza, is also finished in the same material. The house number '8' is incorporated into a black metal railing, visible through two circular cutouts. The most striking feature of the landscaping is a cascading arrangement of Paraná white marble blocks, which aids in stabilizing the existing slope.

© Eduardo Macarios