黄屋/JOYS建筑师事务所
Yellow House / JOYS Architects
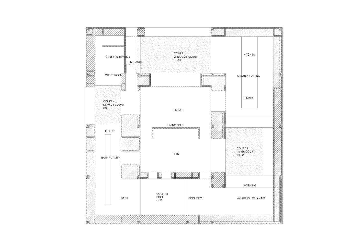
空间布局与功能划分:Yellow House项目以其独特的空间布局展现了建筑与环境的完美融合。建筑分为“内空间”和“外空间”,内空间承载高度私密的功能,而外空间则由四个露天庭院组成,围绕内空间展开。每个庭院根据其朝向和地形特点,被赋予不同的功能,如迎宾庭院、内院、游泳池和服务中心。这种设计不仅满足了不同生活场景的需求,还巧妙地利用地形和树木,使建筑与自然环境相得益彰。
庭院设计与环境互动:四个庭院的设计是该项目的一大亮点。它们不仅为建筑内部带来充足的自然光和新鲜空气,还通过各自的高度和功能设计,定义了周边区域的用途。例如,迎宾庭院的高度设计既提供了隐私保护,又作为通往厨房的通道;而游泳池庭院则因无需保留树木而被挖掘成一个多功能的休闲区。这种设计不仅优化了空间利用,还通过庭院的连接,使整个建筑区域成为一个有机的整体。
材料运用与时间美学:项目中“混凝土表皮”的使用体现了建筑的时间美学。混凝土被浇注在砖墙顶部,形成坚固且耐候的外立面。随着时间的推移,混凝土表皮会逐渐风化,使建筑的内外墙呈现出统一的质感。这种材料选择不仅增强了建筑的整体性,还赋予了建筑一种随时间演变的美感,使其在岁月的洗礼下愈发自然和质朴。

© Beersingnoi

© Beersingnoi
建筑师提供的文字描述Text description provided by the architects. Yellow House is situated in a sloped area that is surrounded by a lot of big trees scattered all over the site. The house consists of two main parts. The first is the "inner spaces," composed of highly private functions. And they are surrounded by "outer spaces," which are composed of less private functions. The "outer spaces" are open-air courts that are situated on four sides of the house.

© Beersingnoi

Plan

© Beersingnoi
这个庭院允许阳光和空气进入“内部空间”。所有四个庭院在规模和尺寸方面都有自己的特点,这取决于它们的朝向,以保持现有的树木和地面的坡度。由于法院的地位,它们有自己的职能,并定义了周围地区的职能。例如:
This court allows daylight and air into the "inner spaces." All four courts have their own character in terms of scale and dimension, depending on their orientation to maintain the existing trees and slope of the ground. And because of the courts' position, they have their own functions and define the functions of the area around them. Such as:

© Beersingnoi
•“迎宾庭院”位于房屋前方,高度为+0.30米,因此该庭院起到了屏蔽庭院的作用,略微将内部空间(客厅)与外界隔开。由于地面高度不太高(0.30米),它也可以作为通往厨房的通道
•“内院”周围有一个柜台和桌子,因为它的地面高度为0.70米。这个高度适合制作工作台或柜台,所以它周围的功能就像一个用餐和工作区
•“游泳池”与其他法院不同,因为该法院所在地没有任何现有的树木,因此没有必要保持土地水平以保持任何树木。球场挖了1.10米建了一个游泳池。这个游泳池还创造了周围的功能,比如放松区和沐浴区
•“服务法庭”与房屋(0.00)位于同一楼层,用作可以从内部轻松进入的法庭,因此它充当了周围辅助设施和女佣室的服务法庭。
• The "Welcome Court," which is located at the front of the house and is +0.30 meters high, so this court acts as a shielded court that slightly hides the inner space (the living room) from the outside. and it also acts as an accessway to the kitchen due to the not-too-high ground level (0.30 meters).
• The "Inner Court," has a counter and table around it because its ground-level height is 0.70 meters. That height is suitable for making a working table or counter, so functions around it like a dining and working area.
• The "Pool," which is different from the other court because this court does not have any existing trees at the location, so it is not necessary to keep the land level for keeping any trees. The court is dug 1.10 m for a pool. And this pool also creates functions around it, like a relaxing area and a bath area.
• The "service court," which is at the same level as the house (0.00), is used as a court that can be easily accessed from inside, so it acts as a service court for support utility and maid rooms around it.

© Beersingnoi

Diagram

© Beersingnoi
此外,所有法院不仅在其周围创造功能,而且还连接周围地区。因此,“外部空间”与“内部空间”周围的圆形区域相连。庭院及其周围的空间被从一个空间流向另一个空间的日光和新鲜空气所溶解。同样地,空间的视图是由材料连接起来的,这就是“混凝土表皮”。
In addition, all the courts not only create functions around them but also connect the surrounding area. So, the "outer spaces" are connected to a circular area around the "inner space." The court and its surrounding space are dissolved by daylight and fresh air, which flows from one space to another. In the same way, the view of space is connected by material, which is the "concrete skin".

© Beersingnoi

© Beersingnoi
由于持续时间和时间的原因,“混凝土表皮”用于将内部和外部空间连接在一起。混凝土浇注在砖墙的顶部。混凝土表皮足够坚固,可以风化。因此,随着时间的推移,外墙和内墙都是一样的。它在内部和外部空间之间建立了联系。
"Concrete Skin" is used to link inside and outside space together due to duration and time reasons. Concrete is cast on top of the brick wall. The concrete skin is strong enough for weathering. So, the exterior and interior walls are all the same when time passes. It makes a connection between inside and outside spaces.

© Beersingnoi