Namoncahue House/施温贝尔加西亚-惠多布罗建筑事务所
Namoncahue House / Schwember García-Huidobro Arquitectos
创新的结构设计:Namoncahue House 项目在结构设计上展现了卓越的创新性。面对低承载力的地基、40%的坡度以及客户对高跷屋的要求,设计师巧妙地提出了四层房屋的概念,并通过四个半层的流畅整合,实现了功能与空间的完美融合。这种设计不仅解决了地形和地质问题,还创造了独特的居住体验。房屋建在靠山的线性挡土墙上,高跷深入天然土壤3米,从0层开始完全采用层压木柱和梁框架结构,既保证了稳定性,又与自然环境和谐共生。
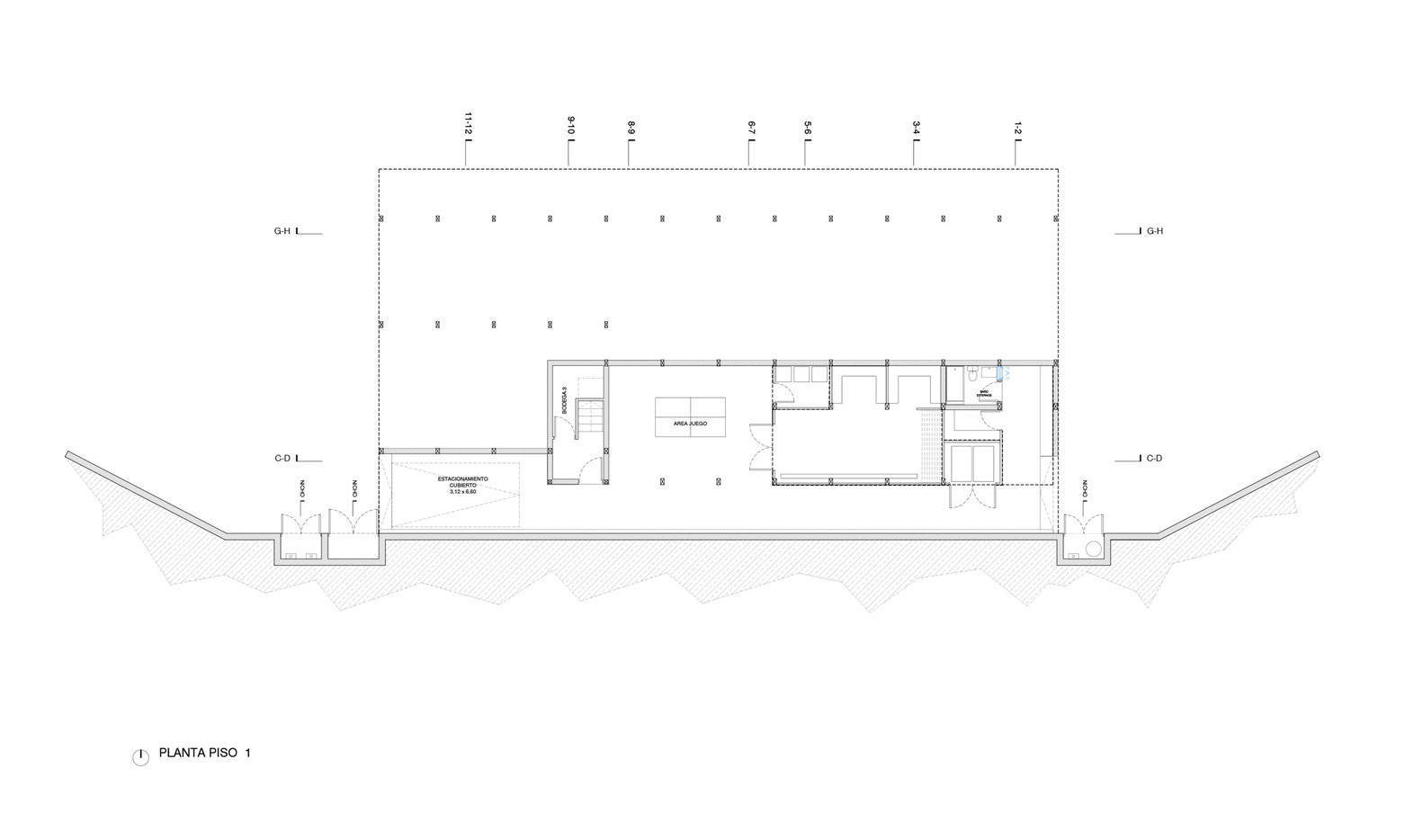
功能与空间的融合:项目在功能布局上充分考虑了家庭生活的多样性。四个半层分别对应不同的生活场景:“地球”层提供有盖的户外活动空间,如游乐区和停车场;“防火”层作为家庭聚会的核心区域,享有开阔的景观视野;“中间”层整合了入口和服务区,视觉上与集体层融为一体;“梦想”层则是家庭卧室,朝向北面的湖景。这种分层设计不仅满足了功能需求,还通过半层的错落有致,形成了连续而富有层次感的空间体验。
立面与环境的对话:在立面设计上,Namoncahue House 采用了独特的覆层处理,通过不同的材料和纹理分解建筑的体积感。一座11米高的建筑在视觉上被巧妙地“隐藏”于自然之中,仿佛与周围的雨林和湖岸融为一体。这种设计不仅减少了建筑对环境的压迫感,还增强了其与自然景观的互动性。整体而言,该项目在建筑与自然的融合、功能与美学的平衡上达到了极高的水准,是现代建筑设计的典范之作。

© Nicolás Sánchez

© Nicolás Sánchez
建筑师提供的文字描述这栋房子位于智利南部雨林中的科利科湖畔。这里经历了漫长多雨的冬天和短暂温暖的夏天。房子坐落在陡峭的湖岸,南岸,这是南半球的理想方向,因为太阳和景色重合。反过来,这片土地有40%的坡度,土壤由厚厚的植被和冲积物组成。
Text description provided by the architects. This house is located on the shores of Lake Colico, in the rainy forests of southern Chile. Here, long rainy winters and a brief, warm summer are experienced. The house is situated on a steep lake shore, the southern shore, which is the ideal orientation for the southern hemisphere, as the sun and views coincide. The land, in turn, has a 40% slope, and its soil consists of a thick layer of vegetation and alluvial fillings.

© Nicolás Sánchez

© Nicolás Sánchez
客户要求的两个主要要求是:1)设计一座高跷屋,将其与土壤湿度隔开。鉴于土壤的低容量,这是默认实现的。2) 避免雨水排水沟,避免维护,并考虑宽大的屋檐,保护窗户免受雨水侵袭。
The two main requirements requested by the client were: 1) To design a house on stilts to separate it from the soil's humidity. Given the soil's low capacity, this is achieved by default. 2) To avoid rainwater gutters to avoid maintenance and consider generous eaves that protect windows from rain.

Plan - 1st floor

Cross section 1-2
地基承载力低、土地坡度高以及对高跷房屋的要求促使我们提出了四层房屋。相反,四个半层以流畅的方式整合了房子里展开的生活。这种融合,有时是视觉的,有时是步行的,试图在家庭生活中建立一个连续体。另一方面,四个半水平也有助于区分寻求距离的情况。
The low bearing capacity for foundation, the high slope of the land, and the requirement for a house on stilts led us to propose a four-level house. Rather, four half-levels that integrate the life unfolding in the house in a fluid manner. This integration, sometimes visual, sometimes pedestrian, seeks to build a continuum in family life. On the other hand, the four half-levels also help separate situations that seek distance.

© Nicolás Sánchez

© Nicolás Sánchez

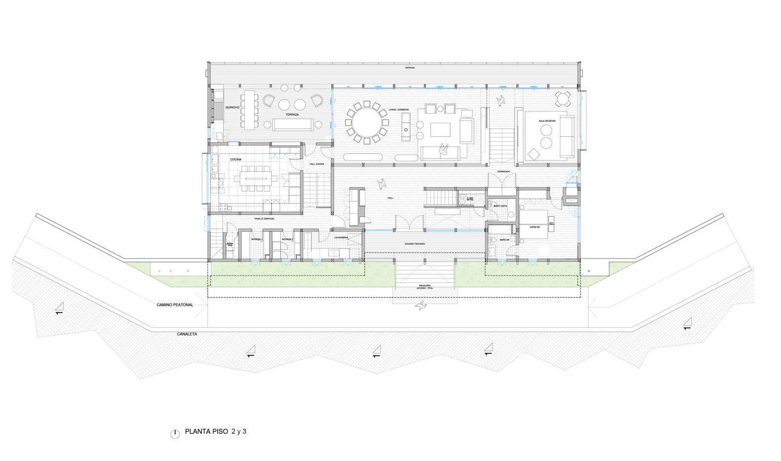
Plan - 2nd and 3rd floor
这四个层次是:“地球”层次,即天然土壤和房屋高架地板之间产生的空间。该层有足够的厚度来容纳有盖的户外活动,如游乐区、有盖停车场和储藏室。
These four levels are: The "earth" level, which is the space generated between the natural soil and the elevated floor of the house. This level was given sufficient thickness to accommodate covered outdoor activities, such as a play area, covered parking, and storage rooms.
然后,在半层以上,提出了“防火”层,即家庭聚会空间所在的地方,如客厅、餐厅、游戏室、厨房和烧烤区。这一层享有向北的美景和综合空间。
Then, half a floor above, the "fire" level is proposed, where the family gathering spaces are located, such as the living-dining room, game room, kitchen, and barbecue area. This level enjoys great views to the north and integrated spaces.

© Nicolás Sánchez
随后,在半层楼上,组织了“中间”层,集入口大厅、参观区和服务区于一体。这一层的一部分在视觉上与集体层融为一体,悬在上面,可以欣赏到湖泊的景色。
Subsequently, half a floor above, the "middle" level is organized, which integrates the access hall, visit area, and service area. Part of this level is visually integrated into the collective level, overhanging it, and gaining views of the lake.

© Nicolás Sánchez
最后,上层,即“梦想”层,对应于家庭卧室,朝北,视野开阔。
Finally, the upper level, the "dream" level, corresponds to the family bedrooms, which face north and the distant views.
从结构上讲,这座房子建在靠山的线性挡土墙上,建在天然土壤下3米深的高跷上。从0层开始,房子完全由层压木柱和梁框架构成。
Structurally, the house is founded on a linear retaining wall against the hill and on the stilts that penetrate 3 meters under the natural soil. From level 0 upwards, the house is structured entirely in laminated wood pillar and beam frames.

© Nicolás Sánchez

© Nicolás Sánchez
在立面层面,重点是通过立面覆层的不同处理来分解体积,这样一座11米高的房子看起来就不像是一座建筑。
At the façade level, the focus has been on decomposing the volume with different treatments in the façade cladding, so that an 11-meter-high house does not seem likeabuilding.
© Nicolás Sánchez