富达之家/鲁维克
Fueda House / ROOVICE
功能与美学的平衡:富达之家的改造项目展现了建筑设计师在功能与美学之间的巧妙平衡。通过对20世纪70年代木屋的重新设计,设计师不仅满足了年轻夫妇及其宠物的实用需求,还通过细节处理保留了房屋的历史特色。例如,保留部分原始墙面与现代喷涂纹理相结合,营造出一种轻松且略带“不匹配”的美感,这种设计手法既避免了过度标准化,又赋予了房屋独特的个性。
空间优化与实用性提升:在空间布局上,设计师对厨房进行了扩展,将其改造为L形布局,不仅提升了烹饪和日常活动的便利性,还选择了耐用且易于维护的硬石膏台面和PVC长板地板,这些材料的选择充分考虑了宠物家庭的清洁需求。此外,客厅的双层高采光井设计,通过狭窄窗户引入自然光,营造出明亮、开放的氛围,同时拆除部分墙壁和天花板,进一步增强了空间的连贯性和通透感。
宠物友好设计的亮点:富达之家的翻新工程充分体现了对宠物的关怀。设计师在门口设置了便于宠物移动的通道,并为猫设计了定制的猫道,提供了垂直的探索空间。这些宠物友好的设计细节不仅满足了宠物的活动需求,还巧妙地融入了整体空间,确保了房屋既能满足主人的生活方式,又能为宠物提供舒适的生活环境。这种以人为本、以宠物为友的设计理念,是该项目的一大亮点。

© Akira Nakamura

© Akira Nakamura
将镰仓富田的一座20世纪70年代的木屋改造成宠物友好之家——镰仓富达的一座70年代的两层木屋经过精心翻修,以满足一对年轻夫妇及其宠物的需求。重新设计侧重于功能性和舒适性,平衡实用性和智能设计选择。
Transforming a 1970s Wooden House in Fueda, Kamakura, into a Pet-Friendly Home - A modest two-story wooden house from the 1970s in Fueda, Kamakura, has been thoughtfully renovated to meet the needs of a young couple and their pets. The redesign focuses on functionality and comfort, balancing practicality with smart design choices.

© Akira Nakamura

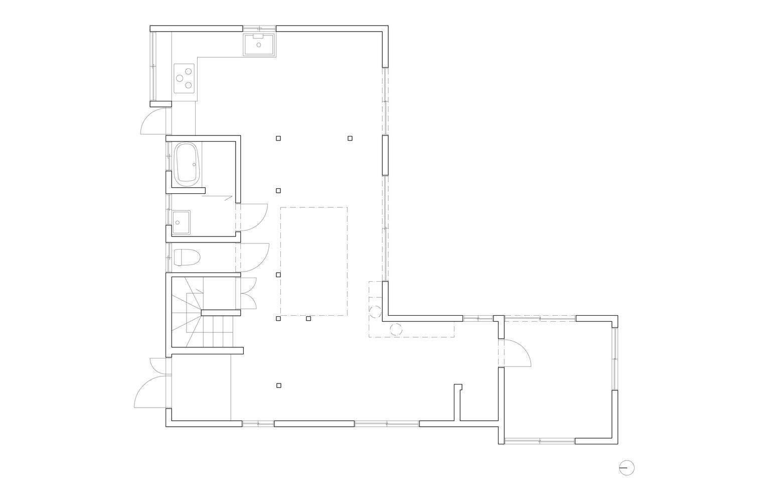
Ground Floor Plan - After

© Akira Nakamura
轻松美学的微妙更新-这栋房子包括一个宽敞的花园,墙壁采用了多种饰面。类似外墙的喷涂纹理涂层与原始状态的区域相结合,营造出一种轻松、略微“不匹配”的外观。这种低调的方法保留了房屋的特色,同时避免了过度标准化。
Subtle Updates for a Relaxed Aesthetic -The house, which includes a spacious garden, features walls with a mix of finishes. Spray-textured coatings resembling exterior walls are paired with areas left in their original state, creating a relaxed, slightly "mismatched" look. This understated approach preserves the home's character while avoiding over-standardization.

© Akira Nakamura
扩展厨房,增强实用性-之前紧凑的厨房被扩展为L形布局,为烹饪和日常活动创造了一个更具功能性的空间。选择硬石膏台面是因为其耐用性和能够随着时间的推移优雅地老化。客厅-餐厅-厨房(LDK)区域的地板更新为PVC长板地板,使清洁变得简单方便,是带宠物家庭的实用选择。
Expanding the Kitchen and Enhancing Practicality - The previously compact kitchen was expanded into an L-shaped layout, creating a more functional space for cooking and daily activities. A hard-plaster countertop was chosen for its durability and ability to age gracefully over time. The flooring in the living-dining-kitchen (LDK) area was updated with PVC long sheet flooring, making cleaning simple and convenient—a practical choice for a household with pets.

© Akira Nakamura

© Akira Nakamura
最大限度地提高光线和开放度-客厅的双层高采光井是一个突出的特点,通过狭窄的窗户将自然光带入空间,营造出明亮、开放的氛围。为了增强这一功能,一楼的墙壁被拆除,将客厅与厨房和前榻榻米室连接起来。外露的木柱保持了结构的完整性,同时增加了温暖和质感。厨房和前榻榻米房间的天花板被拆除,露出了木梁,增添了乡村的魅力和开放感。入口也融入了生活区,创造了一个无缝和温馨的流动。
Maximizing Light and Openness - The living room's double-height lightwell is a standout feature, bringing natural daylight into the space through narrow windows and creating a bright, open atmosphere. To enhance this feature, walls on the first floor were removed, connecting the living room with the kitchen and the former tatami room. Exposed wooden pillars maintain structural integrity while adding warmth and texture.Ceilings in the kitchen and former tatami room were removed to expose the wooden beams, adding rustic charm and a sense of openness. The entrance was also integrated into the living area, creating a seamless and welcoming flow.

© Akira Nakamura

© Akira Nakamura
设计时考虑到宠物-翻新工程包含了几个宠物友好的功能。门口有便于移动的通道,定制的猫道为猫提供了垂直的探索空间。这些周到的补充确保了这所房子既能满足这对夫妇的生活方式,又能满足他们宠物的需求
Designing with Pets in Mind - The renovation incorporates several pet-friendly features. Doorways include pathways for easy movement, and custom-built catwalks provide vertical spaces for cats to explore. These thoughtful additions ensure the home caters to the couple's lifestyle while accommodating their pets' needs.

© Akira Nakamura

© Akira Nakamura
简化的二楼布局-楼上,多余的隔墙被拆除,以创建更开放、更实用的布局。榻榻米和地毯被橡木地板所取代,为现代宠物生活提供了连贯的外观和增强的实用性。
Simplified Second-Floor Layout - Upstairs, redundant partitions were removed to create a more open and functional layout. The tatami mats and carpets were replaced with an oak wooden flooring, offering a cohesive look and enhanced practicality for modern living with pets.

© Akira Nakamura
一个实用而宁静的家-这次翻修将一座简单的木屋变成了一个实用、舒适的人类和动物的家。通过专注于适度的更新和周到的设计,结果是一个和平的空间,功能和魅力毫不费力地共存。
A Practical and Peaceful Home - This renovation transforms a simple wooden house into a practical, comfortable home for both humans and animals. By focusing on modest updates and thoughtful design, the result is a peaceful space where functionality and charm coexist effortlessly.
© Akira Nakamura