风筝屋/山田修治
Kite-Shaped House / Shuji Yamada
创新的平面设计:风筝屋的风筝形平面图是其一大亮点。这种独特的设计巧妙地适应了镰仓不规则地块的限制,不仅在视觉上给人以新颖之感,更在功能上实现了隐私与开放的平衡。通过墙壁的巧妙布局和设计方法,模糊了场地边界,使房屋在周围街景中形成独特的节奏,为居住者创造了一个既私密又与外界和谐共存的生活空间。
可持续的建筑方法:该项目采用了可持续的Itakura建筑方法,这一点在当今建筑领域尤为重要。这种方法允许材料的轻松搬迁和再利用,体现了对环境的尊重和对资源的合理利用。在建筑的整个生命周期中,这种可持续性不仅减少了对环境的影响,还为建筑的未来改造和更新提供了灵活性,使其能够更好地适应居住者不断变化的需求,同时也降低了长期维护成本。
巧妙的空间变换:与屋顶线对齐的三角形幕布是风筝屋设计中的精髓所在。这些幕布在空间变换上发挥了重要作用:当它们打开时,房间被巧妙地分隔开来,同时自然光得以自由流淌,营造出明亮而通透的氛围;而当它们关闭时,空间又重新连接在一起,阻挡光线,创造出更加私密和宁静的环境。这种设计不仅在功能上满足了居住者的多样化需求,还在美观和环境适应性上达到了高度统一,展现了建筑与自然和谐共生的设计理念。

© Kenta Hasegawa

© Kenta Hasegawa
反映现场条件的风筝形房屋-这座房屋建在镰仓的一块不规则地块上,具有独特的风筝形平面图。它通过使用墙壁和方法模糊场地的边界,在隐私和开放之间取得平衡,在周围的街景中创造节奏。
Kite-Shaped House Reflecting Site Conditions - Built on an irregular plot in Kamakura, this house features a distinctive kite-shaped floor plan. It strikes a balance between privacy and openness by using walls and approaches to blur the boundaries of the site, creating rhythm in the surrounding streetscape.

© Kenta Hasegawa

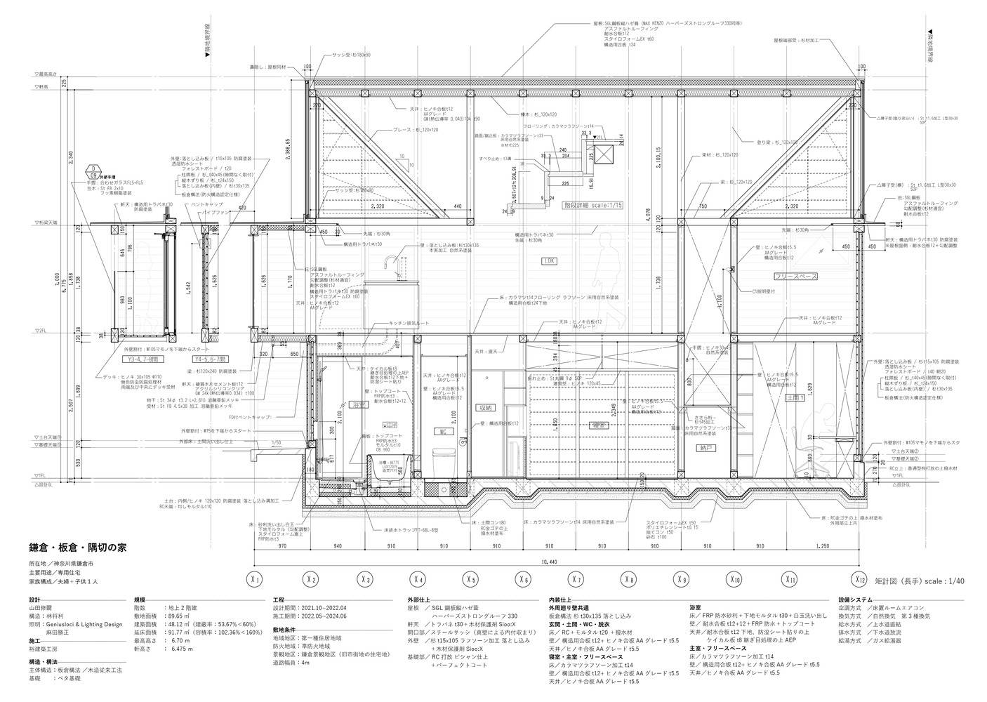
Plan

© Kenta Hasegawa
可持续的Itakura建筑方法允许材料的轻松搬迁和再利用,是设计不可或缺的一部分。
The sustainable Itakura construction method, which allows for easy relocation and reuse of materials, is integral to the design.

© Kenta Hasegawa

© Kenta Hasegawa

Drawings and Details

© Kenta Hasegawa
与屋顶线对齐的三角形幕布改变了空间:当它们打开时,它们将房间分开,同时允许自然光流入;当它们关闭时,它们将空间连接起来,阻挡光线,增强空间体验。这种设计无缝地结合了功能、美观和对环境的适应性。
Triangular shoji screens, aligned with the roofline, transform the space: when open, they divide the rooms while allowing natural light to flow in; when closed, they connect the spaces, blocking light and enhancing the spatial experience. This design seamlessly combines functionality, beauty, and adaptability to its environment.

© Kenta Hasegawa