Palmeras住宅/PRODUCTORA
Palmeras Houses / PRODUCTORA
空间布局巧妙:Palmeras项目巧妙地利用了狭窄而深的地块特点,将五栋小房子分为前后两个部分,中间留出露台,既保证了所有空间的交叉通风和自然采光,又充分利用了土地。这种设计既解决了狭窄地块的局限性,又提升了居住的舒适度,体现了对空间布局的精心考量和创新思维。
设计灵感独特:该项目从勒·柯布西耶的Curutchet House中汲取灵感,采用类似的空间分割和连接方式。通过曲折的楼梯连接前后车身,不仅实现了功能上的连贯性,还增加了空间的趣味性和动态感。楼梯作为长廊的设计,为居住者提供了从不同角度欣赏房屋的视角,丰富了居住体验。
景观融合自然:屋顶的设计是项目的点睛之笔,它不仅为房屋提供了额外的使用空间,还让居住者在家中就能首次领略到瓦哈卡美丽海滩的海洋地平线。这种将自然景观融入居住空间的设计,极大地提升了项目的吸引力和独特性,使居住者能够与周围的自然环境亲密接触,享受宁静与美好的海边生活。

© César Bejar

© César Bejar
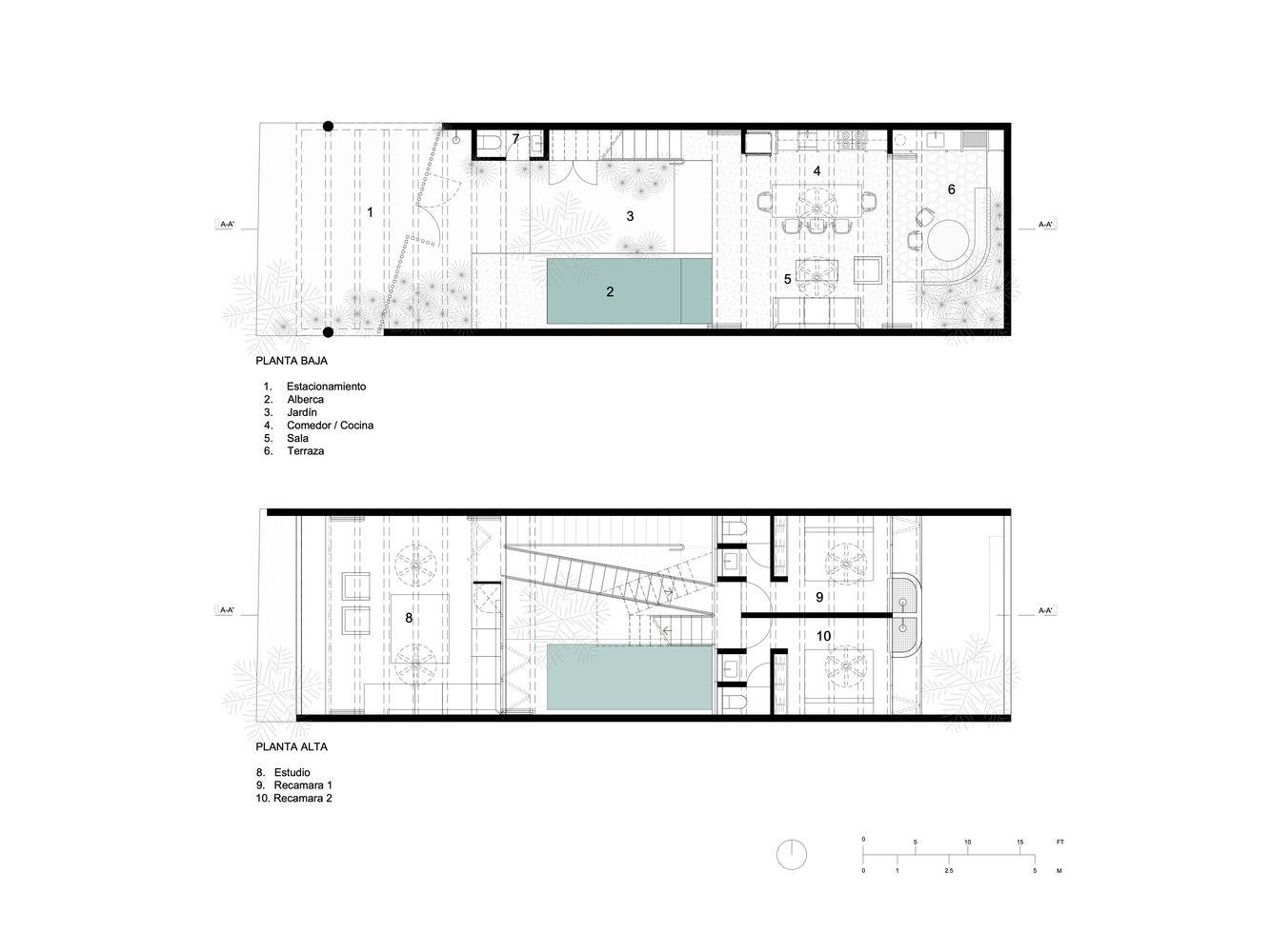
建筑师提供的文字描述Palmeras项目由五栋100平方米的小房子组成,有两间卧室、一间客厅、一间餐厅、一个小游泳池、一个屋顶和一个停车位。该综合体位于瓦哈卡海岸,距离海滩约250米。设计房屋的地块面向街道的正面宽度约为6米,内陆平均深度为21米。
Text description provided by the architects. The Palmeras project consists of five small houses of 100 m2 with 2 bedrooms, a living room, a dining room, a small pool, a rooftop and a parking space. This complex is located on the coast of Oaxaca on a lot approximately 250 meters from the beach. The lots where the houses are designed have a frontage facing the street of approximately 6 meters wide and an average depth of 21 meters inland.

© César Bejar

Plan - Type
沿海气候、维护和土地的特定比例是设计策略中的决定因素。通常在狭窄而深的地块中,房屋布置在地块的前部或后部,未充分利用大部分缺乏建筑的土地。
The coastal climate, the maintenance and the particular proportions of the land were determining factors in the design strategy. Normally in narrow and deep plots, the houses are arranged at the front or at the back of the plot, underutilizing a large part of the land that lacks construction.

© César Bejar

© César Bejar

© César Bejar
勒·柯布西耶(Le Corbusier)在Curutchet House将房屋分为两部分,一部分面向前方,另一部分位于后方,这两部分由一个坡道连接,该坡道也允许整个房屋居住。受此解决方案的启发,Palmeras项目的房屋将他们的项目分为两个部分,分别布置在每个地块的前后,在每个部分之间留出一个中间露台,在地块的后面留出一个露台,这样所有空间都能享受到交叉通风和自然采光。
Le Corbusier in the Curutchet House divides the house into two parts, one facing the front and the other at the rear, which are connected by a ramp that also allows the property to be lived in its entirety. Inspired by this solution, the houses of the Palmeras project divide their program into two volumes arranged in the front and back of each of the lots leaving an intermediate patio between each volume and a patio at the back of the lot so that all spaces enjoy cross ventilation and natural lighting.

© César Bejar

Section
每个车身的连接都是通过一个曲折的楼梯实现的,这个楼梯可以通往前后车身的不同半层,并激励人们使用整个场地并完整地生活。楼梯还可以作为长廊,从不同的角度欣赏房子。房子的最后一部分在屋顶结束,让您在项目中第一次发现瓦哈卡美丽海滩的海洋地平线。
The connection of each of these bodies is made by means of a zigzag staircase that gives access to the different half levels of the front and rear body and that motivates one to use the entire lot and live it in its entirety. The staircase also functions as a promenade giving different points of view of the house. The final part of the house ends at the rooftop that allows you to discover for the first time inside the project the maritime horizon of the beautiful beaches of Oaxaca.

© César Bejar