B09建筑岛/城市制造商+塞尔瓦和莫金建筑公司
B09 Building Island / urbanmakers + Selva & Maugin Architectes
创新的城市形态与身份塑造:该项目巧妙地将波尔多的历史韵味与现代城市设计相融合。面对波尔多标志性的18世纪“石城”,巴斯蒂德-尼尔区的非传统城市形态设计,由MVRDV根据日射性原理和狭窄的网格设计,不仅延伸了波尔多的城市生活,还通过屋顶的多样化设计,塑造了创新的结构和醒目的轮廓,为该地区赋予了独特的身份标识,使其在现代城市中脱颖而出,成为连接历史与未来的桥梁。
功能与美学的完美融合:在满足54个社会租赁单元的住宅需求的同时,项目成功地应对了预定义体积的挑战,确保了墙壁和屋顶之间的连续性,形成了一个统一的围护结构。材料的选择上,温暖的沙质色调和金色的砖立面与瓷砖屋顶的无缝过渡,不仅体现了对波尔多历史建筑的致敬,更通过触觉材料的运用,强调了家庭生活的温馨与舒适,使建筑在雕塑般的体积中不失人性化的尺度,为居民提供了一个既美观又实用的居住环境。
细节设计与可持续性:项目在细节设计上展现了对居民舒适度的高度重视。精心比例的窗户、栏杆、深凉廊和微妙的立面投影,以及可居住屋顶的巧妙设计,不仅增加了生活空间,还确保了隐私,这对于密集的城市环境至关重要。此外,底层的升高设计符合漫滩规定,增强了建筑对水风险的抵御能力,体现了项目在可持续性方面的考量。B09建筑岛以其统一的愿景,将美学连贯性与功能创新相结合,为可持续、包容的住房树立了标杆,成为传统与现代和谐融合的典范。


建筑师提供的文字描述背景-面对波尔多标志性的18世纪“石城”,巴斯蒂德-尼尔区引入了一种非传统的城市形态。该地区由城市规划师MVRDV根据日射性原理和狭窄的网格设计,将波尔多充满活力的城市生活延伸到加龙河右岸。屋顶定义了该地区的身份,创造了各种规模和倾斜平面的醒目轮廓,塑造了其创新的结构。
Text description provided by the architects. Context - Facing Bordeaux's iconic 18th-century "stone city," the Bastide-Niel district introduces an unconventional urban form. Designed with heliotropic principles and narrow grids by urban planner MVRDV, the area extends Bordeaux's vibrant urban life to the Garonne River's right bank. Roofs define the district's identity, creating a striking silhouette of varied scales and sloping planes that shape its innovative fabric.


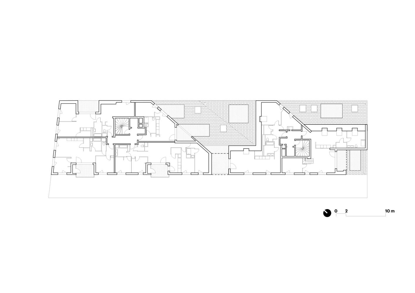
Ground Floor Plan

关键挑战-B09建筑岛位于奎里码头,毗邻“安热利克斯公园”,拥有54个社会租赁单元。挑战在于在满足住宅需求的同时,接受预定义的体积,并确保墙壁和屋顶之间的连续性,以形成一个统一的围护结构。
Key Challenges - Located on Quai des Queyries beside the "Parc aux Angéliques," the B09 building-island hosts 54 social rental units. The challenge lay in embracing a pre-defined volume while addressing residential requirements and ensuring continuity between walls and roofs to form a unified envelope.


植根于传统的矿物美学——材料色调反映了经典的矿物美学,使用了温暖的沙质色调,让人想起波尔多的历史建筑。金色的砖立面无缝过渡到瓷砖屋顶,统一了结构。尽管其雕塑般的体积,但该设计强调家庭生活,用触觉材料邀请互动。开放和使用融入了人性化的尺度,确保建筑给人一种温馨和熟悉的感觉。
A Mineral Aesthetic Rooted in Tradition - The material palette reflects a classic mineral aesthetic, using warm sandy tones that recall Bordeaux's historic architecture. Blonde brick facades transition seamlessly into tiled roofing, unifying the structure. Despite its sculptural volume, the design emphasizes domesticity, with tactile materials that invite interaction. Openings and uses integrate the human scale, ensuring the building feels welcoming and familiar.


Axonometric Section

家庭舒适与;功能性——该项目通过精心设计的细节来优先考虑居民的舒适度:精心比例的窗户、栏杆、深凉廊和微妙的立面投影。包括tropéziennes在内的可居住屋顶增加了更多的生活空间。窗户和凉廊上不透明的下部面板确保了隐私,这是密集城市环境的一个关键特征。集成式凉廊储物柜增强了日常功能。
Domestic Comfort & Functionality - The project prioritizes resident comfort through thoughtful details: carefully proportioned windows, railings, deep loggias, and subtle facade projections. Habitable rooftops, including tropéziennes, add further living space. Opaque lower panels on windows and loggias ensure privacy, a key feature for dense urban environments. Integrated loggia storage cabinets enhance daily functionality.


深思熟虑的进入顺序——该项目的核心是“门厅”,这是一条宽敞的开放式通道,将居民与他们的家连接起来。这个过渡空间连接了公共和私人领域,同时促进了行人友好的通道。为了遵守漫滩规定,底层在基座上升高,以确保抵御水风险的弹性。
A Thoughtful Entry Sequence - At the heart of the project lies the "vestibule," a generous open passage that connects residents to their homes. This transitional space bridges public and private realms while fostering pedestrian-friendly access. To comply with floodplain regulations, the ground floor is elevated on a plinth, ensuring resilience against water risks.

统一愿景-B09将美学连贯性与功能创新相结合,应对当代城市挑战。通过融合经典材料、以人为本的设计和高效的空间组织,它增强了巴斯蒂德·尼尔的身份。该项目为可持续、包容的住房树立了标杆,将传统与现代和谐融合。
A Unified Vision - B09 combines aesthetic coherence with functional innovation, tackling contemporary urban challenges. By blending classic materials, human-centered design, and efficient spatial organization, it enhances Bastide-Niel's identity. The project sets a benchmark for sustainable, inclusive housing, harmoniously merging tradition and modernity.