老路旁的房子/KOMINORU设计
House Along the Old Road / KOMINORU Design
与历史融合:该项目巧妙地将现代设计与东海道的历史底蕴相结合。外观设计延续了旧东海道的木质纹理,不仅在视觉上与周边古老城镇景观相呼应,更通过参数化设计排列的木板,以不同角度反射和淹没外界声音,既保留了历史感,又满足了现代居住对隐私和宁静的需求,体现了对历史与现代生活需求的深刻理解。
空间布局巧妙:建筑内部空间布局极具匠心。一楼设计为连通空间,使居住者能够享受随时间变化的氛围,增强了空间的动态感和灵活性。二楼室内外桥梁环绕庭院的设计,不仅营造出循环感,还加强了室内外空间的互动与融合,让居住者在不同区域都能感受到庭院的自然气息,提升了居住的舒适度和空间的趣味性。
细节设计贴心:细节之处见真章。在地板下创造的平台,为居住者提供了一个放松身心的私密空间,这种独特的设计满足了现代人对个性化空间的需求。基座延伸成桌子、螺栓升起的浮动楼梯以及屋顶结构形成的庭院等细节,不仅在功能上实用,更在视觉上增添了建筑的美感,尤其是通过屋顶缝隙能看到富士山的设计,更是将自然景观巧妙引入室内,提升了居住的品质和艺术感。

Courtesy of kominoru DESIGN

Courtesy of kominoru DESIGN
建筑师提供的文字描述这是东海道老路旁的一个住宅项目。东海道是日本江户时代连接江户(东京)与京都和大阪的最重要的五条路线之一。这条历史悠久的道路上保留着古老的城镇景观。外观延续了旧东海道的木质纹理。东海道一侧交通繁忙,但不同角度的木板并没有阻挡外界,而是用来反射和淹没外界的声音。使用参数化设计来排列面板的方向,并调整角度,使其一点一点地变化。每个面板都经过调整,以便在将整个面板放在一起时产生较大的流量。
Text description provided by the architects. This is a housing project along the old Tokaido road. Tokaido Road is one of the most important Five Routes connecting Edo (Tokyo) to Kyoto and Osaka, of the Edo period in Japan. Old townscapes remain along this historical road. The exterior continues with the old Tokaido's wood-covered texture. There is a lot of traffic on the Tokaido side, but rather than blocking the outside world, the wooden panels at different angles are intended to reflect and drown out outside sounds. The orientation of the panels was arranged using a parametric design, and the angles were adjusted so that they changed little by little. Each panel was adjusted so that a large flow would be created when the entire panel was put together.

Courtesy of kominoru DESIGN
创建了一个庭院,使生活空间围绕庭院旋转。房间的布置是为了让太阳的运动在早上照亮学习区和卫生间,在下午照亮客厅。
A courtyard was created so that the living space revolves around the courtyard. The rooms were arranged so that the movement of the sun would brighten the study area and washroom in the morning, and the living room in the afternoon.

Courtesy of kominoru DESIGN

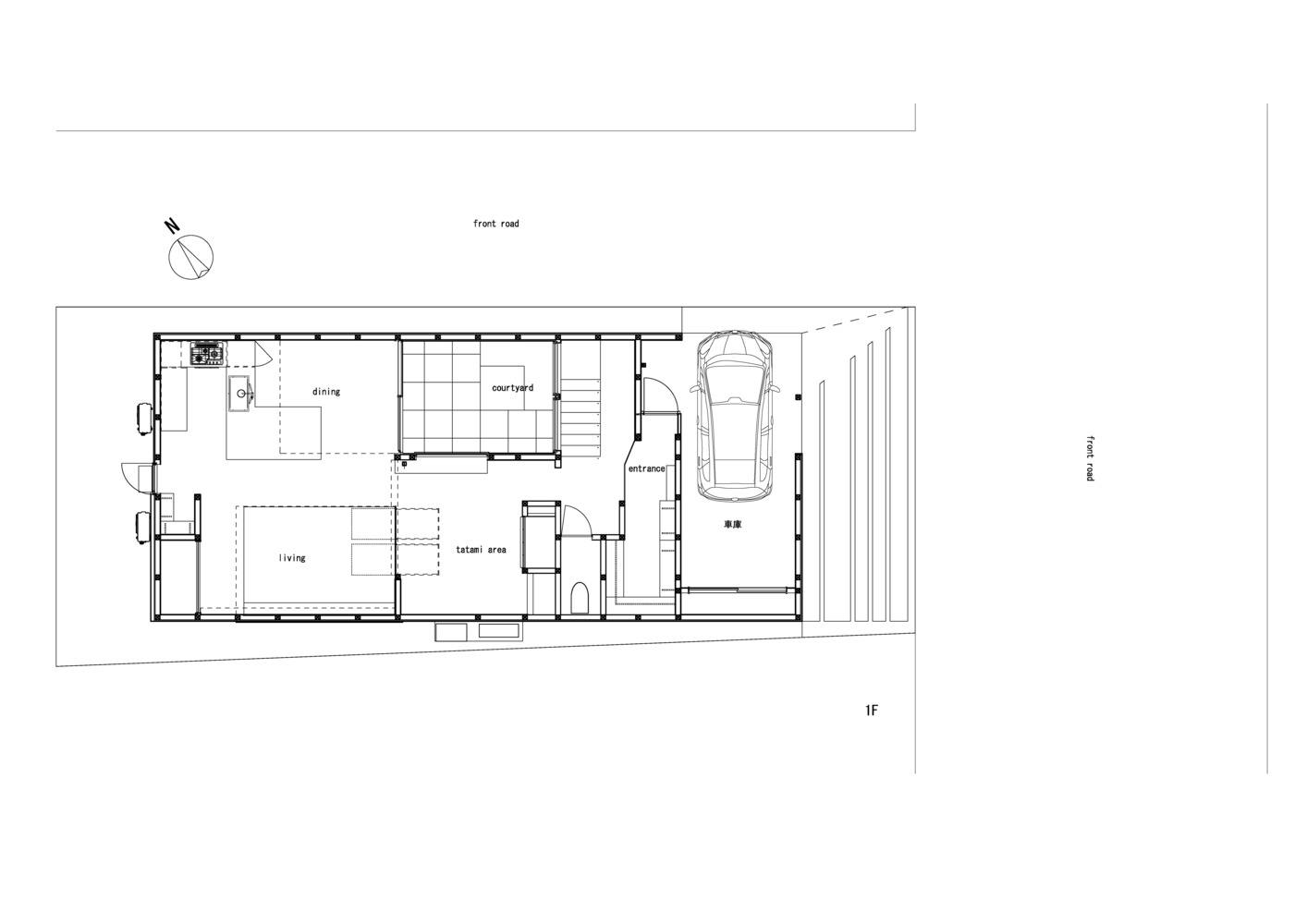
1F Floor Plan

Courtesy of kominoru DESIGN
一楼是一个连通的空间,这样你就可以享受一个氛围会根据一天中的时间而随时变化的空间。在二楼,室内外桥梁环绕着庭院,营造出一种循环感。
The first floor is a connected space so that you can enjoy a space whose atmosphere changes from moment to moment depending on the time of day. On the second floor, indoor and outdoor bridges surround the courtyard, creating a sense of circulation.

Courtesy of kominoru DESIGN

Courtesy of kominoru DESIGN
通过在地板下创造一个平台,我们创造了一个你可以把自己埋在地里放松的空间。基座延伸并形成一张桌子。楼梯用螺栓升起,在花园前形成了一个浮动楼梯。屋顶的结构形成了一个庭院,从两个交叉的屋顶之间的缝隙可以看到富士山。
By creating a level below the floor, we have created a space where you can bury yourself in the earth and relax. The base extends and forms a table. The stairs were raised with bolts to create a floating staircase in front of the garden. The roof is structured to form a courtyard, and Mt. Fuji can be seen through the gap between the two intersecting roofs.

Courtesy of kominoru DESIGN

Courtesy of kominoru DESIGN

Axonometric

Courtesy of kominoru DESIGN

Courtesy of kominoru DESIGN