Innoasis/海伦&哈德
Innoasis / Helen & Hard
历史与现代的融合:Innoasis项目巧妙地将一座历史悠久的办公楼转型为现代化的工作环境。1978年建成的Sverdrupsgate 27,作为挪威石油局的总部,其工业建筑体系由混凝土柱和DT肋元件构成,这种承重系统在新设计中得到了保留和展示,体现了对历史的尊重和现代设计的融合。
中庭空间的创新:项目的核心亮点是将旧后院转变为一个有盖的中庭,创造了一个新的空间中心。木结构的植入不仅为流通提供了新的画廊和非正式聚会场所,还在栏杆上种植了绿色植物,增强了生态价值。这种设计不仅提升了空间的功能性,也为建筑带来了生机与活力。
生态与节能的典范:Innoasis项目在扩大建筑面积约1000平方米的同时,实现了热能使用的大幅减少,与原建筑相比,减少了1/3。此外,交付能源的要求降低到原建筑的四分之一,温室气体排放减少了50%以上,达到了BREAAM-NOR温室气体减少的满分标准,展现了建筑在生态和节能方面的卓越表现。

© Sindre Ellingsen

© Sindre Ellingsen
建筑师提供的文字描述Innoasis是一座历史悠久的办公楼,现已转型为现代化的工作环境。1978年,Sverdrupsgate 27建成,作为新成立的挪威石油局的总部。该建筑规划合理,由混凝土柱和DT肋元件组成的工业建筑体系清晰易读。这种现有的承重系统在新的内部得到了保留和可见。主要的转型变化是将旧后院变成一个有盖的中庭,形成一个新的强大的空间中心。这里植入了一个木结构,为流通创造了新的画廊、非正式的聚会场所,并在栏杆上种植了绿色植物。该结构还将玻璃屋顶固定在中庭上方。它由一个由胶合木梁和圆形天然云杉树柱组成的框架组成,这些柱子支撑着弯曲的切割CLT地板元件。
Text description provided by the architects. Innoasis is an office building with a strong history transformed into a modern work environment. In 1978, Sverdrupsgate 27 was built as the headquarters of the newly established Norwegian Petroleum Directorate. The building had a rational plan and a clear and legible industrial building system made up of concrete columns and DT rib elements. This existing load-bearing system has been preserved and made visible in the new interior. The main transformational change was to turn the old backyard into a covered atrium which forms a new strong spatial center. A wooden structure has been implanted here creating new galleries for circulation, informal meeting places, and integrated green plants in the balustrades. This structure also holds the glass roof over the atrium. It consists of a framework of glulam beams and round, natural tree columns of spruce which hold the curved cut CLT floor elements.

© Sindre Ellingsen

Axonomety

© Sindre Ellingsen
两个带有尖顶的新体量完成了中庭周围阁楼的方形组织。四个屋顶体量允许光线和空气进入三楼的办公空间,增加了夹层和各种空间的可能性,以增强和创造令人兴奋的居住景观。此外,屋顶为太阳能电池板、屋顶景天、花草地和当地植物物种提供了成角度的表面,增加了场地的生态价值。中庭构成了建筑的核心,并建立了新的社会基础设施。会议室分层聚集在中庭周围,灵活的工作空间沿着立面形成外层。整个工作空间、天花板和技术系统都在网格系统中组织和准备,便于未来在蜂窝办公室和办公环境之间进行轻松的重新布置。
Two new volumes with pointed roofs complete the squared organization of the lofts around the atrium. The four roof volumes allow light and air into the office spaces on the third floor, adding the possibility for mezzanines and a variety of spaces to enhance and create an exciting landscape to inhabit. Additionally, the roofs provide angled surfaces for solar panels, rooftop sedum, flower meadows, and local plant species, adding to the ecological value of the site. The atrium forms the core and establishes the new social infrastructure of the building. Meeting rooms are gathered around the atrium in layers and flexible workspaces form an outer layer along the facades. The whole workspace, ceiling, and technical systems are organized and prepared in a grid system for easy future rearrangements that can be shifted between cellular offices and office landscapes.

© Sindre Ellingsen

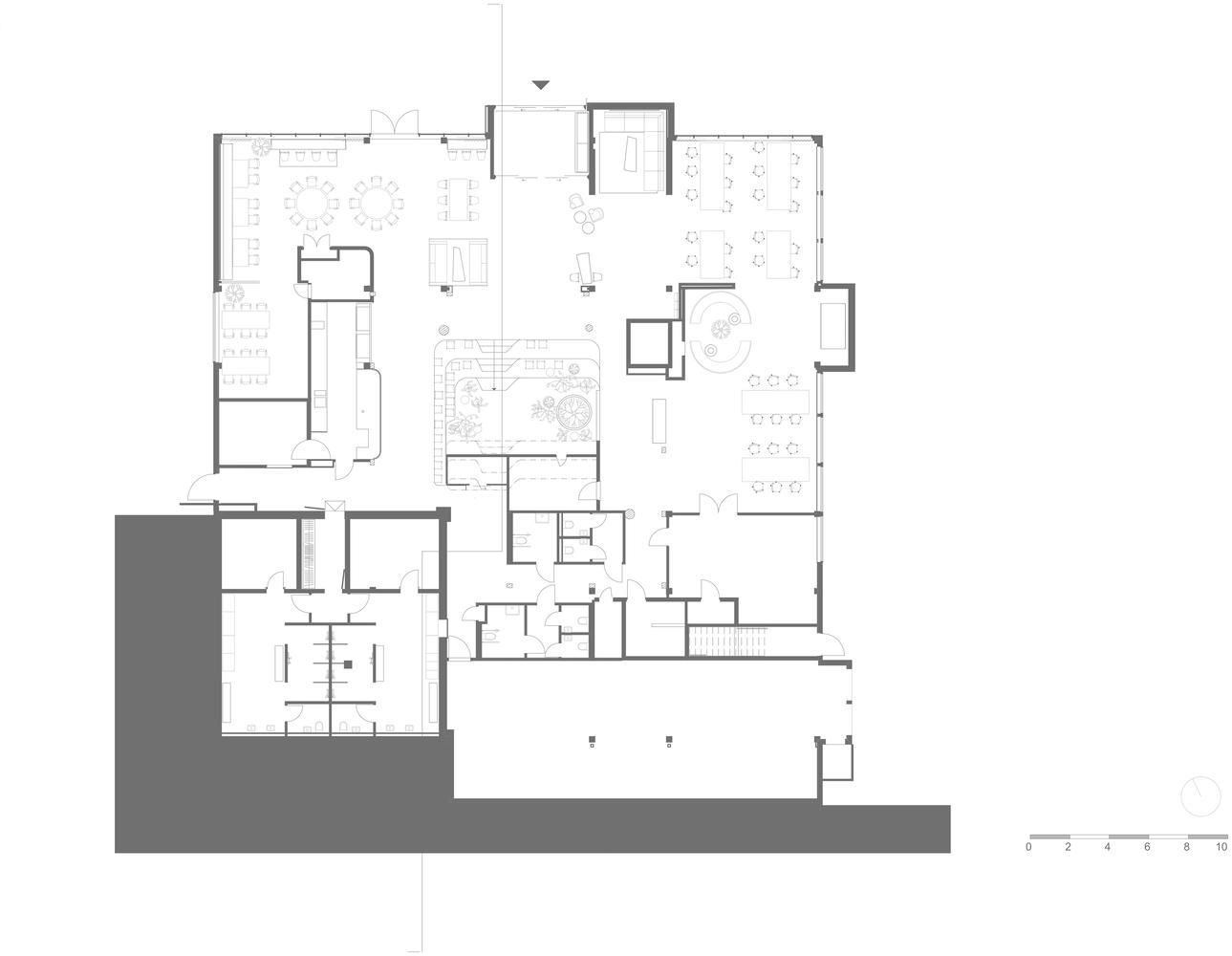
Floor Plan 1

© Sindre Ellingsen
室内的大气质量在现有混凝土结构与新木材元素之间形成了对比。中庭混凝土肋和稻草壁纸之间铺设的木条也是吸音元件的一部分,有助于获得非常好的音质。对现有的螺旋混凝土楼梯进行了翻修,并将其作为中庭的中心特征,在整个改造过程中重新使用了外墙板和家具元素。绿色植物是建筑的重要组成部分,对于营造中庭绿洲般的氛围至关重要。尽管改造后的建筑面积扩大了约1000平方米,但与原建筑相比,用于供暖和制冷的热能减少了1/3。交付能源的要求降低到原建筑的四分之一。与参考建筑相比,该项目的温室气体减少了50%以上,相当于BREAAM-NOR温室气体减少的满分。
The atmospheric quality of the interior plays on the contrast between existing concrete structure in combination with new timber elements. Wooden slats laid between the concrete ribs and straw wallpaper in the atrium are also part of sound absorption elements contributing to very good acoustic quality. An existing spiral concrete stair is renovated and placed as a central feature in the atrium and façade panels and furniture elements have been reused throughout the transformation. Green plants are an important part of the architecture and are essential in creating the oasis-like atmosphere of the atrium. Although the building is around 1000m2 larger with the transformation, the thermal energy used for heating and cooling is reduced to 1/3 compared to the original building. Requirements for delivered energy are reduced to 1/4 of the original building. The project has a greenhouse gas reduction of over 50% compared to a reference building, equivalent to a full score for greenhouse gas reduction in BREAAM-NOR.
© Sindre Ellingsen