MIR办公楼/第十二局
MIR Office Building / Bureau XII
历史与现代的融合:MIR办公楼项目巧妙地将历史元素与现代设计相结合,其亮点在于对索非亚市历史中心的建筑风格多样性的尊重与继承。通过整合考古发现的晚期古墓遗迹,项目不仅保护了城市环境的DNA,还为建筑赋予了独特的历史价值和文化深度。
灵活与功能性的结合:该项目的设计精髓在于其灵活性和功能性。建筑立面采用外露混凝土和大型铝框窗户的网格结构,提供了一个地下车库和宽敞的景观空间。办公室遵循“外壳和核心”的租赁原则,设计灵活,以适应不同租户的需求。最高楼层的玻璃亭和景观屋顶花园为租户提供了共享的会议、大会和娱乐空间,增强了建筑的社交和休闲功能。
环境与建筑的和谐:MIR办公楼在设计上注重与环境的和谐共生。通过“级联露台”的设计,建筑巧妙地打破了长立面的单调,创造了垂直绿化的额外立面,同时为街道空间引入了额外的光线。主入口的大通道和内部绿色庭院的设计,将街景自然延伸至建筑内部,形成了一个充满活力的交流空间,展现了建筑与城市环境的无缝融合。

© Assen Emilov

© Assen Emilov
建筑师提供的文字描述该项目旨在为私人投资者提供一座灵活的办公楼出租空间。该建筑地块位于索非亚市历史中心的高密度区域。该地区的建筑风格多样,主要集中在20世纪初至中叶,建筑风格多样。城市的碎片化形象被“铜绿”所统一,时间留下的痕迹赋予了环境有机而温暖的特征。同时,该地点位于古罗马城市Serdikarequires附近,对该地块进行了考古调查。在考古研究过程中,发现了一座晚期古墓的遗迹,随后将其纳入该项目。
Text description provided by the architects. The project aims to provide an office building with flexible spaces for rent for a private investor. The building plot is located in a high-density area in the historical center of the city of Sofia. The area is heterogeneous with buildings predominantly from the beginning to the middle of the 20th century and a variety of architectural styles. The fragmented image of the city is united by the "patina", the trace that time leaves and gives the organic and warm character of the environment. Meanwhile, the location, which is near the ancient Roman city of Serdikarequires an archeological investigation of the plot. In the course of the archaeological research, the remains of a late antique tomb were discovered, which were subsequently integrated into the project.

© Assen Emilov

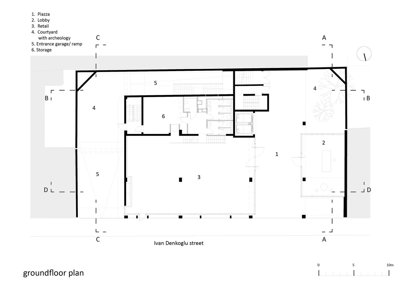
Ground Floor Plan

© Assen Emilov
在此背景下,我们的目标是为新建筑的体积和物质性做出贡献,以保护城市环境的DNA,同时寻找符合项目计划的当代方法。建筑的立面是一个由外露混凝土和铝制框架的大型窗户组成的整体网格。该计划设想了一座带地下车库和宽敞景观的办公楼。办公室的设计灵活,遵循“外壳和核心”的租赁原则。在最高楼层,计划建造一个玻璃亭,可以俯瞰周围的屋顶和一个景观屋顶花园。展馆旨在供办公室共享,作为会议、大会和娱乐场所。地下两层专门用于停车。
In this context, the aim is to contribute to the volumes and materiality of the new building to preserve the DNA of the urban environment, while at the same time looking for a contemporary approach that meets the project program. The facades of the building are a monolithic grid of exposed concrete and large-scale windows with aluminum frames. The program envisages an office building with an underground garage and generous landscaping. The offices are designed flexibly on the "shell and core" principle for renting. On the highest level, a glass pavilion with a view over the surrounding roofs and a landscaped roof garden is planned. The pavilion is intended to be shared by the offices as a place for meetings, conferences, and recreation. Two underground levels are dedicated to parking.

© Assen Emilov

Section B

© Assen Emilov

© Assen Emilov
该建筑所在的地块被相邻建筑的三道防火墙环绕,38米长的街道正面朝向北方。根据该地区的城镇规划规则和封闭式周边街区的要求,该建筑必须连接到三道防火墙。与邻近的建筑相比,街道前面的长立面显得过于夸张。在这方面,寻求一种解决方案,在不损害项目计划的情况下“打破”长期战线,但相反,为功能、架构和环境创造额外价值。立面被朝向西部防火墙的“级联露台”打断,这反过来又成为一个用于垂直景观美化的额外立面。
The plot on which the building is located is bordered by three firewalls of neighboring buildings and the front to the street with a length of 38m has a northern orientation. According to the town planning rules for that area and the requirements for a closed perimeter block, the building must be attached to the three firewalls. The long facade in front of the street would appear overscale compared to the neighboring buildings. In this regard, a solution was sought that would "break" the long front without harming the project program, but on the contrary, to create additional value for the functions, architecture, and environment. The facade is interrupted by "cascading terraces" towards the western firewall, which in turn becomes an additional facade intended for vertical landscaping.

© Assen Emilov
露台作为一种桥梁将主体量与防火墙连接起来,彼此错开布置,这使得立面的中断被视为一种“开口”,额外的光线通过它从南面渗透到街道空间。建筑的主要入口是一条大通道——一个公共/私人广场,它是街景到建筑的自然延伸,通向一个内部的绿色庭院。花园被建造成一个挂在车库上方的大型植物盆,上面有树木,还有一座在考古调查中发现的晚期古罗马陵墓。广场也是一个交流空间,与楼层的电梯、大厅和一楼的零售画廊直接相连。
The terraces, which connect the main volume with the firewall as a kind of bridge, are arranged offset from each other, which allows the interruption of the facade to be perceived as a kind of "opening", through which additional light penetrates from the south to the street space. The main approach to the building is over a large passage – a public/private piazza, which is a natural extension of the streetscape to the building and leads to an inner green courtyard. The garden is constructed as a large plant pot hanging over the garage with trees and there is exposed a late antique Roman tomb discovered during the archeological investigations. The piazza is also a communication space with direct links to the elevators for the floors, the lobby, and a retail gallery on the ground floor.
© Assen Emilov