在Alenya/OMA Octavio Mestre建筑事务所共同工作
Coworking in Alenya / OMA Octavio Mestre Arquitectos
创新与历史融合:该项目巧妙地将19世纪的老酒厂转变为现代共享办公区,体现了对历史的尊重和创新精神的结合。在巨大的木梁下,设计师提出了一个灵活的模块化空间,以满足当地年轻公司和初创企业的需求,这种设计不仅保留了建筑的历史韵味,还赋予了它新的生命力和功能。
光线与空间优化:通过对后立面和屋顶的改造,设计师引入了带太阳能控制的天窗,极大地改善了原本阴暗的内部空间。这种干预不仅提升了空间的采光效果,还通过装饰性的钢箱和天窗的设计,增强了建筑的现代感和艺术性,为工作和社区活动创造了一个明亮而充满活力的环境。
灵活性与社区互动:项目中的模块化设计允许用户根据需要自由组合和轮换空间,这种灵活性是现代办公空间设计的一大亮点。顶部的小支架为演示和社区活动提供了场所,增强了社区的互动和凝聚力。同时,新旧材料的对比和墙壁石头的可见性,进一步强调了建筑的历史与现代设计的和谐共存。

© Adrià Goula

© Adrià Goula
建筑师提供的文字描述在Les Caves Ecoiffier,位于佩皮尼昂(法国)附近的阿尔尼亚镇的一些19世纪的老酒厂,在从一个立面延伸到另一个立面的巨大木梁下,我们建议为该镇建造一个共享办公区,根据该地区年轻的当地公司和初创企业的需求,可以随意租用其模块,即南鲁西永公社(CCSR)。
Text description provided by the architects. In Les Caves Ecoiffier, some old wineries from the 1800s in Alénya, a town near Perpignan (France) and under enormous wooden beams that go from façade to façade, we propose a coworking for the town, whose modules can be rented at will, according to the needs of young local companies and start-ups in the region, the Communauté des Communes Sud Roussillon (CCSR).

© Adrià Goula

© Adrià Goula
这种干预使我们在后立面(装饰钢箱,可以像我们在巴塞罗那的Olive Guma诊所或我们在Tamariu的房子里一样居住)和屋顶上开孔,通过带太阳能控制的天窗照亮中央空间(当我们第一次参观时,内部空间非常阴暗)。
The intervention leads us to open holes in the rear façade (corten steel boxes that can be inhabited as we already did in the Olivé Gumà Clinic in Barcelona or in our house in Tamariu) and in the roof, through skylights with solar control that illuminate the central space (when we visited it for the first time, the interior space was very gloomy).

© Adrià Goula

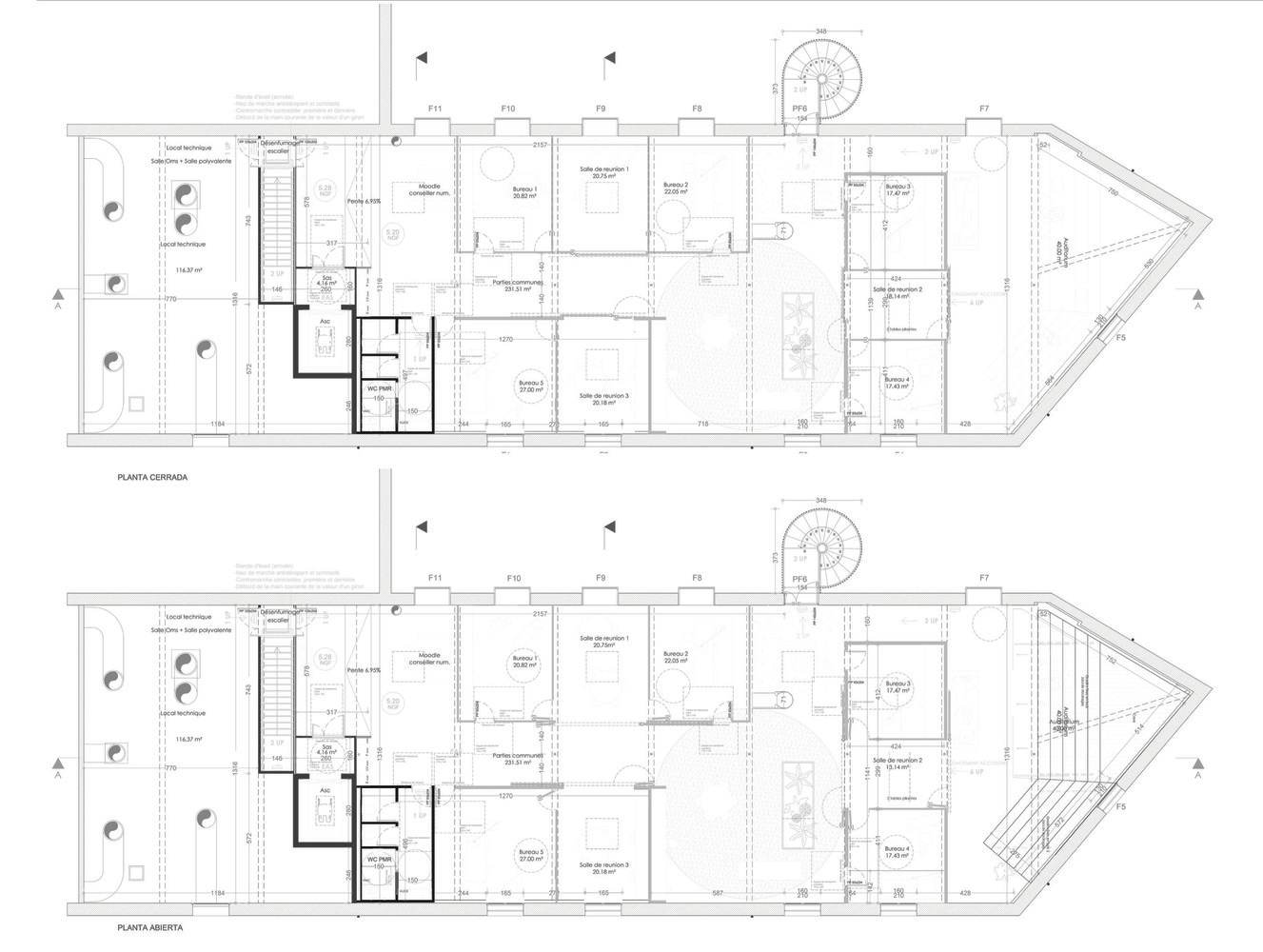
Plans
我们建立了一系列模块,其中许多是移动的,以支持通过滑动门访问的不同实现和模块,滑动门可以随意与其他模块连接。在外壳的顶部,有一个用于演示和社区活动的小支架。该项目致力于实现最大的灵活性,允许用户轮换。
We established a series of modules, many of them mobile to favor different implementations and modules accessible through sliding doors that can be joined at will with others. At the end of the enclosure, at the top, there is a small stand for presentations and community events. The project is committed to maximum flexibility that allows user rotation.

© Adrià Goula

© Adrià Goula
对第二条疏散路线的监管需求促使我们设计了后立面上的紧急楼梯,与新窗户对话,并以雕塑的形式呈现。在梁的上方和水平上,我们从娱乐部分提出了休息区:一系列网络,让最年轻的人生活在云中,对这个地方有另一种空间感知,但最终,由于监管效果的复杂性,这些空间感知没有得到实现。
The regulatory need for a second evacuation route invited us to design the emergency staircase on the rear façade that dialogues with the new windows and is presented in a sculptural form. Above -and at the level of the beams-we proposed the rest areas from a recreational component: a series of networks that allowed the youngest to live in the clouds and have another spatial perception of the place that, finally, by the Complications that entailed regulatory effects were not implemented.

© Adrià Goula
地板暴露在混凝土中。人们自愿在新的木制模块和旧的屋顶梁之间进行对比(试图尽量减少高度问题),同时让墙壁的石头可见。过去三年在法国赢得的三次公开招标之一,C+D是当地合作伙伴。
The floor is exposed to concrete. Contrast is voluntarily sought between the new wooden modules and the old roof beams (trying to minimize height problems) while leaving the stone of the walls visible. One of the three public tenders won in France in the last three years, with C+D as a local partner.
© Adrià Goula