伊本祖尔大学阿尤恩医学院/SAMA ARCHITECTS
Faculty of Medicine of Laayoune, Ibn Zohr University / SAMA ARCHITECTES
该项目展现出对传统与现代的完美融合。使用当地材料如石灰华大理石蜗壳和穿孔面板,既向传统建筑致敬,又增添了当代风格。建筑与环境进行微妙对话,不同实体易于识别,整体和谐。其轮廓在空间中形成强烈象征意义的结构,增强城市景观。内部享受自然光和光影效果,夜晚则从外部呈现戏剧性。色彩的运用也增强了整体氛围,随太阳和季节变化。
从设计角度看,该项目注重简洁、体量的精致和几何形状。通过精心处理立面和采用合适的建筑语言,实现了丰富性与多样性。赭色墙壁与蓝天、绿色花园形成对比,石灰华大理石墙壁的纹理和色调赋予项目独特魅力。整体设计既考虑了功能性,又兼顾了美学价值,为使用者提供了宜人的空间体验。
这个项目是建筑设计的典范。它不仅是一座标志性建筑,还唤起了当地传统,建立了强烈的身份认同。在传统与现代之间找到平衡,为城市增添了独特的景观。无论是材料选择、空间布局还是色彩运用,都体现了设计师的高超技艺和对细节的关注。它为未来的建筑项目提供了宝贵的借鉴。

© Samir Khaldoun

© Samir Khaldoun
建筑师提供的文字描述我们的目标是创造一座充满真实感的标志性建筑,一座唤起我们传统的建筑。突出当地背景,建立强烈的身份认同,同时添加明显的当代风格,反映我们的时代。为了向传统建筑致敬,我们使用了当地材料,如石灰华大理石蜗壳,其顶部有受摩洛哥遗产启发的几何图案,以及让人联想到“moucharabiehs”的穿孔面板。这些面板的传统图案装饰着项目的外立面,使其具有受摩洛哥南部启发的身份。
Text description provided by the architects. Our ambition is to create an iconic building imbued with authenticity, an architecture that evokes our heritage. The local context is highlighted to establish a strong identity while adding a distinctly contemporary touch, reflective of our time.As a nod to traditional architecture, we have used local materials such as Travertine marble-volubilis, crowned with geometric patterns inspired by Moroccan heritage, as well as perforated panels reminiscent of "moucharabiehs." The traditional motifs of these panels adorn the façades of the project, giving it an identity inspired by southern Morocco.

© Samir Khaldoun
该项目与其环境进行了微妙的对话,反映在它的规模、比例、节奏和建筑上,既强大又有节制,既清醒又丰富。学院的不同实体以建筑表达为特征,使其易于识别,确保了建筑的丰富性和空间体验的多样性。然而,该项目的整体和谐是通过精心处理立面和采用的建筑语言来实现的,注重简洁、体量的精致和体量的几何形状。
The project engages in a subtle dialogue with its environment, reflected in its scale, proportions, rhythms, and architecture, which is both powerful and measured, sober yet rich. The different entities of the faculty are characterized by architectural expressions that make them easily identifiable, ensuring both the richness of the architecture and the diversity of spatial experiences. However, the overall harmony of the project is achieved through the careful treatment of the façades and the architectural language adopted, focused on simplicity, the refinement of mass, and the geometry of the volumes.

© Samir Khaldoun

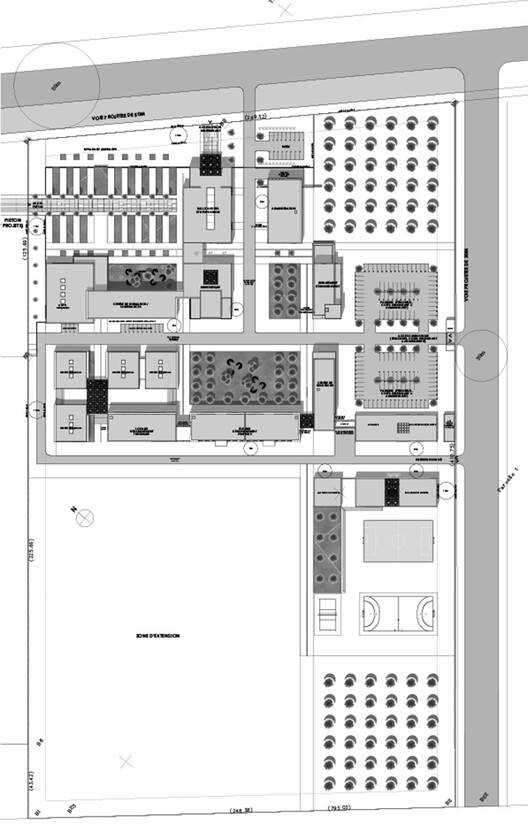
Plan
© Samir Khaldoun
© Samir Khaldoun
建筑的轮廓投射到空间中,形成了一个具有强烈象征意义的结构,一个增强城市景观的印记。从内部来看,用户全天都可以享受宜人的氛围、柔和的自然光以及立面上壮观的光影效果。随着夜幕降临,这种感知发生了逆转,从外部感受到了戏剧性的效果:立面通过穿过图案的光束不断移动,从被照亮的空间发出,与教师内部发生的活动保持节奏。
The silhouette of the building projects itself into the space, forming a structure strong in its symbolism, an imprint that enhances the urban landscape. From within, users enjoy pleasant atmospheres, soft natural light, and a spectacular play of light and shadow on the façades throughout the day.As night falls, this perception is reversed, and the dramatic effect is felt from the outside: the façade shifts continuously through beams of light escaping through the patterns, emanating from the illuminated spaces, in rhythm with the activities taking place inside the faculty.
© Samir Khaldoun
Elevations
项目的整体氛围因色彩而增强,随着太阳和季节的变化而改变空间。这是由于墙壁的赭色色调造成的,与阿尤恩的蓝天和坐落在建筑体量阴影下的花园/绿洲的绿色形成鲜明对比。石灰华大理石墙壁以其丰富的纹理和不同色调的各种起伏线条赋予了该项目独特的魅力,这是这种天然石材的典型特征。
The overall atmosphere of the project is enhanced by color, transforming the space with the changing sun and seasons. This is brought about by the ochre hue of the walls, which contrasts with the blue sky of Laayoune and the greenery of the garden/oasis nestled in the shadow of the building's mass. The Travertine marble walls give the project a unique charm with their rich textures and varied, undulating lines in different shades, typical of this natural stone.
© Samir Khaldoun