威尔第办公室/Erginoglu&Çalışlar
Verdi Office / Erginoglu & Çalışlar
创新在限制中突围:该项目虽受限于各种地籍开发计划的限制和形式强制,但设计师仍努力尝试创建当代工作空间,以材料和细节作为建筑元素,展现出了在困境中求创新的精神。在诸多限制条件下,设计师没有被束缚住手脚,而是巧妙地利用现有条件,打造出独特的建筑风格,为工作空间赋予了新的活力和魅力。
平衡传统与现代建筑法决定了建筑的诸多方面,使得体量难以有太大的变化。然而,设计师在传统的框架内,融入了现代的设计理念,实现了传统与现代的平衡。这种平衡不仅体现在建筑的外观上,更体现在其内部空间的设计中,为使用者提供了一个既符合法规要求,又具有现代感的工作环境。

© Cemal Emden

© Cemal Emden
建筑师提供的文字描述FV Office项目位于塞拉米切姆的Kadıköy。拆除Bağdat街现有建筑的需要是该项目存在的原因。新建筑设计为9层,3.505平方米。
Text description provided by the architects. The FV Office project is situated in Kadıköy, Selamiçeşme. The need to demolish an existing building on Bağdat Street is why this project exists.The new building is designed with 9 stories and 3.505m².

© Cemal Emden

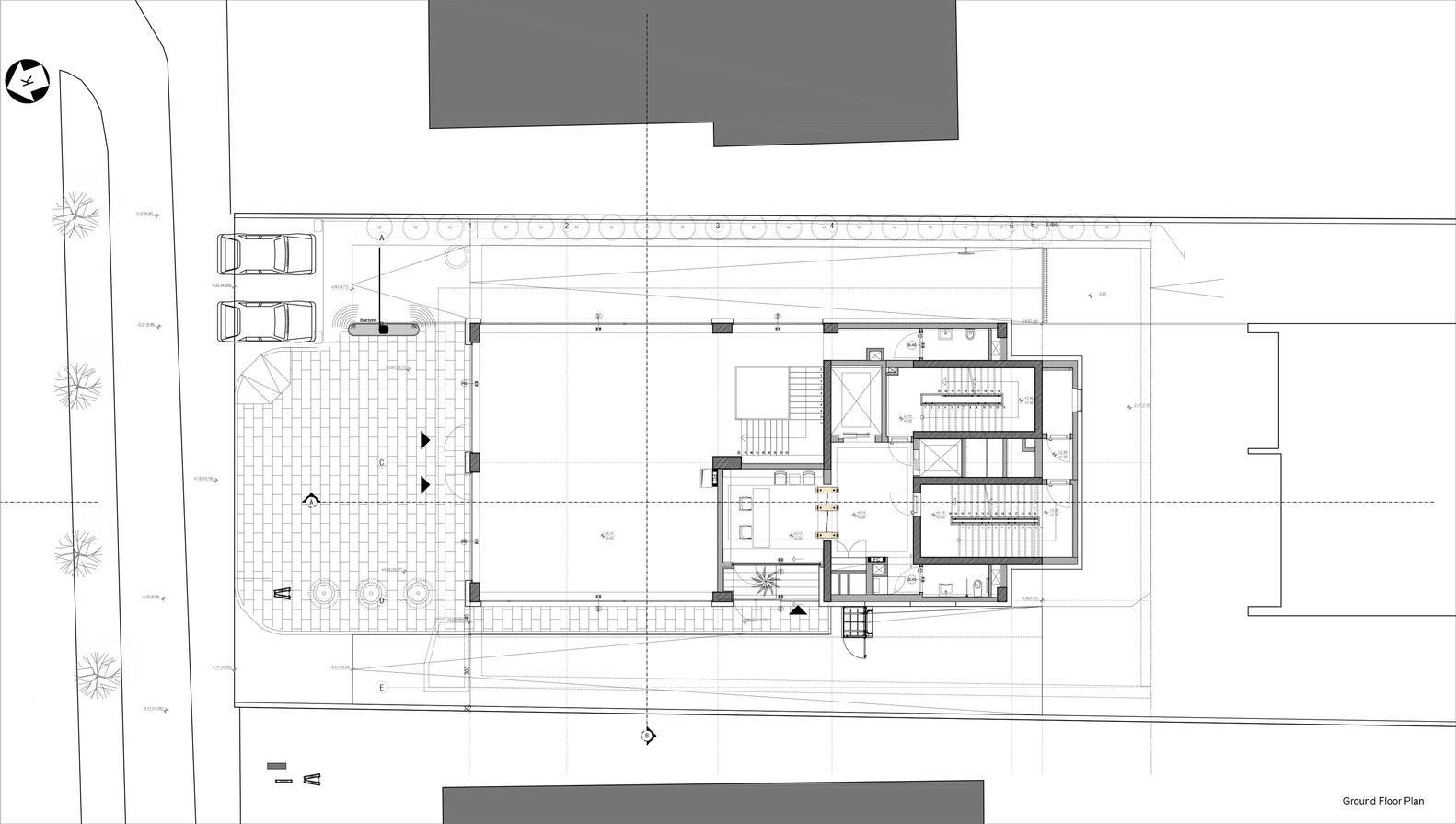
Ground Floor Plan

© Cemal Emden
在Selamiçeşme的一个地区,地籍开发计划坚持各种限制和形式强制,该项目试图创建一个专注于使用材料和细节作为建筑元素的当代工作空间。
In an area in Selamiçeşme, where cadastral development plans insist on all sorts of restriction and form compulsion, this project is an attempt to create a contemporary workspace focused on using material and detail as architectural elements.

© Cemal Emden

Section

© Cemal Emden
由于建筑法决定了建筑的宽度、高度、屋顶坡度、屋檐尺寸和悬挑线,因此不可能在体量中产生太大的运动。
Since construction laws determine the width, height, roof slope, eaves dimensions, and cantilever lines of the building, it was not possible to create much movement in the mass.

© Cemal Emden