Vyshyto House/Makhno工作室
Vyshyto House / Makhno Studio
独特的乌克兰风格之家:这座 Vyshyto House 完美地将乌克兰的真实性与当代设计建筑相融合。从入口大厅的珊瑚礁桌到客厅的乌克兰艺术品,再到各个房间的独特装饰,无不体现出对乌克兰民族遗产的珍视。标志性的 Khmara 灯营造出天空般的氛围,独特的建筑结构和大胆的设计为房间增添了自由感。整体设计在国家自我完善与现代视觉解决方案之间取得了平衡,创造出一个充满民族特色与艺术感的家。
功能与艺术的完美结合:房子不仅在设计上独具特色,还充分考虑了功能性。儿子的卧室、婴儿房、儿童客厅、图书馆、工作区等各个功能空间划分明确。同时,通过自然光线的利用、独特的灯具和瓷砖装饰,为每个空间营造出不同的氛围。无论是舒适的休息区还是充满创意的工作区,都展现出设计的精心与细腻,为居住者提供了一个既实用又美观的生活环境。

© Yevhenii Avramenko

© Yevhenii Avramenko
建筑师提供的文字描述乌克兰的真实性与当代设计和建筑融为一体——我们的客户经常提出要求。我们认为,尊重过去是有意识的未来的保证。MAKHNO工作室分享了这一理念,所以在Vyshyto的房子里,我们试图再次揭示乌克兰的种族。在国家自我完善和现代视觉解决方案之间保持平衡。创造我们自己独特的装饰品。在这座房子里,MAKHNO工作室当代乌克兰风格的意义、过去和现在交织在一起,而非常重要的是——客户的能量,就像中央案例上的装饰一样,在整个房子里重复出现,悬挂的标志性Khmara灯营造出天空般的氛围。Vyshyto是一个乌克兰大家庭的家,有一个父亲、母亲和四个孩子。这个家庭珍视民族遗产,所以他们希望看到它牢固地融入他们未来家园的DNA中。当第一次熟悉这所房子时,这一点就很明显了。
Text description provided by the architects. The Ukrainian authenticity encoded with the contemporary design and architecture — frequent requests from our clients. We believe that respect for the past is the guarantee of a conscious future. The MAKHNO Studio shares this philosophy, so in the Vyshyto house we tried to reveal the Ukrainian ethnicity once again. Maintain a balance between national self-perfection and modern visual solutions. Create our own unique ornament. In this house intertwined the significance of MAKHNO Studio's contemporary Ukrainian style, the past and the present, and what is very important – the energy of clients, like the ornament on the central case, that repeats throughout the whole house, and the hanging iconic Khmara lamps create the illusion of a sky-like atmosphere. Vyshyto is a home for a large Ukrainian family with a father, mother and four children. The family cherishes the national heritage, so they wanted to see it firmly woven into the DNA of their future home. This becomes clear when first acquainted with the house.

© Yevhenii Avramenko

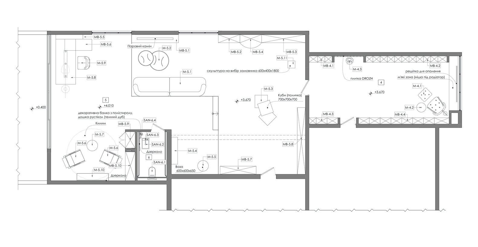
Plan

© Yevhenii Avramenko
真正的颜色会吸引客人的眼球,讲述他们的小故事。我们通过装饰和我们的Dido来强调这一点,Dido保护家免受不良能量的影响。入口大厅装饰着MAKHNO Studio的珊瑚礁桌。受珊瑚礁形状的启发,它可以让你舒适地探索表面,例如留下客人的物品。客厅的墙壁装饰着正宗的乌克兰艺术品。这个大房间里摆满了国家文物、古老的浮华、didukhs和有趣的展品。入口和客厅的色调再现了民族服装的颜色:白色和红色。木制色调为空间增添了自然精神,这是乌克兰文化的重要组成部分。我们Khmara灯具的独特组合可以防止事故发生,营造出温馨的家庭氛围。
Authentic colors meet the eyes of guests and tell their little stories. We emphasized this with the ornament and our Dido, who protects the home from bad energies. The entrance hall is decorated with a Coral reef table by MAKHNO Studio. Inspired by the shape of the coral reef, it allows you to comfortably probe the surface, leaving there, for example, guests' belongings. The walls of the living room are decorated with authentic Ukrainian artworks. The large room is full of national artifacts, ancient glitz, didukhs and interesting exhibits. The color palette of the entrance room and living room reproduces the colors of national clothes: White and red. Wooden shades add to the space the spirit of nature, an important component of Ukrainian culture. The unique composition of our lamps Khmara prevents incidents and creates a cosy atmosphere of a family circle.

© Yevhenii Avramenko
同一层楼是其中一个儿子的卧室,他被收集的石头抓住了。我们努力营造一种完全符合他的利益的氛围。Makivka迷人的灯将无底洞的光线溶解,强烈地打破了房间线的水平。得益于我们屡获殊荣的3D Tetrapod瓷砖,墙壁在视觉上移动自如。床边挂着我们的灯Lakuna。它给卧室带来了一种愉快的禁欲主义,这种禁欲主义在早上是可靠的。在另一个儿子房间的入口区域,我们还使用了绿松石色调的3D瓷砖Tetrapod。走下楼梯,你会遇到巨人Dido Isho。他是男孩最好的朋友和可靠的守卫。天花板上挂着美丽的Kvitka——我们工作室正在种植的一盏灯。Kvitka以其温暖的光线,让春天的舒适充满了一整年
On the same floor is the bedroom of one of the sons, who is seized by the collection of stones. We tried to reach an atmosphere that would fully meet his interests. Makivka's charming lamp dissolves the light from its bottomless holes and strongly breaks the level of the room line. The walls are visually moving thanks to our award-winning 3D Tetrapod tile. Near the bed is hanging our lamp Lakuna. It gives the bedroom a pleasant asceticism, which is reliably hidden in the morning. In the entrance area of the room of another son, we also used the 3D tile Tetrapod in a turquoise shade. Going down the stairs, you will be met with the giant Dido Isho. He is the boy's best friend and reliable guard. At the ceiling the beautiful Kvitka – a lamp that we are growing in our studio. With its warm light, Kvitka saturates the spring comfort for a whole year

© Yevhenii Avramenko

© Yevhenii Avramenko
床旁边的墙上装饰着火影忍者最喜欢的英雄,《Crust》系列中的灯,也来自我们的工作室。这座独特的国家装饰用通往二楼的步枪楼梯温柔地围起来。另一间婴儿房坚持纯白色。墙壁用我们的瓷砖装饰。其3D漆器纹理增加了体积,加深了房间。在床的区域,我们安装了工作室的Sopilka灯。它们以柔和和谐的温暖光线装饰着房间。隔壁墙上挂着一块大木头的房间是一个宽敞的儿童客厅。房子另一边的过境区可能不会被注意到。但我们决定不隐藏楼梯,相反,要创造一些明亮的东西。这就是为什么设计管成为一种富有表现力的照明来源。这些步骤通向一个大气图书馆。这是直线和木材颜色,即使在橱柜的轨道上也能看到。我们工作室开发的Drozh瓷砖增添了一种特殊的氛围。如果你找到了正确的书——一把靠近大窗户的舒适椅子会成为你几个小时的真正朋友。
The wall next to the bed is decorated with Naruto's favorite heroes, The lamps from the series Crust, which also came out of our studio. The unique national ornament is tenderly fenced with rifle stairs leading to the second floor. The other baby room keeps its commitment to pure white color. The walls are decorated with our tile FlapJack. Its 3D-lacquer texture adds a large volume, deepening the room. In the area of the bed, we have installed the lamps Sopilka from our studio. They charm the room with a gentle harmony of warm light. The next room with a large wood on the wall is a spacious children's living room. The transit zone on the other side of the house could remain unnoticed. But we decided not to hide the stairs, but, on the contrary, to create something bright. That is why the design tube became an expressive source of lighting. These steps lead to an atmospheric library. Here are the straight lines and wood colors, which are seen even in the rails of the cabinet. A special mood is added by the tile Drozh, developed by our studio. If you find the correct book – a comfortable chair near a large window will become a true friend for many hours.

© Yevhenii Avramenko
然后,这个巨大的房间被扩建,分为几个功能空间。入口处有一个架子和一个衣柜,用来存放主人的收藏品。靠近中央壁炉的舒适沙发是一个休息区,上面挂着定制的灰色粘土Khmara灯。在中心有一个独特的建筑结构,由石灰泥制成。仿佛护卫舰的风把一块石头布挂在房间周围,温暖着壁炉火焰舞动的舒适感。“这个设计看起来很精致,但实施过程极其困难。这个前提可以在没有“风”的情况下保持其功能,但所做的努力在视觉上完全合理,为房间增添了必要的自由感。”
Then the huge room was expanded, and divided into several functional spaces. At the entrance, there is a shelf and a wardrobe for collection items of the master. A comfortable sofa near the central fireplace serves as a zone of rest over which is hanging the customized clay Khmara lamp in a grey color. In the center is located a unique architectural structure made of stone plaster. As if the frigate's wind is hanging a stone cloth around the room and warming the comfort of the fireplace's flame dances. "It may seem that the design is refined in the air, but the process of implementation was extremely difficult. The premise could preserve its function without "a wind", but the efforts made fully justified itself visually, giving the room the necessary accents of freedom."

© Yevhenii Avramenko
露台窗户旁边是一个工作区,因为窗户的自然光创造了完美的日照,使工作过程变得最愉快,因为窗户照射到花园的自然光增加了清晰的想法。当一家人不在家时,桌旁的迪多小心翼翼地保住了他们的生意。在木制架子中间,有一根黑色的柱子。有趣的浮雕纹理和哑光只强调了建筑解决方案的大胆残忍。此外,这也是一个舒适的房间,有一个桩垫片。在老板回家之前,迪多会小心翼翼地保持生意。来自窗户的自然光照射到花园里,增加了清晰的想法。在木制架子中间,有一根黑色的柱子。有趣的浮雕纹理和哑光只强调了建筑解决方案的大胆残忍。
Next to the window to the terrace is a workspace, as the natural light from the window creates the perfect insolation and makes the working process the most enjoyable as the natural light from the window, which comes to the garden, adds to the thoughts of clarity. While the family is out of home, Dido from the table is careful to keep their business. In the middle of the wooden shelves, there was a black column. An interesting relief texture and matte only emphasize the bold brutality of the architectural solution. In addition, it is also a comfortable room with a pile-spacer. Until the owners are at home, Dido from the table is careful to keep their business. The natural light from the window, which comes to the garden, adds to the thoughts of clarity. In the middle of the wooden shelves, there was a black column. An interesting relief texture and matte only emphasize the bold brutality of the architectural solution.

© Yevhenii Avramenko