科贝尔之家/尼克·贝尔建筑师事务所
Corbel House / Nick Bell Architects
创新与传统的完美融合:科贝尔之家是一个令人瞩目的建筑项目。设计师从中世纪的牛腿建筑元素中汲取灵感,成功地将古老原则与当代设计相结合。75 平方米的三层住宅扩展出 245 平方米的宽敞生活空间,在狭窄且具有挑战的滨水区实现了最小占地面积与空间效率的最大化。从坚固的混凝土基础到轻盈的上层,反映了从地球到天空的上升,混合材料的运用体现了对持久质量的承诺。同时,定制元素和特色设计既美观又实用。
可持续发展的典范:该住宅还配备了全面电气化系统,包括太阳能电池板、微型逆变器、热泵等,体现了可持续发展的理念。此外,每个房间都能欣赏到全景和丛林景观,让人感觉融入自然环境。砂岩外墙等设计向牛腿的历史根源致敬,证明了古老设计原则在解决现代挑战方面的永恒力量和相关性。科贝尔之家不仅是一个居住空间,更是一个讲述故事、展现创新与传统融合、追求可持续发展的建筑杰作。

© Justin Alexander

© Justin Alexander
建筑师提供的文字描述一个引人注目的住宅项目出现在一个具有挑战性的滨水区,将中世纪建筑原则与当代设计无缝融合。设计师Nick Bell Architects称之为“Corbel House”,这座创新的家庭住宅在与自然环境和谐相处的同时,最大限度地提高了空间效率。
Text description provided by the architects. A striking residential project has emerged on a challenging waterfront site, seamlessly blending medieval architectural principles with contemporary design. Dubbed "Corbel House," by designers Nick Bell Architects, this innovative family home maximizes spatial efficiency while harmonizing with its natural surroundings.

© Justin Alexander

© Justin Alexander
Nick Bell Architects从中世纪的牛腿(一种从墙壁上突出以支撑重量的阶梯式建筑元素)中汲取灵感,利用古老的原则来应对在狭窄的土地上建造的挑战,该土地坡度陡峭,难以进入,议会高度考虑,并希望维护广阔的海滨场地(1696平方米)的生态。
Drawing inspiration from the medieval corbel — a stepped architectural element projecting from walls to support weight — Nick Bell Architects used the age-old principle to meet the challenge of building on a narrow strip of land with a steep slope, difficult access, council height considerations and desire to maintain the ecology of the expansive waterfront site (1696 sqm).

© Justin Alexander

Site Plan

© Justin Alexander
其结果是一个占地75平方米的三层当代住宅,可扩展到245平方米的宽敞生活空间。利用牛腿实现了最小的占地面积,保护了场地的自然美景,并为五口之家创造了一种独特的生活体验——一个宽敞、光线充足的家,享有广阔的景色,给人一种融入自然环境的感觉。
The result is a three-level contemporary home with a 75 sqm footprint that expands to a generous 245 sqm of living space. Utilizing the corbel enabled a minimal footprint, preserving the site's natural beauty and creating a unique living experience for the family of five - a spacious, light-filled home that enjoys expansive views with a feeling of being embedded within the natural environment.

© Justin Alexander

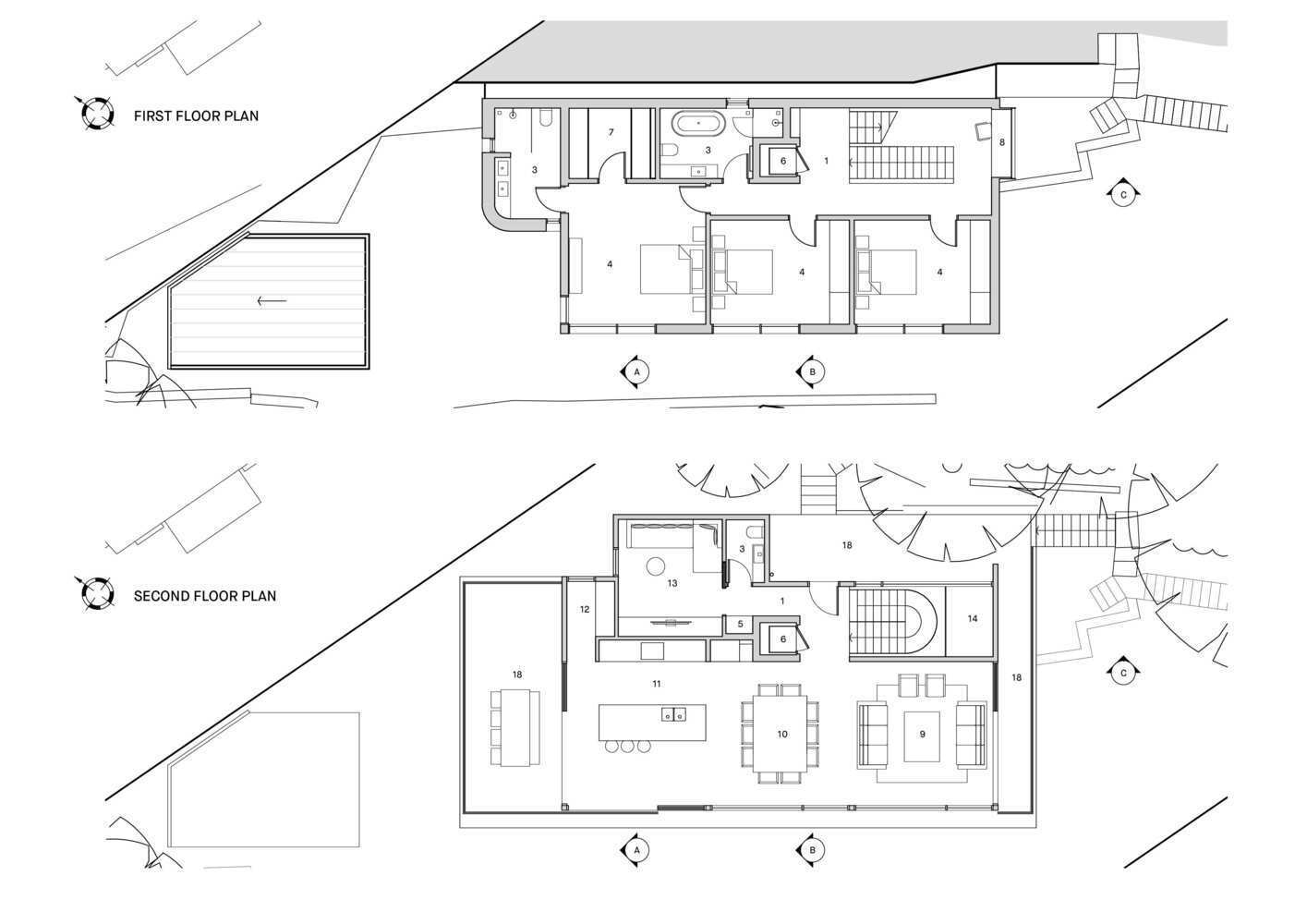
First and Second Floor Plan

© Justin Alexander
房屋的设计从坚固的混凝土基础演变为更轻、更空灵的上层,反映了从地球到天空的上升。这种进步不仅仅是美学上的;它是家中不可或缺的一部分,强调空间之间的过渡。使用混凝土、木材和钢材的混合材料,建筑和材料体现了对持久质量的承诺,确保了子孙后代的结构完整性。
The home's design evolves from a solid concrete base to lighter, more ethereal upper levels, mirroring the ascent from earth to sky. This progression is not merely aesthetic; it's an integral part of the home's character, emphasizing the transition between spaces. Using a mix of materials from concrete, timber and steel, the construction and materials embody a commitment to lasting quality - ensuring structural integrity for generations to come.

© Justin Alexander
该项目的首席设计师尼克·贝尔说:“我们想创造一个不仅能解决场地挑战,还能通过建筑讲述故事的家。”。“Corbel House展示了如何重新构想历史建筑元素,以创造出经久耐用的现代、迷人的生活空间。”
"We wanted to create a home that not only solved the site's challenges but also told a story through its architecture," says Nick Bell, lead designer of the project. "Corbel House demonstrates how historical architectural elements can be reimagined to create thoroughly modern, captivating living spaces that are built to last."

© Justin Alexander
Key features of Corbel House include:
由牛腿支撑的悬臂设计,以最小的占地面积最大限度地利用可用空间。定制元素包括混凝土牛腿的激光切割模板、定制的浮动钢楼梯和结合预制混凝土和黄铜的厨房长凳。砂岩外墙、坚固的砂岩门楣和鹅卵石铺面,向牛腿的历史根源致敬。从底层的重型混凝土到上层的轻质材料的材料之旅,既美观又耐用。配备36块太阳能电池板的全面电气化系统,包括36个微型逆变器、热泵、Enphase电池和一个雨水箱。每个房间都能欣赏到全景和丛林景观。
A cantilever design supported by corbels, maximizing usable space on a minimal footprint. Bespoke elements including laser-cut formwork for the concrete corbels, custom floating steel staircase, and kitchen bench combining pre-cast concrete and brass. Sandstone exteriors, solid sandstone lintels and cobblestone paving that pay homage to the corbel's historical roots. A material journey from heavy concrete on the ground floor to lighter materials on upper levels, chosen for both aesthetic appeal and longevity. Full electrification with a 36-panel solar system including 36 micro inverters, heat pumps, Enphase batteries and a rainwater tank. Panoramic views and bushland vistas from every room.
Corbel House证明了古老的设计原则在解决挑战方面的永恒力量和相关性——回顾过去,继续前进。
Corbel House stands as a testament to the timeless strength and relevance of aged-old design principles to solve challenges - looking back to move forward.

© Justin Alexander