卡塔雷霍/托洛洛·乌加特
Catalejo / Tololo Ugarte
与自然融合的建筑杰作:Catalejo 项目展现了建筑与自然的完美融合。初见这片土地,四棵 300 多年树龄的绿洲十分引人注目。房子悬挂于地面之上的设计,让草如绿色斗篷般生长,增强了漂浮感。同时,面向古老树木的布局以及双倍高度和拱形天花板的设计,成功将森林引入室内。圆形的房屋形状使景观成为室内空间的延伸,产生了连续性。材料的选择也注重与背景融合,减少视觉影响。
引发人与自然的思考:Catalejo 不仅是一个居住空间,更是一个建筑实验。它将景观带入房屋内部,产生不断的对话,改变了居住体验。每个窗户都成为聚焦和放大自然环境的透镜,加深了人们对居住地的认识。这个项目邀请人们反思人与自然之间的互动,是一个值得称赞的建筑作品,为未来的建筑设计提供了新的思路和方向。

© Mauricio Duarte Arratia

© Mauricio Duarte Arratia
Catalejo是一件源于其背景的建筑作品。第一次见到这片土地时,一个有趣的地方立刻显现出来:一片有四棵300多年树龄的绿洲。其余的土地看起来是一片非常肥沃的牧场,对一年中的季节非常敏感。夏天,它呈现出一种相当沙漠般的景观;然而,在冬季和春季,数米长的所谓杂草从地面发芽,从房屋两侧生长,使房屋漂浮在地面平坦的环境中,但植被提供了一种不规则和意想不到的变化。
Catalejo is a work of architecture that arises from its context. Upon first encountering the land, a point of interest was immediately evident: a kind of oasis of four trees over 300 years old. The rest of the land appeared as a very fertile pasture, highly sensitive to the seasons of the year. In summer, it presents a rather desert-like landscape; however, in winter and spring, meters of so-called weeds sprout from the ground, flanking the house and making it float in an environment that, at ground level, is flat, but where the vegetation provides an irregular and unexpected relief that shifts.

© Mauricio Duarte Arratia

Transversal Section

© Mauricio Duarte Arratia
经历了这一切,似乎房子首先应该悬挂在地面上,这样草就可以像绿色的斗篷一样生长,增强在这种植物泻湖中漂浮的感觉。同样,重要的是要回到最初的兴趣点,那就是古老的鹅绒猴和软体动物,与其他植被不同,它们构成了一个不朽但不动的景观,具有高贵和永恒的特征,导致房子面向这些伟大的活生生的雕像,同时保持适当的距离,再加上双倍的高度和拱形的天花板,成功地捕获了100%的森林并将其带入房间。
Having experienced this, it seemed that the house should, in the first place, be suspended above the ground in such a way that the grass could grow like a green mantle, enhancing the sensation of floating in this kind of vegetative lagoon. Likewise, it was important to return to the initial point of interest, which were the ancient quillayes and molles, which, unlike the rest of the vegetation, constituted a monumental but immobile landscape, of a noble and perpetual character, leading to the placement of the house facing these great living statues while maintaining just the right distance, which, along with the double height and the vaulted ceiling, managed to capture 100% of the forest and bring it inside the rooms.

© Mauricio Duarte Arratia

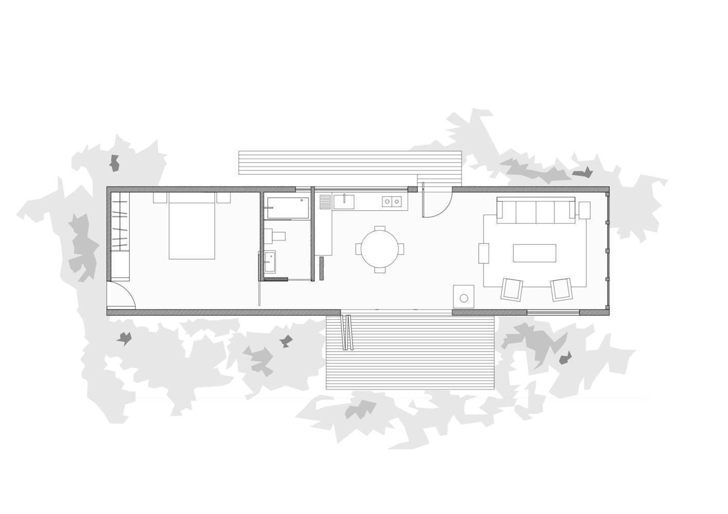
Plan

© Mauricio Duarte Arratia
房子的圆形形状最终使景观成为室内空间的延伸,产生一种连续性的感觉。这一建筑决策表明,自然环境不仅应该是背景,而且应该是重新定义空间感知的积极元素。
The circular shape of the house ultimately allows the landscape to become an extension of the interior spaces, generating a sensation of continuity. This architectural decision suggests that the natural environment should not only be a backdrop but an active element that redefines the perception of space.

© Mauricio Duarte Arratia

Plan - Upper

© Mauricio Duarte Arratia
这些材料的选择注重视觉模仿,使建筑与其背景融为一体。这一选择旨在尽量减少建筑的视觉影响,将作品融入景观中。
The materials have been selected with a focus on visual mimesis, allowing the architecture to blend with its context. This choice aims to minimize the visual impact of the construction, integrating the work into the landscape.

© Mauricio Duarte Arratia

© Mauricio Duarte Arratia

Longitudinal Section
总的来说,Catalejo不仅是一个宜居的空间,也是一个建筑实验,邀请人们反思人与自然之间的互动。通过将景观带入房屋内部,产生了一种不断的对话,改变了居住体验。这些空间成为描绘不断变化的景色的框架,每个窗户都是一个聚焦和放大自然环境的透镜,从而加深了人们对居住地的认识。
Overall, Catalejo is not only a livable space but an architectural experiment that invites reflection on the interaction between humans and nature. By bringing the landscape into the interior of the house, a constant dialogue is generated that transforms the experience of inhabiting. The spaces become frames that delineate changing views, where each window serves as a lens that focuses and amplifies the natural environment, thus fostering a deeper awareness of the place where one resides.

© Mauricio Duarte Arratia