17 Rue des Quatre Cheminées住宅/Déchelette建筑
17 Rue des Quatre-Cheminées Residence / Déchelette Architecture
独特的环保设计:17 Rue des Quatre Cheminées 住宅项目在设计上独具匠心。该项目赢得竞赛后,明确了建造一栋四层楼建筑,包含八个社会住房单元和一个使用木结构的商店,积极推广环保材料的使用。其设计简洁,在不影响居民舒适度的前提下,尽可能多地采用未经加工和生物来源的材料,如街道一侧的原始泥土立面和石头底座,以及花园一侧的木制立面,其中在法国集体住房中首次在四层立面上使用自给自足的生土,令人瞩目。
创新与实用的结合:这个项目不仅在材料的选择上具有创新性,还充分考虑了居民的实际需求。建筑师通过精心设计,使建筑既具有环保特色,又能为居民提供舒适的居住环境。生土立面和木制立面的运用,不仅展现了自然之美,还为建筑增添了独特的质感。同时,商店的木结构设计也为整个项目增添了一份温馨与活力。这个项目是创新与实用的完美结合,为未来的建筑设计提供了新的思路和方向。

© Salem Mostefaoui

© Salem Mostefaoui
建筑师提供的文字描述2021年1月,Déchelette建筑公司赢得了塞纳河西部栖息地和Patrimoine发起的一项竞赛,该竞赛旨在设计布洛涅-比兰古四化学街17号的一座建筑。
Text description provided by the architects. In January 2021, Déchelette Architecture won a competition launched by Seine Ouest Habitat et Patrimoine to design a building at 17 Rue des Quatre-Cheminées in Boulogne-Billancourt.

© Salem Mostefaoui

Axonometry

© Salem Mostefaoui
该计划很明确:设想一栋四层楼的建筑,包括八个社会住房单元和一个使用木结构的商店,以促进环保材料的使用
The program is clear: to conceive a four-story building with eight social housing units and a shop using a wooden structure that promotes the use of environmentally friendly materials

© Salem Mostefaoui

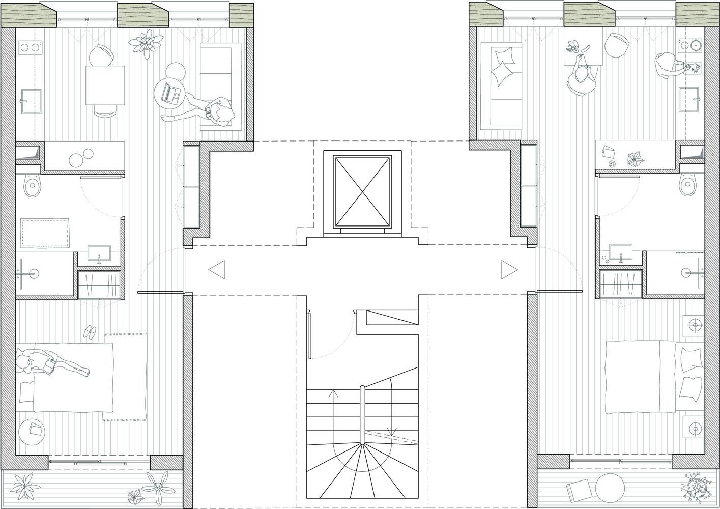
Plan

© Salem Mostefaoui
该项目因其设计简洁而引人注目。Déchelette Architecture非常谨慎地使用尽可能多的未经加工和生物来源的材料,同时不影响居民的舒适度。
The project stands out for its design, which is marked by simplicity. Déchelette Architecture takes great care to use as many unprocessed and bio-sourced materials as possible without compromising the comfort of the residents.

© Salem Mostefaoui
为了实现这些雄心壮志,建筑师设计了一座建筑,在街道一侧有一个原始的泥土立面和一个石头底座,在花园一侧有一块木制立面。在法国的集体住房中,首次在四层立面上使用自给自足的生土。
To meet these ambitions, the architects have designed a building with a raw earth façade and a stone base on the street side, and a wooden façade on the garden side. The use of self-supporting raw earth across four levels of the façade is a first for collective housing in France.

© Salem Mostefaoui