萨尔街住宅/帕森森建筑师事务所
Sar Street House / Parsonson Architects
独特的场地适应性:萨尔街住宅充分展现了对场地的高度适应性。位于惠灵顿港边缘的北坡,在陡峭大场地上,设计师巧妙地将生活层横跨东西向,以追踪太阳并眺望山谷与港口。房子以富有同情心的方式坐落,回应了下方的现有房屋,楼梯“脊梁”连接起两个住宅,促进了邻里间的互动。同时,上坡位置影响了材料选择,木框架结构无需起吊设备,天然材料的运用既保持自然状态又增添温暖与丰富性,彩钢与红柏覆层的搭配兼顾了成本与美观。
高性能的现代住宅:作为建筑师自己的家,萨尔街住宅是一个现代实用的家庭住宅典范。它具备高性能的特点,温暖、通风良好且能耗最低。精心设计的布局满足了居住者的生活需求,与自然环境和谐共生。材料的选择不仅考虑了实用性,还注重了可持续性和美观性。整体设计既满足了现代生活的功能需求,又营造出舒适的居住氛围,为现代住宅设计提供了优秀的范例,展示了如何在独特场地中打造出高性能、富有魅力的居住空间。

© Simon Devitt

© Simon Devitt
建筑师提供的文字描述这是建筑师自己的家,在一个陡峭的大场地上的第二套住宅。一个现代实用的家庭住宅,根据场地的独特要求进行调整,具有高性能、温暖、通风良好且能耗最低的特点。
Text description provided by the architects. This is the architect's own home, a second dwelling on a large steeply sloping site. A contemporary and functional family dwelling, tuned to the site's unique requirements, one that is thermally high performing, warm, well ventilated and that uses minimal energy.

© Simon Devitt

© Simon Devitt

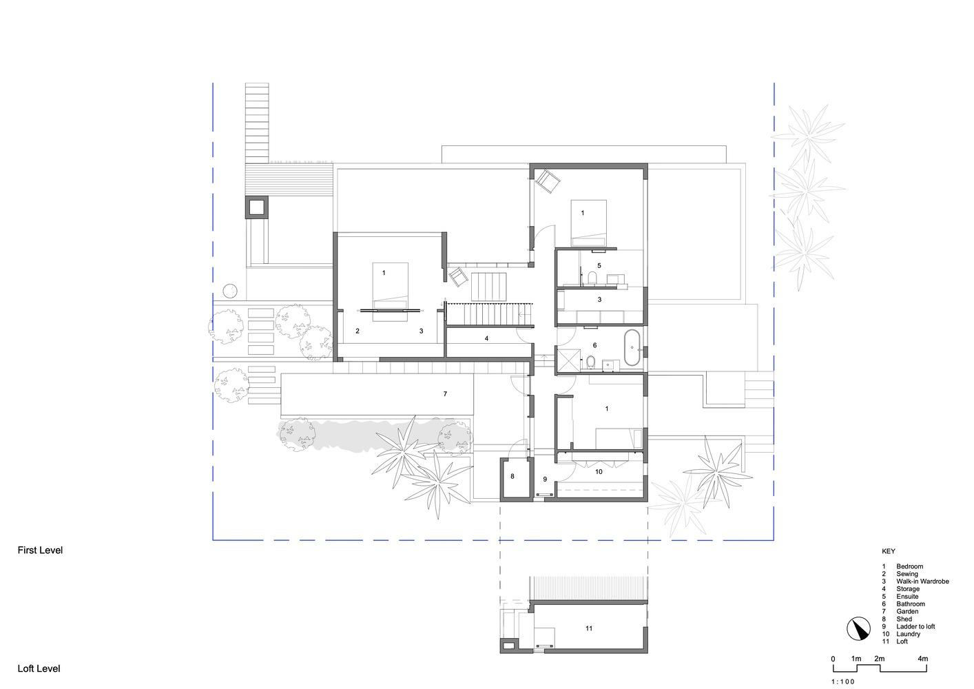
Plan - Entry Level

© Simon Devitt
该项目位于惠灵顿港的边缘,一个位于灌木丛覆盖的小山谷中的场地的北坡上。从下面的街道进入,大树占据了场地的下部,中心有一座20世纪20年代的别墅/平房。该地块的上部距离街道约30米,可容纳这座新住宅。生活层在东/西方向上横跨整个场地,以便全天跟踪太阳。眺望山谷和港口。
The project is located on Wellington harbor's edge, on the northern slopes of a site, located in a small bush-covered valley. It is accessed from the street below, large trees occupy the lower portion of the site with a 1920s villa/bungalow sitting in the center. The upper portion of the site accommodates this new dwelling some 30 meters up from the street. The living level stretches across the site in the east/west direction to enable tracking of the sun throughout the day. And view out across the valley and to the harbor.

© Simon Devitt

Plan - 1st Level
这所房子以一种富有同情心的方式坐落在场地上,并对下面现有的房子做出了回应。楼梯“脊梁”沿着房屋的侧面向上延伸,将两个住宅连接在一起,实现有意和无意的连接。位于许多梯田区域之一的蹦床成为当地的游乐区,将现有住宅和相邻房产的家庭聚集在一起。
The house sits on the site in a sympathetic way and responds to the existing house below. A stairway 'spine' travels up the side of the property, pulling together the two dwellings and enabling intended and accidental connections. A trampoline that sits on one of the many terraced areas becomes the local play area, bringing together families from the existing dwelling and adjacent properties.

© Simon Devitt

East and West Elevations
距离街道30米的上坡位置影响了材料的选择。这座房子的建造不需要起吊设备,因此主要由木框架建造。在需要保留的地方,使用了轻质EPS块。选择了可以保持自然状态的材料,用天然木油来提供保护涂层,以庆祝它们的光泽/自然饰面。各种木材被广泛用于室内,以增加温暖和丰富性。这座房子主要由波纹彩钢覆盖,以满足其最低的维护和前期成本。这个包层已经做了细致的处理。在人们更容易遇到建筑物的地方,以及在形状被侵蚀的地区,西部红柏被用作覆层。
Being located 30 meters uphill from the street influenced the selection of materials. The house had to be built without the need for heaving lifting equipment and is therefore constructed predominantly from timber framing. Where retaining was required light EPS blocks were used. Materials were selected that could be left in their natural state, their patina / natural finish is celebrated with natural wood oils used to provide a protective coating. A variety of timbers have been used extensively on the interior to add warmth and richness. The house is predominantly clad in corrugated color steel as a response to its minimal maintenance and upfront costs. This cladding has been detailed delicately. Where people are more likely to encounter the building, and in areas where the form has been eroded western red cedar has been used as the cladding.

© Simon Devitt