Hokusetsu Polygon House/FujiwaraMuro建筑师事务所
Hokusetsu Polygon House / FujiwaraMuro Architects
独特的设计理念:这个项目展现出了极具创意的设计思路。设计师巧妙地利用了场地的高差和对面的绿地,通过多边形的墙壁布置模糊了内部方向性,让居住者从不同位置都能看到街对面的绿地,营造出被绿地包围的感觉。建筑配置合理,功能分区明确,同时精心设计的窗户和流线使得各个区域都能欣赏到绿色植物和天空,实现了室内外空间的良好互动。
材料的精心选择:在材料选择上也别具匠心。橙色的劳安板与绿色景观形成鲜明对比,使绿化带看起来更靠近房子内部,增强了视觉效果。红雪松用于带窗户的连续区域,主外墙采用对比鲜明的绿色,外部材料的搭配不仅美观,还与周围环境相协调,使建筑更好地融入自然街景之中。


© Toshiyuki Yano
建筑师提供的文字描述该地块面向马路对面的绿地,其内部高差为2米。我们想设计一个住宅,利用这片绿地作为背景,并保持与丘陵街景的连续性。
Text description provided by the architects. The site faces a greenbelt across the road with a 2-meter difference in elevation within it. We wanted to design a residence that would utilize this greenbelt as a backdrop and maintain continuity with the hilly streetscape.

© Toshiyuki Yano

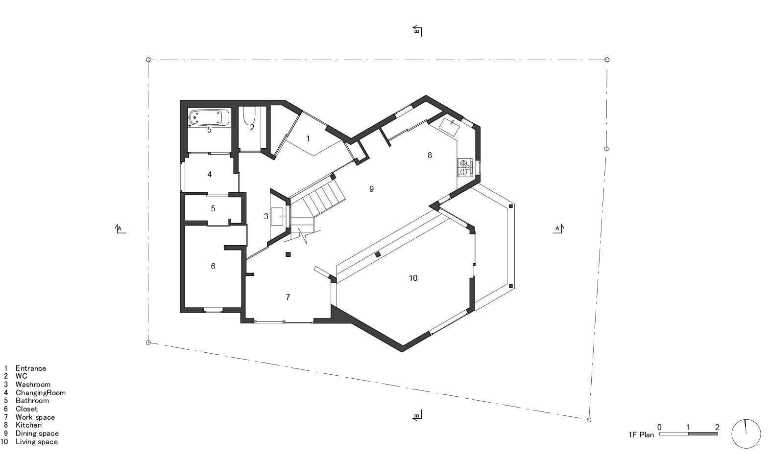
Plan - 1st Floor

© Toshiyuki Yano
在规划项目时,我们考虑了以下几点:
-绿地仅在场地的一侧。但是,通过精心安排流线和平面图,并反映房屋内的景观,是否有可能创造一种被它包围的感觉呢
-是否可以在平面图中将建筑基础的一部分对角放置在路堤上,使建筑与坡度自然融合?
In planning the project, we considered the following points:
- The greenbelt is only on one side of the site. But is it possible to create a feeling of being surrounded by it by carefully arranging the flow lines and the floor plans and reflecting the landscape inside the house?
- Is it possible to position part of the building foundation diagonally against the embankment in the plan so that the building naturally blends with the slope?

© Toshiyuki Yano

Plan - 2nd Floor

© Toshiyuki Yano
基于这些考虑,墙壁被布置成多边形,模糊了内部的方向性。我们设计了这个计划,以便从房子的不同位置看到街对面的绿地。
Based on these considerations, the walls were arranged in a polygonal shape, obscuring the directionality of the interior. We designed the plan so that the greenery across the street would appear in the line of sight from various locations in the house.

© Toshiyuki Yano

East Elevation
关于建筑配置,停车场位于场地与街道交汇处,建筑从场地北侧沿斜坡进入。在一楼,厨房、餐厅、客厅和工作区从街道一侧到建筑后部,形成一个完整的空间,后面有一个壁橱、浴室和卫生间等潮湿区域。窗户和流线经过精心设计,可以从楼梯间、楼梯、书房和其他区域看到绿色植物和天空。
Regarding the building configuration, a parking lot occupies the area where the site meets the street, and the building is accessed from the north side of the site along the slope. On the first floor, the kitchen, dining room, living room, and workspace are located from the street side to the back of the building to form an integrated space, with a closet, and wet areas such as a bathroom, and washroom behind them. The windows and flow lines have been carefully designed so that one can see the greenery and sky from the stairwell, stairs, study, and other areas.

Roof Plan

© Toshiyuki Yano
关于材料的选择,我们在与窗户相同高度的墙壁上使用了橙色的劳安板,这样视野就会被与绿色景观形成对比的墙壁所包围,使绿化带看起来更靠近房子的内部。外部由红雪松组成,用于带窗户的连续区域,主外墙采用对比鲜明的绿色。
Regarding the choice of materials, we used orange-painted lauan boards for the walls at the same height as the windows so that the view would be framed by walls of a contrasting color to the green landscape, making the green belt appear closer to the inside of the house. The exterior is composed of red cedar for the continuous areas with the windows and a contrasting green color for the main exterior walls.

© Toshiyuki Yano