卡塞勒之家/Quadrat Estudio
Casa Carceller / Quadrat Estudio
项目亮点总结:卡塞勒之家在老工人阶级社区中,成功复兴了传统住宅建筑遗产。其设计在高度、形状和材料选择上与邻近房屋和谐相融,不突兀。强调隐私、光线和空间的设计理念,充分利用了地块潜力。内院设计既隔开邻居又引入阳光。材料选择突出手工元素不完美性,结合附近制砖业,不同形式砖块满足结构要求且具特色。整体是一座简单却值得居住的房子。
可提升之处:虽然项目有诸多亮点,但仍有可改进空间。例如在空间利用上,可以进一步优化室内布局,使各个房间的功能更加明确和高效。在材料的运用上,可以探索更多创新的组合方式,以提升建筑的独特性和艺术感。同时,可以加强与周边环境的互动,打造更加宜人的居住氛围。

© Mariela Apollonio

© Mariela Apollonio
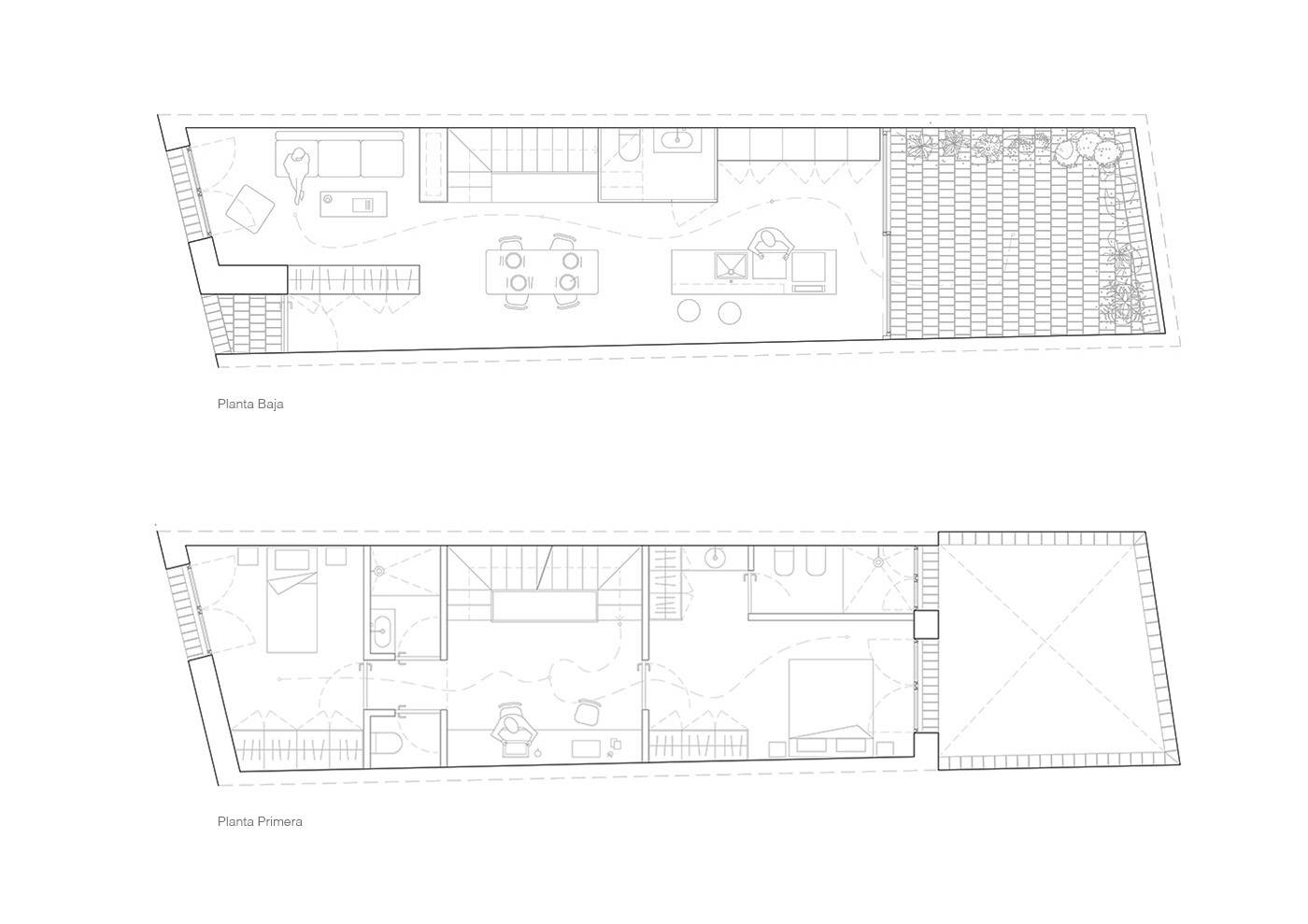
在Foios老工人阶级社区,一排狭窄低洼的地块被相邻的建筑墙环绕,这座房子旨在复兴周边地区传统住宅建筑的遗产。在高度、形状和材料的选择上,它与邻近的房屋和谐地融为一体,而不会显得突兀。这座房子的设计理念强调隐私、光线和空间,以利用整个居住区,并充分利用地块的潜力。室内设计定义了空间,巧妙地穿过不同的房间,而不会触及天花板。放置在从上方照亮的房间里的楼梯构成了中心区域,并连接了房子的不同楼层。一个内院将这座建筑与邻居隔开,让房子沐浴在阳光下。
Surrounded by adjacent building walls in a succession of narrow, low-lying plots in the old working-class neighbourhood of Foios stands a house that seeks to revive the heritage of traditional residential architecture in the surrounding area. In its height, shape and choice of materials, it blends harmoniously with the neighbouring houses without being obtrusive. The design concept of this house emphasises privacy, light and space in order to utilise the living area along its entire length and to make the most of the potential of the plot. The interior design defines the space and cleverly leads through the different rooms without touching the ceiling level. A staircase placed in a room lit from above structures the central area and connects the different levels of the house. An inner courtyard separates the building from its neighbour and floods the house with daylight.

© Mariela Apollonio

Plan - Ground floor

© Mariela Apollonio
所使用的材料强调了手工元素的不完美性,并遵循了一种合乎逻辑的策略,将村庄附近的制砖业结合起来。不同形式的砖块的使用符合房屋的结构要求。它们用作立面覆层,同时以扩展的形式形成排水沟。实心砖作为内墙的饰面,在立面上也可以看到。它们垂直排列,间隙比例越来越大,显示出它们的非支撑性。
The materials used emphasise the imperfection of handmade elements and follow a logical strategy by incorporating the nearby brick industry of the village. The use of bricks in different formats meets the structural requirements of the house. They serve as facade cladding and at the same time form the gutter in an extended format. Solid bricks serve as a finish on the interior walls and are also visible on the facade. Arranged vertically and with an increasing proportion of gaps, they reveal their non-supporting character.

© Mariela Apollonio

Section

© Mariela Apollonio
用于在墙壁和地板上灌浆粘土砖的可见沙子和白水泥,为立面的手工外观增添了特色。这是一座简单的房子,值得居住。
The visible sand and white cement used to grout the clay bricks on the walls and floors contribute to the characteristic, handcrafted look of the facade. This is a simple house that deserves more than to be lived in.

© Mariela Apollonio