虚空别墅/AsNow设计与建造
The Voids Villa / AsNow Design & Construct
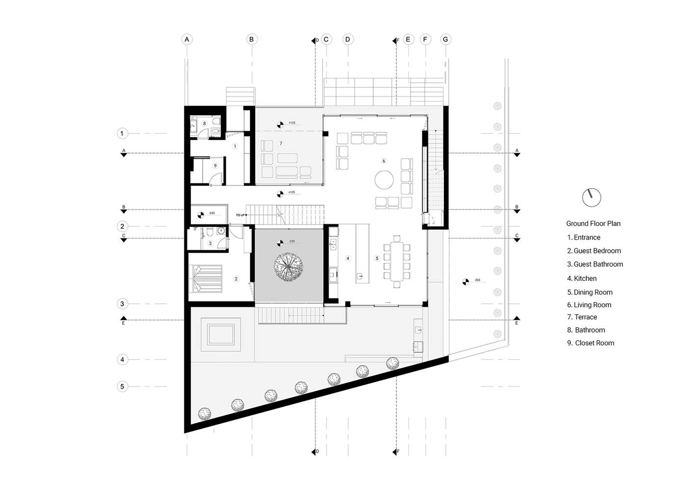
项目优点:虚空别墅位于德黑兰郊外,体现了对休闲和欢乐的追求。其室内外空间互动良好,融合不同设计时代元素,充满趣味和活力。建筑采用外向内向组合类型,有多个庭院,半中央庭院位于中心,连接各层空间,还种植有象征时间流逝的树。建筑在北部地下通道创造舒适空间,楼层规划虽传统但空隙空间连接独特,组织房间并活跃室内空间,同时体现了实心与空隙的二元性,满足居民对自然的需求。
可提升之处:该项目在一些方面可进一步优化。例如,在建筑与周边环境的融合上,虽然有庭院等元素与自然互动,但可更深入地考虑如何让建筑整体更好地融入德黑兰郊外的环境,减少突兀感。在空间利用方面,对于空隙空间的利用可以更加高效和多样化,以提升建筑的实用性和独特性。

© Mohammad Hossein Hamzelouei

© Mohammad Hossein Hamzelouei
德黑兰郊区别墅的激增反映的不仅仅是逃离城市喧嚣和密度的愿望。这些房子体现了对休闲和欢乐的热情追求。室内和室外空间的动态相互作用,再加上对不同设计时代的俏皮探索,营造出一种阴谋和活力的氛围。这些别墅是庆祝生活的舞台,居民和客人都可以在这里漫步、发现并沉浸在一个充满无尽魅力的世界中。这些空间提供了一种更高的激励,可以激发受试者的品味和好奇心,在那里,意想不到的事情会在观众的脑海中留下一种特殊的感官品质。实体和空隙体积、多样化的路径和楼梯的发挥不仅增强了空间的渗透性,还为观众提供了一个潜在的机会,让他们在记忆演变的过程中爬上建筑,与空间的流动性融为一体。
The proliferation of villas on Tehran's outskirts reflects more than a desire to escape the city's clamor and density. These homes embody a spirited pursuit of leisure and conviviality. The dynamic interplay of indoor and outdoor spaces, coupled with a playful exploration of different design eras, creates an atmosphere of intrigue and vitality. These villas are stages for the celebration of life, where residents and guests alike can wander, discover, and immerse themselves in a world of endless fascination. Spaces that offer a heightened incentive to stimulate the taste and curiosity of their subjects, where the unexpected leaves a special sensory quality in the mind of the viewer. The play of solid and void volumes, diverse paths, and stairways, not only strengthens the permeability of spaces but also offers a potential opportunity for viewers to climb over the building and become one with the fluidity of the spaces as their memories evolve.

© Mohammad Hossein Hamzelouei

Diagram 01

© Mohammad Hossein Hamzelouei
虚空开始生长,它们倾向于将虚空空间组合在一个相对有序和静态的盒子里。由于别墅在两个方面(北部和西部,面向理想的景色,没有邻居)是开放的,而在其他两侧(由于潜在的东部和南部邻居的位置)是封闭的,因此选择了外向内向的组合类型;一座外向的建筑,包含各种内部庭院和中间空间。最大的北侧庭院与建筑保持着最大的距离,在入口处展示了一个相对透明和外向的建筑,而最小的南侧庭院及其各种采光井创造了小的内部空间。"
The Voids, with such inclinations to combine void spaces within a relatively ordered and static box, began to grow. The villa, due to its openness on two fronts (north and west, facing desirable views and devoid of neighbors) and its closure on the other two sides (due to the site of potential eastern and southern neighbors), chose a combined extroverted-introverted typology; an extroverted building that embraces a variety of internal courtyards and intermediate spaces. The maximum northern courtyard, which maintains the greatest distance from the building, showcases a relatively transparent and extroverted building upon entry, while the minimal southern courtyard with its various light shafts creates small interior spaces."

© Mohammad Hossein Hamzelouei

Plan - Ground Floor

© Mohammad Hossein Hamzelouei
半中央庭院坐落在项目的中心,与所有三层楼的有盖和开放式空间相结合,保持了一定程度的连续性。就像一个坚固的树干,它聚集了周围的空间,并将光线传导到地下室的深处。在这个最深的内部庭院里,种植了一棵相对古老而珍贵的树,作为居民时间流逝的标志。随着它越来越高,它将在室内空间中占据越来越突出的地位。在体验接近建筑并从其开放式立面观察它的同时,该项目在现场的放置努力将体积最大限度地从其背景中悬挂出来。通过使用长长的格子楼梯和休息区,建筑与北部庭院的最小视觉联系为坐着观看游乐场的体验提供了不同的感官质量。
The semi-central courtyard, nestled within the heart of the project, engages with both covered and open voids on all three floors, maintaining a degree of continuity. Like a sturdy trunk, it gathers spaces around itself and conducts light into the depths of the basement. In this deepest interior courtyard, a relatively old and valuable tree has been planted, serving as a marker of the passage of time for the residents. As it grows taller, it will have an increasingly prominent presence in the interior spaces. Simultaneously with the experience of approaching the building and observing it from its open facades, the project's placement on the site endeavors to maximally suspend the volume from its context. The minimal visual connection of the building with the northern courtyard, through the use of a long, latticed stair and seating area, provides a different sensory quality to the experience of sitting and watching the playground.

© Mohammad Hossein Hamzelouei

© Mohammad Hossein Hamzelouei

Section BB

© Mohammad Hossein Hamzelouei
此外,它在北部地下通道创造了一个舒适而独特的空间。通过这种方式,建筑在视觉上和隐含地寻求保护其立方体性质并提高其雕塑质量。尽管楼层的规划遵循了传统的休闲(地下室)、生活(底层)和夜间居住(一楼)的划分,但具有不同进入可能性的空隙空间的连续连接,不一定渗透到内部空间,隐含地允许在不同层次上漫游和最大限度地利用封闭空隙空间的容量(建筑和场地内的垂直和水平通道允许在大多数室外空间中持续存在和探索)。此外,空隙的存在将房间组织成岛屿,在有效角色的作用下,它们的砖色和材料在背景序列中变得活跃,使室内空间充满活力。
Additionally, it creates a cozy and unique space in the northern underground passage. In this way, the building visually and implicitly seeks to preserve its cubic nature and enhance its sculptural quality. Although the program of the floors follows the conventional division into leisure (basement), living (ground floor), and nighttime habitation (first floor), the continuous connection of void spaces with diverse access possibilities, which do not necessarily penetrate the interior spaces, implicitly allows for wandering and maximum use of the capacity of enclosed void spaces at different levels (vertical and horizontal accesses within the building and site allow for continuous presence and exploration in most outdoor spaces). In addition, the presence of voids organizes the rooms as islands and, in the role of an effective character, their brick color and material become active in the background sequence to enliven the interior space.

© Mohammad Hossein Hamzelouei

© Mohammad Hossein Hamzelouei

Diagram 02
因此,实心空间被标记为较浅的白色,而空隙空间则有较重的砖块浓度,形成了轻填充和重空隙空间的二元性。通过这种方式,各种露台和庭院的存在,以及公共和私人空间,旨在满足人类从自然中受益的自然需求,繁华的德黑兰市外的空气对居民表现出更热情的一面。
Therefore, the solid spaces are marked with a lighter white color, and the void spaces have a heavier concentration of brick, forming a duality of light-filled and heavy-void spaces. In this way, the presence of various terraces and courtyards, alongside public and private spaces, seeks to respond to the natural human need to benefit from nature, whose air outside the bustling city of Tehran shows a more welcoming face to its residents.

© Mohammad Hossein Hamzelouei