特奥多罗·加西亚住宅楼/BAS+Oszurkiewicz
Teodoro García Residencial Building / BAS + Oszurkiewicz
特奥多罗・加西亚住宅楼位于布宜诺斯艾利斯的 Chacarita 社区,该社区城市特征发生重大转变。围绕四个不同等级的庭院组织 13 套公寓,庭院为生活空间提供自然光和通风,建筑有半覆盖走廊和开放式垂直流通核心,鼓励与环境互动。
倒置的外露混凝土梁是结构元素,也调节空间连续性,在阳台、公共区域和窗户间创造过渡,遮挡视线。开放式底层由绿化区域和停车位环绕,有遮荫花坛界定人行通道,地块后部有庭院,为邻居提供休憩处和居民聚会空间。
实心、空心和半透明元素相互作用,定义建筑与街道和室内空间的视觉关系,不同程度渗透性调节自然光和阴影投影,建立公共空间、公寓和城市环境间的动态关系。

© Fernando Schapochnik

© Fernando Schapochnik
集体住房大楼位于Chacarita社区,该地区的城市特征发生了重大转变。餐厅、美术馆、设计工作室和文化中心的结合使该地区成为布宜诺斯艾利斯新兴的社区。
The collective housing building is located in the Chacarita neighborhood, an area that has undergone significant transformation in its urban character. The incorporation of restaurants, art galleries, design studios, and cultural centers has established the area as an emerging neighborhood in Buenos Aires.

© Fernando Schapochnik
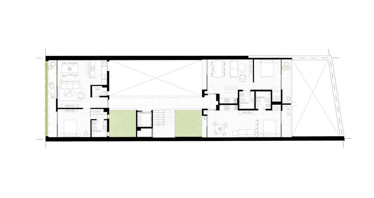
该项目围绕四个不同等级的庭院组织了13套公寓。这些庭院在为生活空间提供自然光和通风方面发挥着关键作用,创造了一个半覆盖走廊和开放式垂直流通核心的建筑,鼓励与环境的互动。
This project organizes 13 apartments around four courtyards of varying hierarchies. These courtyards play a key role in providing natural light and ventilation to the living spaces, creating an architecture of semi-covered corridors and an open vertical circulation core that encourages interaction with the environment.

Plan

Plan
倒置的外露混凝土梁不仅起到结构元素的作用,还调节了项目的空间连续性。这些梁在阳台、公共区域和窗户之间创造了一种过渡,遮挡并保护这些空间免受直接视线的影响。
The inverted exposed concrete beams not only function as a structural element but also modulate the spatial continuity of the project. These beams create a transition between the balconies, common areas, and windows, shielding and protecting these spaces from direct views.

© Fernando Schapochnik

Section
该建筑的开放式底层由绿化区域和停车位环绕。有遮荫的花坛界定了人行通道,在地块的后部,一个有吸水性土壤和茂密植被的庭院为邻居们提供了一处休憩之所,也为居民们提供了一个聚会空间。
The building’s open ground floor is bordered by green areas and parking spaces. Shaded plant beds define the pedestrian paths, and at the rear of the lot, a courtyard with absorbent soil and lush vegetation offers a respite for the neighbors and a gathering space for the residents.

© Fernando Schapochnik

© Fernando Schapochnik
实心、空心和半透明元素之间的相互作用定义了建筑与街道和室内空间的视觉关系。不同程度的渗透性允许调节自然光和阴影投影,在公共空间、公寓和城市环境之间建立动态关系。
The interaction between solid, void, and translucent elements defines the building's visual relationship with the street and interior spaces. The different degrees of permeability allow for the modulation of natural light and shadow projection, establishing a dynamic relationship between the common spaces, apartments, and the urban environment.

© Fernando Schapochnik