可持续集成与场所精神的尊重:该停车场项目精准地融入了“Treed it”这一可持续发展新区(笛卡尔城)的宏大愿景中。其设计精髓在于对场地原有环境的深刻尊重,通过巧妙的平面布局,成功保护了地块上珍贵的大橡树,这体现了建筑师对生态文脉的优先考量。停车场作为综合街区的一部分,其结构设计本身就是对可持续材料的创新实践,实现了木结构与混凝土结构的有机结合,展现了对现代绿色建筑理念的积极响应,而非简单地满足停车功能。
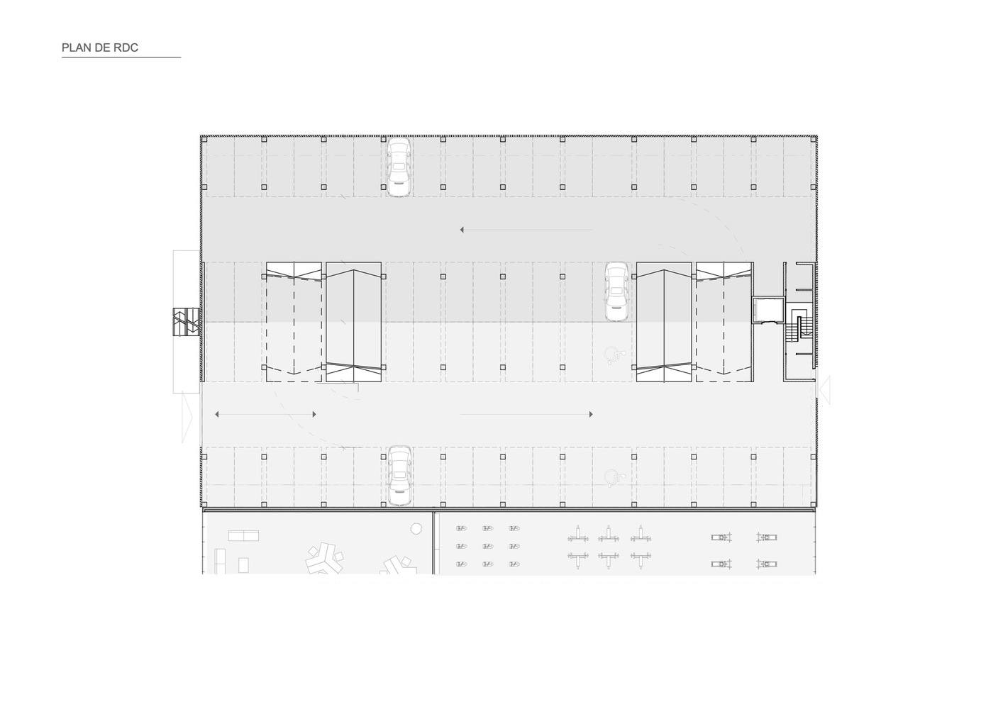
结构创新与材料的混合应用:本项目在结构设计上展现了高超的工程智慧。通过明确划分楼层的结构材料——底层全混凝土以保证基础稳定性和承重,而上部(R+1起)采用木柱梁搭配混凝土楼板的混合结构,实现了对材料性能的优化配置和碳足迹的潜在降低。这种分层级的材料策略,不仅优化了建造效率,也为建筑注入了温暖的肌理感。此外,半层组织方式的采用,有效压缩了传统坡道所需的空间,极大地提升了场地的空间利用率,是对停车功能空间效率的突破性提升。
立面韵律与公共空间的活性化:垂直白色金属管构成的覆层设计,是解决自然通风和环境遮蔽两大挑战的关键。这种覆层并非静态屏障,而是通过管子位置的变化,创造出随观者移动而产生动态视觉效果的“皮肤”,赋予了停车场建筑立面以韵律感和感知深度。更具匠心的是,未能通行的最后半层空间被转化为积极的社区共享设施,植入了乒乓球桌和健身步道,成功地将原本被视为冗余的交通空间转化为高品质的城市活力节点,实现了从纯粹功能设施到社区配套设施的价值升华。
The parking lot is part of a larger project called Treed it, located in Descartes City in the Parisian suburb of Champs-sur-Marne, a new district striving for a sustainable city, bringing together companies, schools, research and professional centers of international stature.
停车场属于一个名为 Treed it 的更大的项目,其位于马恩河畔香榭丽舍省的笛卡尔城,这是一个新区,汇集了具有国际规模的公司、学校、研究和专业中心,为可持续发展的城市而努力。

© Maxime Dufour

© Maxime Dufour

© Maxime Dufour

© Maxime Dufour

Master plan
Treed it is a landscape block of 5 buildings: three housing units for students and young workers, a medical office, and a car park with 240 spaces, structured in wood and concrete. The site plan aims to preserve the large oak trees existing on the plot.
Treed it 是一个由 5 栋建筑组成的景观街区:三个学生和年轻员工的住宅、一个医务所和一个拥有 240 个车位的、采用了木结构和混凝土结构的停车场。项目的平面设计以保护地块上现有的大橡树为目的。

Plans

Sections
The structure of the car park combines wood and concrete. The ground floor is entirely concrete, from the columns to the beams and the slabs; from R+1 onwards, the columns and beams are made of wood, while the slabs are concrete. The cladding, made of vertical metal tubes with a white lacquered finish, responds to two major challenges: ensuring good natural ventilation for the car park; protecting the surroundings from the impact of parked vehicles. The variation in the tubes' positions creates a dynamic effect, offering a different perception of the building as you move.
停车场的结构结合了木材和混凝土。底层从柱子、梁到楼板全部是混凝土;从 R+1 开始,柱子和横梁由木头制成,而楼板由混凝土制成。覆层采用白色漆面垂直金属管包裹,以应对两大挑战:确保停车场良好的自然通风;保护周围环境免受车辆停放的影响。管子位置的变化会有一种动感的效果,使你在移动时对建筑物产生不同的感知。

© Maxime Dufour

© Maxime Dufour

© Guillaume Mussau
To limit the space occupied by traffic ramps and increase the number of parking spaces, the car park is organized in half-levels. The last half-level is inaccessible to cars and has been transformed into a playful sports area accessible to all residents, featuring a ping-pong table and a fitness trail.
为了减少交通坡道对空间的侵占并增加车位的数量,停车场以半层的方式被组织起来。最后半层汽车无法通行,并被改造成一个有趣的运动区供所有居民使用,其中设有乒乓球桌和健身步道。
Text by the architects
文字描述来自建筑师
Translated by Jiawen Qian
译者:Jiawen Qian

© Guillaume Mussau