城市更新中的有机再生与功能转型:本项目成功地将一个老旧的家具制造基地改造为现代化的智能制造创新园区,体现了对城市存量资源的尊重与高效利用。设计师并未采取推倒重来的激进策略,而是立足于原有建筑形态的“传承与改造”,实现了从传统工业到高精尖产业的平稳且高质量的功能转型,这是城市更新中可持续发展理念的典范实践,有效保留了场地记忆的同时注入了新的经济活力。
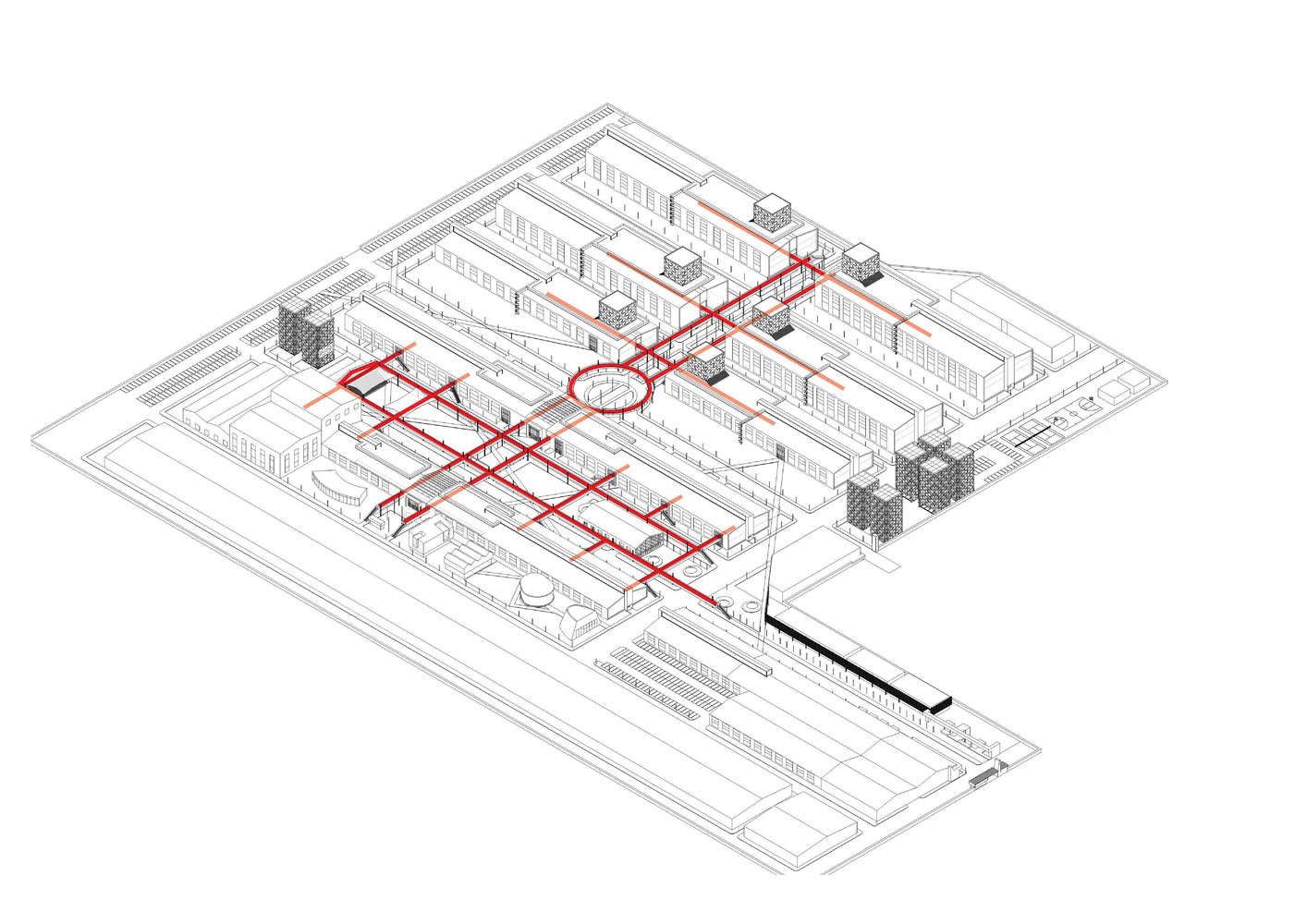
高线公园模式的本土化创新与空间渗透:通过建造高架人行道(类比纽约高线公园),设计极大地优化了12万平方米园区的流线组织和公共空间潜力。这一垂直交通网络的引入,不仅连接了分散的厂房单元,更在保留原有工业肌理的基础上,为使用者创造了多层次的、灵活可变的步行体验。这种空间策略有效打破了传统工厂布局的僵硬性,增强了建筑群落间的互动性和整体的灵活性。
工业美学与高品质环境的营造:在设计语言上,园区巧妙地融合了符合现代高精尖产业需求的简约大气工业风格。通过对材质、体量和光影的精细控制,营造出既有历史厚重感又不失现代活力的空间氛围。高架廊桥等设计元素不仅解决了交通连接问题,更在视觉上丰富了园区的立体感和序列感,成功地将一个功能性工业场地提升为具有鲜明设计特色和高品质环境的创新生态区。
The Jinyu Innovation Park awakens old factories, nurturing new development opportunities. This is both a continuation and a transformation. In urban renewal, the Jinyu Innovation Park does not pursue large-scale demolition and reconstruction; instead, it respects the architectural form of the original old factories, achieving a successful transformation from traditional manufacturing to intelligent manufacturing through upgrading and renovation, becoming the core of innovation for high-precision, high-tech industries by effectively utilizing existing resources.
金隅智造工场唤醒了老旧厂房,孕育了新的发展机遇。这既是一种传承,也是一种改造。金隅智造工场在城市更新中并非追求大规模的拆除和重建,而是尊重原有老旧厂房的建筑形态,通过升级改造,有效利用存量资源,成功实现了从传统制造向智能制造的转型升级,成为高精尖产业创新的核心。
© 存在建筑-建筑摄影

© 存在建筑-建筑摄影

© 存在建筑-建筑摄影

© 存在建筑-建筑摄影

© 存在建筑-建筑摄影
In collaboration with Beijing Jinyu Group (a large state-owned industrial group primarily engaged in new green building materials manufacturing and real estate development), we transformed a 120,000 square meter traditional furniture manufacturing base into an intelligent manufacturing innovation park to adapt to Beijing's requirements as the "Four Centers."
在与北京金隅集团(以新型绿色环保建材制造、房地产开发为主业的大型国有产业集团 )的合作中,我们将12万平方米的传统家具生产制造基地,改造成为智能制造创新园区,以适应北京“四个中心”的要求。

Analysis Diagram

Analysis Diagram

© 存在建筑-建筑摄影
We constructed an elevated pedestrian walkway connecting the factories from all directions, similar to the "High Line Park" in Chelsea, New York. While preserving the original historical memory of the factory, this maximizes the flexibility of the factory’s public space and internal street layout.
我们建造了一条高架人行道,将各个方向的厂房连接起来,类似于纽约切尔西的“高线公园”。在保留工厂原有历史记忆的前提下,无限延伸工厂的公共空间和内部街道在布局上的灵活性。

© 存在建筑-建筑摄影

© 存在建筑-建筑摄影
The park employs various design elements to skillfully create an industrial style suitable for high-precision, high-tech industries, showcasing simple and atmospheric spatial characteristics. Simultaneously, the park is equipped with elevated corridors, enhancing the three-dimensionality of the building cluster, facilitating connection and interaction between buildings within the park, and improving the park's appearance and vitality.
园区采用多种设计元素,巧妙营造符合高精尖产业的工业风格,展现出简约大气的空间特色。同时,园区还铺设了高架廊桥,增强了建筑群落的立体感,方便了园区内部建筑之间的连接与互动,提升了园区的外观和活力。

© 存在建筑-建筑摄影