场地文脉的有机融合:本项目设计的精髓在于其对既有场地文脉的深刻理解与有机融合。建筑体量并非突兀地插入广场,而是巧妙地以两侧的香樟树树冠形态为边界,确立了其基础轮廓。这种“以景为型”的策略,使得建筑在物理和视觉上都与广场的自然肌理和谐共存,体现了对场地既有生态资源的尊重与保护,是场所精神营造的典范。
连续屋顶与过渡空间的营造:连续且起伏的屋盖设计是本项目极具特色的亮点。它不仅在形式上赋予建筑灵动感,更重要的是通过檐口的大幅度出挑,创造了从室内到室外的“亭”与“廊”的过渡空间。这些半室外庇护所,极大地拓展了公共服务功能的使用范围,为广场上休憩、社交的居民提供了全天候的遮阳避雨场所,极大地提升了广场的使用舒适度和社区粘性。
光影叙事与空间节点的激活:设计通过核心区域的塔顶处理,实现了自然光与人工光的精妙互动,使建筑成为一个记录时间的“光影容器”。白天,斑驳的光影洒落在室内地面,形成宁静的驻足点;夜晚,透射的光芒赋予驿站独特的标志性和趣味性。此外,面向下沉广场的透光立面设计,促进了室内外的视线渗透与功能联系,成功地将城市客厅打造为激活广场核心活动的焦点。
The Changan Plaza Citizen Service Station project is located in the Chang'an Street area of Huishan District, Wuxi City, enclosed by Chunchui Road, Yingxin Road, Channing Road, and Huiji Road. It serves as a core area for the activities of residents from several surrounding communities. Residents use the square for resting and playing chess during the day, and dancing and socializing at night. The station project originated from the overall renovation and upgrading project of the square, which began in 2022, aiming to provide convenient services such as public restrooms and rest areas for the renovated square.
长安市民广场驿站项目位于无锡市惠山区长安街道,由春惠路、迎新路、长宁路、惠吉路所合围,是服务周边多个小区居民活动的核心场地。居民们白天在广场休憩下棋,夜晚跳舞交际。驿站项目源自始于2022年的广场整体改造提升项目,希望能为改造升级后的广场提供包括公厕、休息区等便民服务的功能。

© 陈旸

Analysis Diagram
Design Strategy: One, Dialogue with the Site
As a small building within a larger environment, how to maintain a harmonious coexistence with the site was the first consideration for the designers. The north side of the building faces the core sunken plaza, while the other three directions retain many well-growing camphor trees. The urban station integrates with the landscape features, using the trees on the left and right sides as boundaries to form the basic volume of the building based on the shape of the tree canopy.
设计策略:一、与场地的对话
作为一个大环境中的小房子,如何使其与场地保持和谐共处的关系是设计师首先考虑的问题。建筑北侧正对广场核心下沉广场,另外三个朝向保留了许多长势良好的香樟树。城市驿站结合景观特征,以左右两侧的树为边界,依托树冠形态形成建筑的基本体量。

© 陈旸
Two, Continuous Undulating Roof
The roof is complete and continuous. The overhangs create transitional spaces like pavilions or corridors that shelter from wind, rain, and strong sunlight, providing semi-outdoor shelter for people engaging in activities in the plaza.
二、连续起伏的屋盖
屋面完整连续,外檐出挑形成如亭如廊的遮风避雨、抵挡烈日的过渡空间,为广场活动的人群提供半室外庇护的场所。

Analysis Diagram

© 陈旸

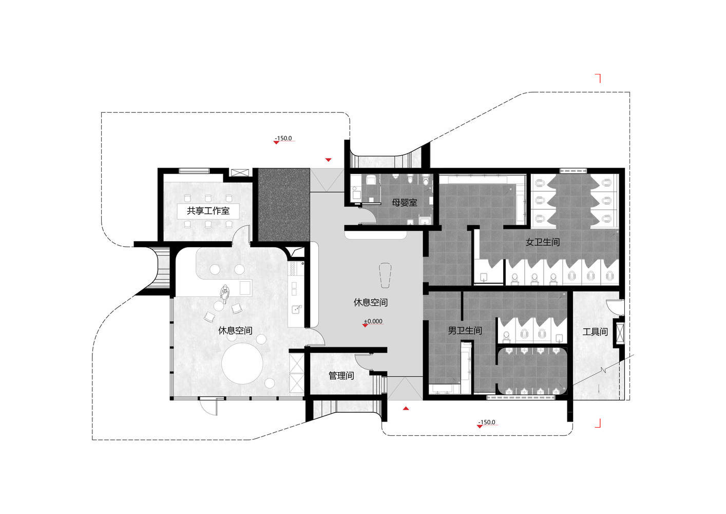
Ground Floor Plan
Three, Apertures and Light
The core area of the entire building is a tranquil and comfortable space that interacts with light. Natural and artificial light merge here, forming spatial nodes for brief stops and contemplation indoors. During the day, sunlight streams through the tower top, leaving mottled traces of time on the walls and floor; at night, light can also project outwards through the raised tower top, enhancing the station's symbolic presence and playfulness in the plaza. Artificial light illuminates the rest area at night. The urban living room faces the sunken plaza, utilizing translucent white glass facades to facilitate the penetration of space, sightlines, and light. The interior is equipped with air conditioning and sinks for citizens to cool down and rest.
三、洞口与光线
在整个建筑的核心区域是一处静谧安逸、可以与光线互动的场所,自然光与人工光在此处融合,在室内形成能短暂驻足停留思考的空间节点。 日间阳光从塔顶射入,在墙面和地面留下时光斑驳的痕迹;夜间光线亦可通过凸起的塔顶射出,提升驿站在广场中标志性和趣味性。夜晚通过人造光源的透射点亮休憩场所。城市客厅正对下沉广场,立面采用透光白玻,利于空间、视线和光线的渗透。室内设有空调、洗手池,方便市民纳凉休息。

© 陈旸

© 陈旸
The urban living room and the restroom area are separated by a central atrium, ensuring no mutual interference. The atrium is furnished with casual seating to meet the needs of temporary waiting. The living room faces the center of the plaza, echoing the cantilevered platform and the sunken lawn. Inside, it provides resting spaces, vending machines, drinking fountains, charging stations, and seating. The restroom area is divided into men's, women's, and a third restroom; the men's and women's restrooms are placed side-by-side near the entrance for easy access. The third restroom is located on the north side with independent access, ensuring user privacy and safety.
城市客厅与卫生间区域通过中庭分隔,互不干扰;中庭区域布置休闲座椅,满足人群临时驻留等候的需求;客厅面向广场中心,与景观的挑台和下沉草坪互相呼应,其内部设置休憩空间、自动售卖、直饮水、充电装置、休息座椅等;卫生间区域划分为男卫女卫和第三卫生间,男卫女卫并列设置,靠近入口区域,便于寻找;第三卫生间布置于北侧,独立出入,保证使用者的隐私安全。

© 陈旸
In this project, the designers responded to the terrain with elevation differences and the retained trees by employing a continuously undulating roof and apertures. This response generated interesting variations in light and shadow, dialogues in sightlines, and rich under-eave spaces.
在本项目中,设计师基于对场地周边有高差的地形和保留树木的分析,以连续起伏的屋顶和洞口回应环境,由此产生有趣的光影变化、视线对话关系及丰富的檐下空间。
© 陈旸