海口高新力映顺影院/壹加合作
Haikou GAOXINGLI Insun Cinema / One Plus Partnership
独特的设计理念:海口高新力映顺影院的设计独具匠心,以砖材料为主题,源于沙滩沙子制成的砖块与海洋建立了独特联系。巧妙放置如波浪般的砖块,让阳光照进影院,营造出独特氛围。从桌椅到墙面,从地板到天花板,每一处细节都精心设计,既美观又注重安全,为观众带来全新的观影体验。
创新的空间营造:影院内的两个礼堂各具特色。第一个礼堂的颜色如画笔掠过墙壁,立体织物似新鲜木头,椅子排列如花店工作室。第二个礼堂边缘面板模仿虎百合和粗糙砖块颜色,照明如边缘线,曲线轮廓既美观又安全,还能让人联想到南海。整体设计创新地营造出充满艺术感和舒适感的空间。

© Jonathan Leijonhufvud

© Jonathan Leijonhufvud
海口是中国的一个岛屿,它位于海南岛的北海岸,南海环绕着这个岛屿。我们想创造一些与海洋有关的东西,因为海口被海洋环绕,但我们想创造出一些独特的东西,我们不想使用像海洋一样的蓝色,所以我们决定用砖材料作为我们设计的主题。因为砖块是用沙滩上的沙子做的。看着这个,你可以在脑海中完美地构建一个故事。这是永恒的,就像砖块可以用来创造美丽耐用的空间一样,当它们吹灭生日蛋糕时,这些空间不会被磨损和改进。
Haikou is an island in China, it's situated on the north coast of Hainan Island, and the South China Sea is around the island. We wanted to create something related to the ocean because Haikou is surrounded by the ocean, but we wanted to create something unique and we didn't want to use the color blue like the ocean, so we decided to use the brick material for the theme of our design. Because bricks are made of sand which lay on the beach. Looking at this, you can perfectly build a story in your mind. This is timeless, just as bricks can be used to create beautiful and durable spaces that can't be worn down and improved as they blow out their birthday cake.

© Jonathan Leijonhufvud

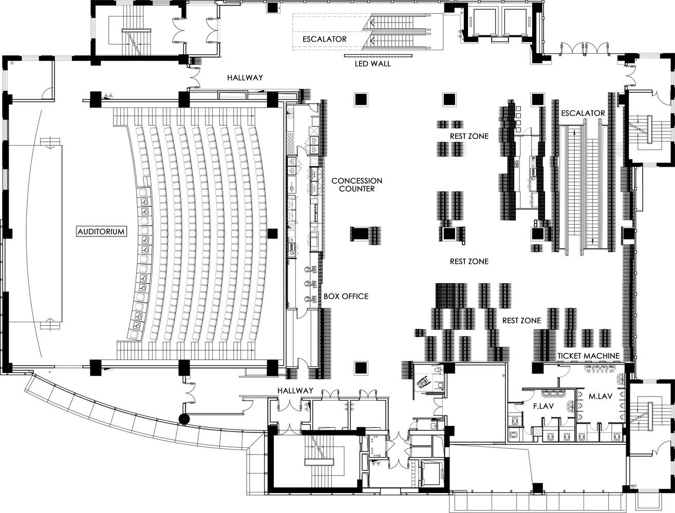
Floor Plan
在这家电影院里,有阳光照射进来。没有多少电影院有窗户可以让阳光照进来。我们精确地放置了看起来像波浪的砖块,这些波浪以这样的方式分层,你可以从任何角度看到它们。所有巧妙地放置在角落里的灯,以及只有抬头才能注意到的通风口。如果你从某个角度看,砖块的放置方式是,没有一块砖的长度是一样的。继续往前走,你可以看到桌子和椅子排列成波浪状,弯曲的末端像铃铛一样张开。砖块爬上墙,涂上了黄水晶的色调。如果你仔细观察这些砖块,它们表面很粗糙,但气氛比你想象的要柔和。大厅的精髓可以在最黑暗的黑暗中或光天化日之下捕捉到。砖块被仔细地重新排列,就像午夜图书馆的书一样。我四处走动,注意到地板上的小波浪,它们的两边都漆成了灰色,我一英里外都能看到。反射到它们上的灯光可以防止它们绊倒,所有这些不仅仅是为了美观,也是为了防止对客人和游客造成伤害。如果你环顾四周,你可以看到变成台面和隔间的波浪,所有的曲线都向不同的方向俯冲。
In this cinema, there is the sun that shines in. There aren't many cinemas with windows that allow the sun to shine in. We precisely placed bricks to look like waves, these waves were layered in such a way that you can see them all from any angle. All the skillfully positioned lights that hide themselves in the nook, and the air vent that you can only notice if you look up. If you looked at it from a certain angle the pieces of brick were placed so no piece would be the same length. Moving on you could see tables and chairs arranged with the tips of waves and curved ends flaring out like a bell. While the bricks walked up to make walls, painted with shades of topaz. If you observe the bricks in great detail, they are rough on the surface, but the atmosphere is softer than you imagine. The essence of the lobby can be captured in the darkest dark or in broad daylight. The bricks are carefully rearranged like the books of the midnight library. I walk around as I notice the small waves on the floor, they are painted gray on the sides which I can see from a mile away. Lights echoing onto them prevent those from tripping, all of this isn't just for the aesthetic, it's done to prevent damage to guests and visitors. If you look around you can see the waves that turn into countertops and booths, with all curves swooping in different directions.

© Jonathan Leijonhufvud

Floor Plan
在拐角处,天花板上流淌着管子,用天鹅绒般的织物制成的色块,你可以品尝到。颜色与氛围相匹配,因为任何人都能闻到幸福的气息,仿佛这是一种想法。光环像普罗米修斯的铁戒指一样漂浮在柱子周围。在地板上,你可以看到一个活泼的吉祥物抬头看着我,他的动作包括漂浮、跳舞和跳过地板。跳过的是一把铜质混合椅,它用秋天的空气拥抱着周围的人。我们没有失球;这些颜色就像孩子们在椅子和柱子周围涂上粉彩,把这些区域像笼子一样围在一起。
Around the corner, pipes that raced around the ceiling, blocks of color made with velvety fabric that you could taste. The colors matched the atmosphere as anyone could smell happiness as if it was a thought. Rings of light floated around the pillars like the Iron Ring of Prometheus. On the floor, you can see a bubbly mascot looking up right at me, with actions of him floating, dancing, and skipping over the floor. Skipping over is a copper blended chair as that hugs anyone around with autumn air. We didn't miss our goal; the colors resemble kids with pastels that paint around chairs and pillars that keep the areas together like a cage.

© Jonathan Leijonhufvud

© Jonathan Leijonhufvud
在第一个礼堂,你可以看到令人眼花缭乱的颜色像画笔在墙上移动一样掠过墙壁。颜色和纹理可以从周围的任何房间感受到。立体织物的切割方式使其看起来像一块新鲜的木头,它们与外部大厅的颜色重叠。椅子的温暖以选定的图案排列,看起来像一个花店的工作室,有淡淡的薰衣草和牡丹的香味。我们想用非原创的颜色和不简单的成分来制造波浪。
In the first auditorium, you could see the blinding colors swooping around the walls like a paintbrush maneuvering through the walls. The colors and texture could be sensed from any room around. The dimensional fabric was cut in such a way that it looked like a fresh piece of wood, they were overlapped with colors that connected to the lobby outside. The warmth of the chairs is arranged in the chosen pattern that looks like a florist's atelier with a faint scent of lavender and peonies. We wanted to make waves with colors that aren't original, with ingredients that aren't simple.

© Jonathan Leijonhufvud

© Jonathan Leijonhufvud

© Jonathan Leijonhufvud
在第二个礼堂,边缘用模仿虎百合和粗糙砖块的颜色的面板制成。像边缘线这样的照明从上到下。站在礼堂的顶部,曲线的轮廓高得足以避免受伤,这不仅是为了美观,而且从一个角度来看,你可以看到南中国海像一条温暖的毯子一样环绕着这个岛屿。听到温暖如欣快。
In the second auditorium, the edges are made with panels in colors that mimic tiger lilies and rough bricks. Illuminations like margin lines that went from up to bottom. Standing at the top of the auditorium the silhouettes of the curves that rose high enough to avoid those from getting hurt, again this isn't just for the aesthetic, but from an angle, you can see the slight resemblance of the South China Sea that wraps around the island like a warm blanket. Hearing the warmth like euphoria.

© Jonathan Leijonhufvud