种子绿:华丹亭/香蕉鱼
SEED GREEN: Hwadam Pavilion / bananafish
设计理念与可持续性:“种子绿:华丹亭”项目的设计理念独特且具有高度的可持续性。它巧妙地位于华丹林与华丹斋之间,利用升级的装饰材料,如以混合废塑料为骨料的水磨石、回收材料制成的墙壁和沙发面料等,充分体现了对环保的重视。设计过程考虑材料生产规格以减少浪费,家具半成品制造后现场组装,促进了整个过程的可持续性。这种可持续的设计理念为建筑行业树立了良好的榜样。
空间设计与功能性:该项目的空间设计十分巧妙。地面高度的差异使得咖啡馆看似独立,却通过重复的立面材料和形式展现其存在。松树艺术装置和镜子创造的“无限森林”让两个不同层高的空间自然融合。大厅中心的网状天花板结构和巨大桌子丰富了空间层次,服务空间的设置鼓励客户积极实践与自然共存和恢复的行为。整体设计既满足了功能性需求,又营造了独特的空间体验。


建筑师提供的文字描述Text description provided by the architects. Hwadam Forest is a barrier-free artificial forest created to restore Korean forests. On the opposite side of the forest, at the foot of the mountain, is an art gallery called Hwadamchae. 'seed green' is a bakery cafe designed to function as a "pavilion" between the two spaces.


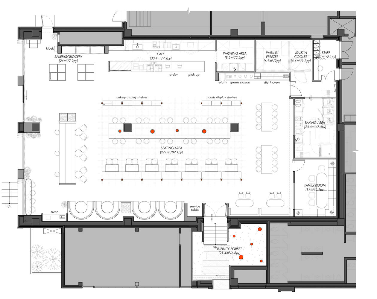
Plan

“种子绿”的地面高度比华丹斋低约两层,比华丹林高1.3米。咖啡馆似乎是一个独立的空间,因为在双面立面的角落里有一家便利店。因此,每个入口的立面都重复了相同的材料和形式,以展现“咖啡馆的存在”。松树被用作艺术装置,放置在商店的中心和通往森林的入口处,镜子被贴在墙上,创造了一个“无限森林”,使两个不同层高的空间自然地被视为一个空间。
The height of the floor at ground level of 'seed green' is about two stories lower than Hwadamchae, and 1.3 meters higher than Hwadam Forest. The cafe appears to be a separate space because there is a convenience store at the corner of the two-sided facade. So each entrance's facade repeats the same material and form to reveal "The presence of the cafe." Pine trees were used as artistic installations, placed in the center of the store and at the entrance towards the forest, and mirrors were attached to the wall to create an 'infinite forest', allowing the two spaces with different floor heights to be naturally perceived as one space.

该项目利用了升级的装饰材料。立面柱和10米长的桌子以混合废塑料作为骨料制成的水磨石为特色。服务台和展馆天花板采用定向刨花板和木丝板建造。墙壁和沙发面料由每码50个PET瓶的回收材料制成。设计过程考虑了材料的生产规格,以尽量减少材料浪费。所有家具都是在配备环保设施的车间内作为半成品制造的,然后在现场组装,以促进整个过程的可持续性。
The project utilizes upcycled finishing materials. The facade columns and 10-meter-long table feature terrazzo made by mixing waste plastic as aggregate. The service bar and the pavilion ceiling are constructed with oriented strand board and wood wool panels. The wall and sofa fabric are made from recycled material sourced from 50 PET bottles per yard. The design process took into account the production specifications of the materials to minimize material waste. All the furniture was manufactured as semi-finished products in a workshop equipped with environmental facilities and was then assembled on-site to promote sustainability throughout the process.

Sketch


大厅的中心是一个网状天花板结构,宽12米,高7.5米,借用了亭子的形式,有15根柱子支撑着它。柱子之间根据需要安装了隔板、展示架或内置沙发来分隔空间。由于天花板结构和立柱,座椅的形状变得更加多样化。在这个展馆的中心是一张由10米长的废塑料制成的巨大桌子,这样游客就可以分散开来聊天了。由木毛板制成的天花板结构也具有吸音效果,使其在“友好交谈”的主题中更加有效。咖啡馆内的三个服务空间大约是典型咖啡馆的三倍大,都是用回收材料制成的。服务空间是鼓励客户积极实践与自然共存和恢复的各种行为的空间。它包括一个用于清洗玻璃杯的空间,一个用于加热或包装剩余食物的空间,以及一个在离开咖啡馆之前用于分离和丢弃各种垃圾的空间。“种子绿”的作用是让客户在这个空间里看到、触摸和感受大自然的良性循环,并进一步与他人分享和传播他们的体验。
At the center of the hall is a net-shaped ceiling structure measuring 12m wide and 7.5m high, borrowed from the form of a pavilion, and 15 columns supporting it. Between the columns, partitions, display shelves, or built-in sofas are installed as needed to divide the space. The shape of the seats has become more diverse due to the ceiling structure and columns. At the center of this pavilion is a huge table made of 10m pieces of waste plastic, so that visitors can spread out and talk. The ceiling structure made of wood wool boards also has a sound-absorbing effect, making it more effective in the theme of 'having a friendly conversation'. The three service spaces inside the café are about three times larger than a typical cafe and are all made of upcycled materials. The service spaces are spaces that encourage customers to actively practice various actions for coexistence and recovery with nature. It consists of a space for washing tumblers, a space for warming or packaging leftover food, and a space for separating and throwing away various types of trash, before leaving the café. The role of 'seed green' is to allow customers to see, touch, and feel the virtuous cycle of nature in this space, and further to share and spread their experiences with others.