10th Lane Residential/True Thing Design Studio
10号巷弄住宅 / True Thing Design Studio
设计理念的精妙运用:该项目最引人入胜之处在于其对场地历史和文化背景的深刻理解和巧妙运用。设计者以“10号巷”这一独特的地址为灵感,将其转化为贯穿整个设计的核心理念。这种对场地文脉的尊重和回应,体现在对原有建筑结构的保留和改造,以及对“室内小巷”空间意象的构建。通过选择性地拆除墙体,引入光线和通透感,设计师成功地将联排别墅的狭窄空间转化为富有深度和节奏感的体验,赋予了建筑新的生命力,也向我们展示了如何通过设计来解读和传承历史。
空间功能的创新与融合:项目在空间功能布局上展现了卓越的创新性。设计师以二楼的楼梯为界线,巧妙地划分了共享工作区和私人住宅区,实现了功能上的平衡。此外,住宅单元入口处整合了衣柜和洗衣功能,这不仅考虑了后疫情时代人们对卫生的重视,也体现了对居住者生活方式的深刻洞察。三楼的设计更是别具匠心,通过减少睡眠空间,扩大共享区域,并采用隐藏式枢轴门,创造了一种开放、连续的空间体验,促进了人与人之间的交流,也增加了居住的舒适度。
材料、光线与细节的完美结合:项目的另一大亮点是材料、光线和细节的精妙结合。在保留原有砖砌结构的基础上,设计师通过不同尺度的开口设计,引入了自然光线,营造出丰富的光影效果。这种对光线的巧妙运用,不仅增强了空间的视觉层次,也赋予了建筑独特的氛围。同时,对细节的极致追求也体现在对材料的选择和处理上,以及对隐藏式枢轴门等设计元素的精心打造。这些细节的完美呈现,共同构成了这个项目的整体美学,展现了设计师对建筑艺术的深刻理解和精湛技艺。

© Yi-Hsien Lee and Associates YHLAA

© Yi-Hsien Lee and Associates YHLAA
This building is located within the former height restricted area of the old Shuinan Airport site. This used to be low-density farmland and vegetable gardens, interwoven into a winding maze of alleys. After the urban reconstruction, the only remaining address that could no longer be accurately located was "Lane 10", which became both the origin of the project name and the source of its design concept.
这座建筑位于老水南机场旧址曾经的限高区域内。这里曾是低密度的农田与菜园,交织成一片蜿蜒曲折的小巷迷宫。经历城市重建后,唯一留存下来的是一个无法再精确定位的地址 —— “10 号巷”,它既成为了项目名称的由来,也成为了其设计理念的源头。

© Yi-Hsien Lee and Associates YHLAA

© Yi-Hsien Lee and Associates YHLAA

© Yi-Hsien Lee and Associates YHLAA

© Yi-Hsien Lee and Associates YHLAA
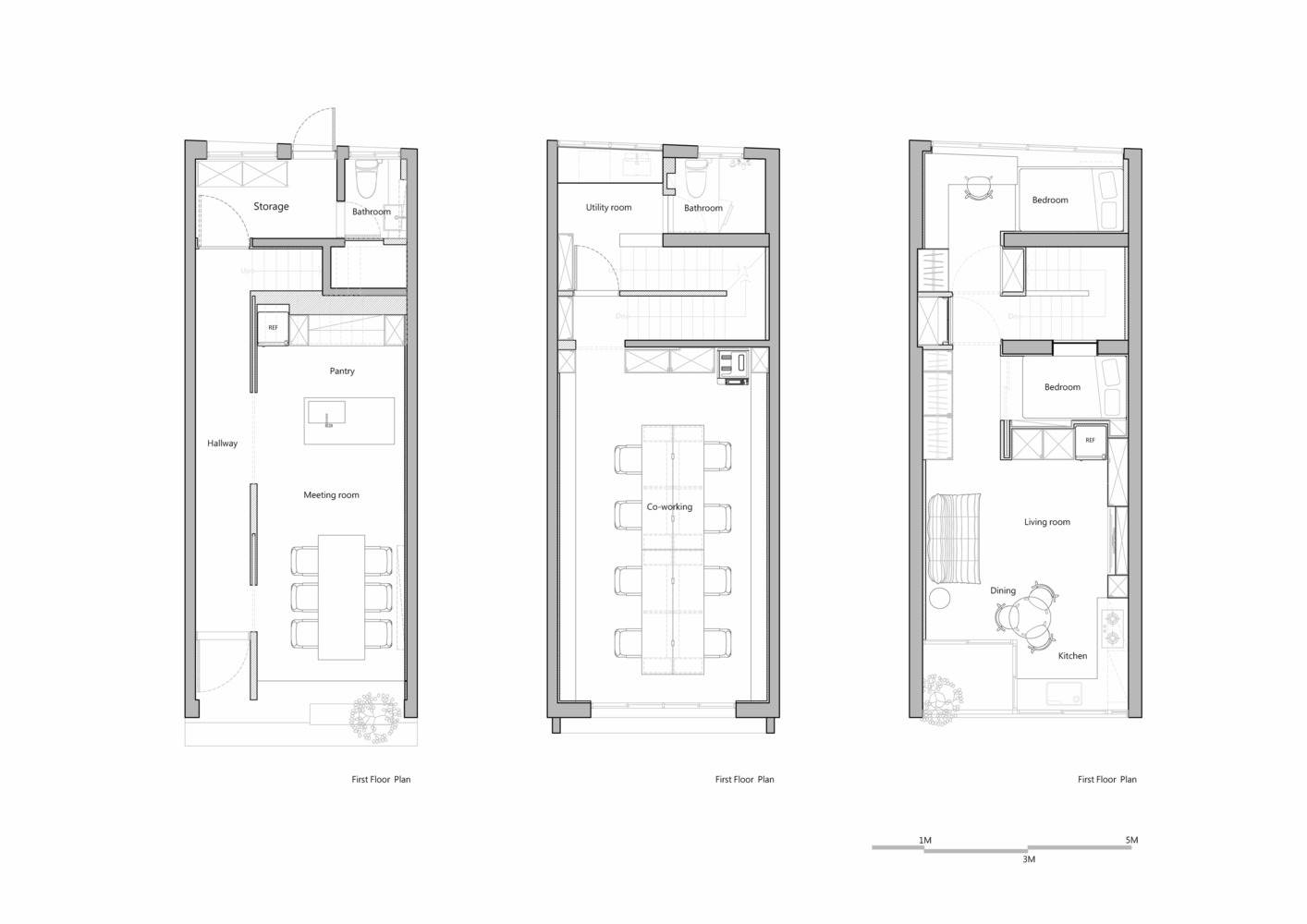
This project has renovated a three story townhouse with a history of 45 years. The spatial function has been re planned with the central staircase on the second floor as the dividing line: one side serves as a shared workspace, and the other side serves as a private residence.
该项目对一栋有着 45 年历史的三层联排别墅进行了改造。以二楼中央楼梯为分界线,对空间功能进行了重新规划:一侧作为共享工作空间,另一侧作为私人住宅。

© Yi-Hsien Lee and Associates YHLAA
In the first floor office, selective demolition work revealed the brick structure of the old house. By designing openings of different scales, light and transparency are introduced, transforming the narrow layout of row houses into deep and rhythmic "indoor alleys".
在一楼办公室中,选择性拆除作业露出了老房子的砖砌结构。通过不同尺度的开口设计,引入了光线与通透感,将狭窄的联排别墅布局转变为富有深度与节奏感的“室内小巷”。

© Yi-Hsien Lee and Associates YHLAA

© Yi-Hsien Lee and Associates YHLAA

© Yi-Hsien Lee and Associates YHLAA

© Yi-Hsien Lee and Associates YHLAA
In the residential unit, the entrance integrates wardrobe and laundry functions, allowing users to clean and change clothes as soon as they return home - this reflects the importance people attach to hygiene and personal space in the post pandemic era.
在住宅单元内,入口处整合了衣柜与洗衣功能,使用户一回到家就能完成清洁与更衣 —— 这体现了后疫情时代人们对卫生和个人空间的重视。

平面图
The third floor prioritizes spacious shared areas and minimizes sleeping space. The bedroom door adopts a hidden pivot design, which can be completely hidden into the wall when opened, weakening the spatial boundaries and creating an atmosphere of continuous coexistence without separation.
三楼以宽敞的共享区域为优先,将睡眠空间压缩至最小。卧室门采用隐藏式枢轴设计,开启时可完全隐入墙内,弱化了空间界限,营造出一种分而不隔、连续共存的氛围。

© Yi-Hsien Lee and Associates YHLAA

© Yi-Hsien Lee and Associates YHLAA