Mooin公寓/KC设计工作室
Mooin Apartment / KC Design Studio
空间布局与家庭氛围:Mooin公寓的设计核心在于营造温馨的家庭氛围,这通过对公共空间的精心规划得以实现。设计师充分利用空间,打造了一个开放、舒适的共享环境,这与业主重视家庭互动、希望创造温馨氛围的愿望相契合。下沉式客厅的设计是该项目的亮点之一,它不仅定义了一个专属的私密空间,又通过高架地板巧妙地分隔了不同功能区域,例如餐厅和书房。这种布局方式鼓励家庭成员之间的互动,同时也满足了不同生活场景的需求,体现了设计师对空间利用和家庭关系的深刻理解。
材料运用与光影效果:在材料的运用上,Mooin公寓展现了精湛的搭配技巧。水泥的细腻质感与老木材的粗犷表现形成了鲜明的对比,仿佛空间中一幅富有韵味的画作。这种对比不仅增强了空间的视觉层次,也赋予了空间独特的个性。同时,设计师巧妙地运用了玻璃砖,其半透明性软化了自然光线,营造出开放、宁静的氛围。光线的巧妙运用使得空间充满了生机和活力,在城市环境中营造出一种轻松、温暖的居住体验,从而让居住者感受到内心的平静与平衡。
细节设计与空间延伸:Mooin公寓的细节设计同样值得称赞。设计师通过“留白”的手法,使得视线可以在空间中自由移动,从而增强了空间的通透感和流动性。木柱的运用也延伸了整体空间感,使得空间在视觉上更加开阔。这种对细节的关注,使得空间在视觉上更加和谐统一。总而言之,Mooin公寓通过材料、光线和层次的重叠与交织,创造出一种轻松温暖的生活氛围,是对城市喧嚣的一种回应。它将居住者的需求、材料的特性、以及光影的变化完美地融合在一起,呈现出一个令人印象深刻的居住空间。

© Yi-Hsien Lee

© Yi-Hsien Lee
建筑师提供的文字描述。业主重视家庭互动,希望通过设计营造温馨的氛围。因此,最大限度地利用公共空间,创造一个所有家庭成员共享的开放舒适的环境。
Text description provided by the architects. The owner values family interaction and hopes to create a warm atmosphere through design. Therefore, the public space is maximized to create an open and comfortable environment shared by all family members.

© Yi-Hsien Lee

© Yi-Hsien Lee

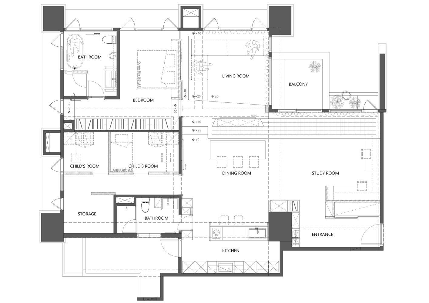
Floor Plan

© Yi-Hsien Lee
主人喜欢下沉式客厅。在平板基础上,该设计通过局部立面和分层堆叠巧妙地区分了功能,延伸到餐厅隔间和书房沙发床。下沉区域定义了一个专属空间,高架地板自然地将该区域分隔开来,以满足生活中的各种需求。
The owner loves a sunken living room. On a flat slab base, the design cleverly differentiates functions through partial elevation and layered stacking, extending to the dining room booth and study room daybed. The sunken area defines an exclusive space, and the elevated floor naturally divides the area to meet diverse needs in life.

© Yi-Hsien Lee
在材料方面,水泥的细腻质感是基础,而老木材的丰富表现力则形成了鲜明的对比,就像空间中的一幅大画。在光源方面,玻璃砖的半透明性软化了自然光,营造出开放宁静的氛围,赋予空间丰富的生活节奏。
In terms of materials, the delicate texture of cement serves as the base, while the rich expressions of old wood create a sharp contrast, resembling a large painting in the space. As for the light source, the translucency of glass bricks softens the natural light, creating an open and tranquil atmosphere and endowing the space with a rich rhythm of life.

© Yi-Hsien Lee

© Yi-Hsien Lee
通过离开空间的技术,视线可以自由移动。木柱延伸了整体空间感。通过材料、光线和层次的重叠和交织,营造出一种轻松温暖的生活氛围,让人们在城市的喧嚣中回归纯净和平衡。
Through the technique of leaving space, sight is allowed to move freely. The wooden pillars extend the overall sense of space. By overlapping and interweaving materials, light, and layers, a relaxing and warm living atmosphere is created for people to return to purity and balance in the hustle and bustle of the city.

© Yi-Hsien Lee