石语住宅/KC设计工作室
Stone Whisper Residence / KC Design Studio
空间与藏品的对话:“石语住宅”的核心在于巧妙地将居住空间与藏品展示融为一体。设计师敏锐地捕捉到主人对生活的热爱和对社交的需求,通过创造开放、自由、流动的空间,引导人们在移动中自然而然地欣赏藏品。这种设计理念颠覆了传统的展示模式,将藏品融入空间叙事,使其成为空间语言的一部分。设计师注重藏品与人之间的互动,而非仅仅将其作为装饰。这种设计手法赋予了住宅独特的个性,也体现了设计师对生活方式的深刻理解和对空间体验的极致追求,在细节处展现出对美学的深刻理解。
光影与材质的诗意表达:该项目在光影和材质的运用上堪称典范。设计师巧妙运用半透明屏幕和照明家具,营造出微妙的视觉层次,为空间增添了诗意。光线不仅照亮了藏品,更塑造了空间的氛围,使整个住宅充满静谧感。此外,木材、金属、玻璃等不同材质的巧妙搭配,在深色调的基底下,营造出低调、内敛而富有层次感的氛围,实现了宁静与张力的完美平衡。这种对材料的精准把握,以及对光线运用的极致追求,让空间在视觉和触觉上都极具魅力,展现了建筑师精湛的专业技能。
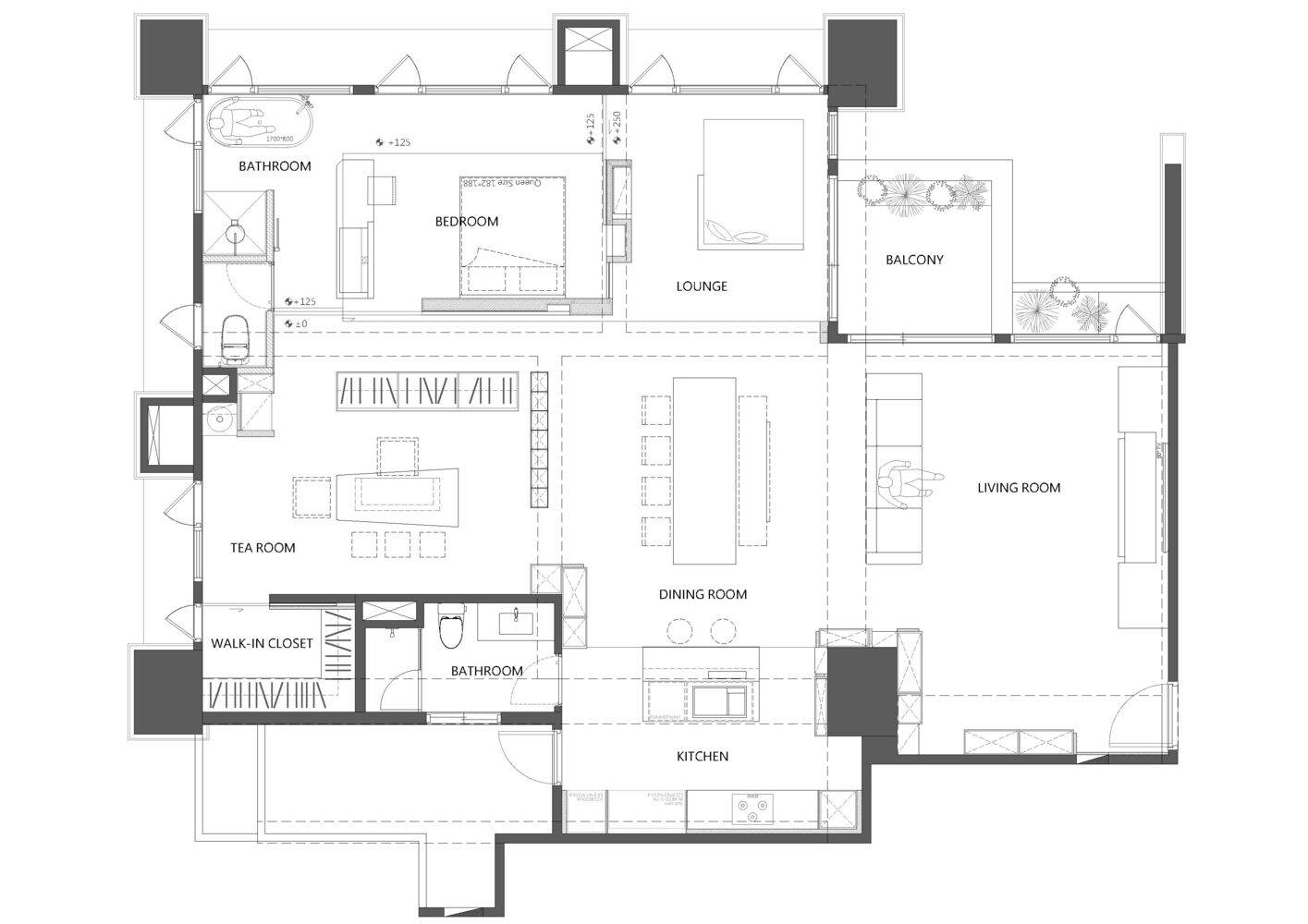
流动性与功能性的和谐统一:“石语住宅”在空间布局上展现了高度的流动性和功能性的和谐统一。设计师突破了传统实体墙的限制,将存储功能沿墙面延伸,并以非全高柜体定义不同的空间区域。这种设计手法既保证了空间的开阔性,又满足了收纳需求。一致的地板、天花板和间接照明设计,进一步强化了空间的视觉流动感和延伸感。平面图的呈现也清晰地展示了这种设计理念。这种既注重空间流动性,又兼顾功能性的设计,体现了设计师对空间规划和生活方式的深刻理解,创造了一个既舒适又充满艺术气息的居住环境。

© Yi-Hsien LEE (YHLAA)

© Yi-Hsien LEE (YHLAA)
建筑师提供的文字描述。主人是一对热爱生活的夫妇。他们喜欢收集和邀请朋友到家里。在我们的设计中,我们考虑了藏品与人之间的互动,并希望创造一个开放、自由、流动的空间,让人们在移动时自然地欣赏藏品。就像空间语言的一部分一样,每一件作品都低调而富有表现力。
Text description provided by the architects. The owners are a couple who loves life. They enjoy collecting and inviting friends to their home. In our design, we consider the interaction between the collections and the people and hope to create an open, free, and flowing space that allows individuals to appreciate the collections naturally as they move around. Like a part of the spatial language, each piece of work is low-profile but rich in presence.

© Yi-Hsien LEE (YHLAA)

© Yi-Hsien LEE (YHLAA)

© Yi-Hsien LEE (YHLAA)

Floor Plan

© Yi-Hsien LEE (YHLAA)

© Yi-Hsien LEE (YHLAA)
部分藏品被放置在光线勾勒出的背景墙上。半透明的屏幕和照亮的家具进一步创造了微妙的视觉层次,增添了诗意的感觉。在不同于传统实体墙隔墙的空间中,我们沿着墙壁扩展了存储功能,并定义了非全高橱柜的区域。通过一致的地板、天花板和间接照明,我们创造了一种视觉流动感,并强调了空间的延伸感。
A part of the collections is placed on the backdrop wall outlined by light. The translucent screen and illuminated furniture further create subtle visual layers and add a poetic feeling. In a space different from traditional solid wall partitions, we extend the storage function along the wall and define areas with non-full-height cabinets. Through the consistent floor, ceiling, and indirect lighting, we create a sense of visual flow and emphasize a sense of extension in the space.

© Yi-Hsien LEE (YHLAA)

© Yi-Hsien LEE (YHLAA)

© Yi-Hsien LEE (YHLAA)
整体深色调伴随着低调、雾状的质感。木材、金属、玻璃和光线融为一体,使空间在宁静和紧张之间达到平衡,展现出一种内敛但层次丰富的氛围。
The overall dark tone is accompanied by a low-profile, foggy texture. Wood, metal, glass, and light are incorporated, allowing the space to achieve a balance between tranquility and tension, showcasing a reserved but richly-layered atmosphere.

© Yi-Hsien LEE (YHLAA)