TEC能源办公室/MRDK
TEC Energy Office / MRDK
设计概念的深度融合:该项目最令人印象深刻的方面在于其对设计概念的深度融合。它巧妙地将20世纪60年代的建筑美学与现代设计语言相结合,创造出一种既复古又前卫的独特氛围。设计师并没有简单地复刻历史元素,而是从贝聿铭设计的标志性建筑Place Ville Marie Tower中汲取灵感,并将其转化为当代设计语汇。例如,入口处的几何屏风墙,不仅是对蒙特利尔建筑历史的致敬,更营造了一种独特的空间过渡感,引人入胜。这种设计策略体现了设计师对历史、文化和现代设计的深刻理解和巧妙运用。
空间布局的创新与功能性:项目的另一个亮点在于其对工作空间布局的创新。它打破了传统的开放式办公空间模式,通过精心设计的多元化区域,如休息区、绿植角落、电话亭等,来促进协作与互动。这种设计理念不仅提升了工作效率,也创造了更舒适、更人性化的办公环境。尤其值得称赞的是,设计师巧妙地利用了厨房和用餐区的位置,使其成为一个能捕捉自然光、提供城市全景,并促进交流与协作的中心。这种空间布局的精心设计充分体现了设计师对功能性和用户体验的深刻考量。
对细节的极致追求与材料的巧妙运用:该项目对细节的极致追求和材料的巧妙运用是其成功的关键。声学设计是营造舒适工作环境的关键,设计师通过悬挂的毛毡挡板和Tectum隔音板的运用,有效控制了环境噪音,并将其与建筑语言相融合,美观且实用。更令人赞叹的是,设计师将Tectum隔音板抽象地分解为艺术品,巧妙地呼应了整个设计主题。此外,私人办公室的设计,灵感来源于Place Ville Marie Tower的独特形式和材料,通过洞石和铝等材料的运用,营造出一种永恒的优雅感,充分体现了设计师对细节的极致追求,以及对建筑与环境的完美融合。

© Alex Lesage

© Alex Lesage
建筑师提供的文字描述广场大厦内,将20世纪60年代美学的永恒魅力与现代设计的流畅线条融为一体。该项目重新构想了传统的开放式工作空间,营造了一种既温馨又精致的氛围。
Text description provided by the architects. Nestled within the I.M. Pei's iconic Place Ville Marie tower, TEC Energy's new offices blend the timeless charm of the 1960s aesthetic with the sleek lines of contemporary design. This project reimagines traditional open-plan workspaces, crafting an atmosphere thatis both welcoming and refined.

© Alex Lesage

© Alex Lesage
进入后,游客会被召唤穿过一个由几何屏风墙包围的门厅,屏风墙由受附近发电站自然主义美学启发的街区组成。对蒙特利尔建筑历史的致敬是进入工作空间的独特门户。
Upon entry, visitors are beckoned through a vestibule enclosed by a geometric screen wall composed of blocks inspired by thebrutalist aesthetic of a nearby power station. This nod to Montreal's architectural history serves as a distinct gateway into theworkspace.

© Alex Lesage
多功能的厨房和用餐区地理位置优越,可以捕捉自然光,并提供蒙特利尔市中心的全景,是会议和协作的中心。以城市天际线为背景,这个空间成为了办公室的活力中心。
The versatile kitchen and dining area, strategically positioned to capture natural light and offer sweeping vistas of downtownMontreal, serves as a hub for meetings and collaboration. With the urban skyline as its backdrop, this space becomes the dynamiccenterpiece of the office.

© Alex Lesage

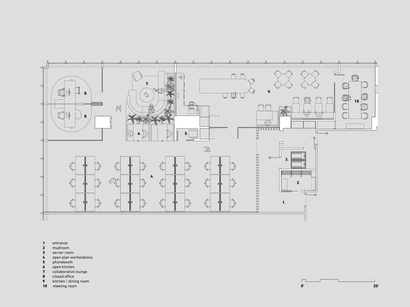
Plan

© Alex Lesage
开放式布局促进了协作和互动,包含了各种突破区域。一个为家庭舒适而设计的僻静休息区与一个绿树成荫的角落和相邻的座位并置,在划定工作空间的同时促进了同事之间的对话。此外,相邻的电话亭为员工提供了隐私和不间断的工作流程。
Promoting collaboration and interaction, the open-plan layout incorporates various breakout areas. A secluded lounge areadesigned for home comforts is juxtaposed with a greenery-filled nook and adjacent seating, fostering dialogue among colleagues while delineating workspaces. Additionally, an adjacent phone booth offers privacy and uninterrupted workflow for employees.

© Alex Lesage

© Alex Lesage
声学因素对于营造有利的工作环境至关重要,它们在整个空间中无缝集成。悬挂的毛毡挡板与相邻办公楼的节奏相呼应,有助于抑制环境噪音,隐藏暴露的天花板结构。在开放式办公室中用作护墙板的Tectum隔音板被Caravan工作室抽象地分解为三件艺术品,以展示T.E.C。
Acoustic considerations, vital for a conducive work environment, are seamlessly integrated throughout the space. Suspended feltbaffles, echoing the rhythm of neighboring office towers, help to dampen ambient noise and conceal the exposed ceiling structure.Tectum acoustic panels, used as wainscoting in the open office, are broken up by 3 pieces of art by Caravan studio abstractlyspelling out T.E.C.

© David Dworkind

© David Dworkind
两间私人办公室坐落在套房的玻璃角落,灵感来自PlaceVille Marie Tower的独特形式和材料。利用洞石和铝,这些空间散发出永恒的优雅,与该网站的象似性产生共鸣。
The two private offices, nestled in the glazed corner of the suite, draw inspiration from the distinctive form and materials of the PlaceVille Marie Tower. Utilizing travertine and aluminum, these spaces exude a timeless elegance that resonates with the site's iconicidentity.

© David Dworkind