HORONG面包房/设计工作室Maoom
HORONG Bakery / Design Studio Maoom
空间氛围的营造:HORONG面包房最引人注目的亮点在于其对空间氛围的精准营造。设计师巧妙地运用中性米色调、充足的自然光线以及温暖的木质材料,构建出一个宁静、舒适、温馨的内部环境。这种设计理念紧扣“灯笼”主题,旨在为快节奏的都市生活提供一处休憩之所。宽敞的窗户不仅引入了自然光,更与周边的城市景观形成对比,强化了室内空间的私密性和安全感。柱子和天花板的圆形细节,光线的运用,无不体现了设计师对细节的极致追求,使得整个空间充满温度与生命力。
细节设计与功能布局:该项目的精髓体现在对细节的精心设计以及功能布局的巧妙安排。重复出现的圆形元素赋予了空间节奏感和视觉趣味,同时又增添了柔和感。座位区被设计成独立的“岛屿”,既保证了私密性,又方便顾客放松。靠窗的座位设计更是充分利用了自然光,营造出舒适惬意的氛围。面包展示区的设置则巧妙地利用了视觉和嗅觉,面包的香气与室内氛围相辅相成,进一步提升了顾客的体验。这些细节设计共同作用,使得面包房不仅仅是一个消费场所,更是一个能抚慰人心的休憩空间。
主题概念的深化与升华:“灯笼”的主题概念贯穿整个设计,并被深化和升华。从建筑师的文字描述到空间的设计元素,都紧紧围绕着“温暖”、“舒适”和“宁静”展开。设计师通过色彩、材质和光线的运用,将这种情感具象化。这种将抽象概念转化为具体设计语言的能力,是项目最为核心的价值所在。HORONG面包房的成功之处在于,它不仅仅是一座建筑,更是一个承载着情感、传递着温暖的场所。它以一种诗意的方式,回应了现代人对精神慰藉的需求,真正做到了以建筑服务于生活。

© Sungkee jin (soulgraph photography)

© Sungkee jin (soulgraph photography)
建筑师提供的文字描述Text description provided by the architects. Horong Bakery holds a warm story that begins with the gentle glow of a small lantern, flickering like a candle. On a dark night, as the soft and tranquil light of a lantern emerges, it warmly embraces its surroundings, creating a cozy atmosphere. With this sentiment in mind, Horong Bakery aims to offer a comforting space where people can take a moment to rest amidst the fast-paced city life.

© Sungkee jin (soulgraph photography)

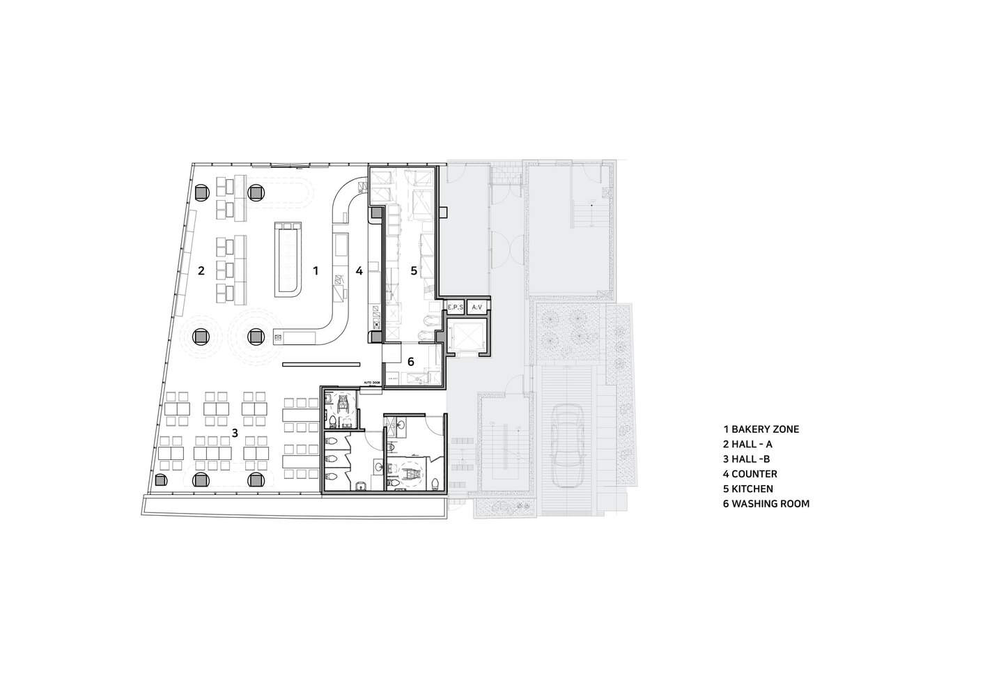
Floor Plan

© Sungkee jin (soulgraph photography)
这家面包店位于Godeok新城开发区的一角,坐落在荒凉的城市景观中,提供了一个可以放松日常生活疲劳的地方。中性米色色调和透过宽大窗户的自然光相协调,营造出宁静而诱人的氛围。这种设计让游客在温暖的空间中感到放松,唤起一种稳定和舒适的感觉——几乎就像在家里一样。值得注意的是,大柱子虽然宏伟,但提供了一种安全感,使空间感觉更加温馨。
Located in a corner of the Godeok New Town development area, this bakery stands amidst the stark urban landscape, offering a place of respite where one can melt away the fatigue of daily life. The neutral beige tones and the natural light streaming through wide windows harmonize to create a serene and inviting ambiance. This design allows visitors to feel at ease within the warmth of the space, evoking a sense of stability and comfort—almost like being at home. Notably, the large columns, while grand in presence, provide a sense of security, making the space feel even more welcoming.

© Sungkee jin (soulgraph photography)

© Sungkee jin (soulgraph photography)

© Sungkee jin (soulgraph photography)
柱子和天花板具有反复出现的圆形细节,为空间增添了宏伟和柔和。光线增强了这些结构的维度,赋予它们有节奏和动态的存在感,增加了视觉趣味和活力。同时,整体色调保持一致,营造出温和而平静的氛围,鼓励游客充分放松。
The columns and ceiling feature recurring circular details, adding both grandeur and softness to the space. Light enhances the dimensionality of these structures, giving them a rhythmic and dynamic presence that adds visual interest and vibrancy. Meanwhile, the overall color palette remains cohesive in a single tone, fostering a gentle and calming mood that encourages visitors to fully relax.

© Sungkee jin (soulgraph photography)
桌子和椅子沿着地板排列,由温暖的木质材料制成,每个座位区都设计成一个独立的岛屿,方便个人和私人放松。窗边座椅的位置可以最大限度地享受阳光,与自然光融为一体,营造出舒适的氛围。在空间的中心,面包店展示着新鲜出炉的食物,空气中弥漫着令人愉悦的香气。在这里,游客可以喝一杯热茶放松身心,摆脱一天的疲劳,享受片刻的宁静。在Horong Bakery,我们希望我们点燃的小灯能够聚集在一起,为人们的日常生活带来更大的温暖和舒适。
Tables and chairs, arranged along the floor, are made of warm wooden materials, with each seating area designed like an independent island, allowing for personal and private relaxation. The window-side seats are positioned to maximize the enjoyment of sunlight, blending with natural light to enhance the cozy atmosphere. At the center of the space, the bakery display is filled with freshly baked goods, spreading a delightful aroma throughout the air. Here, visitors can unwind with a warm cup of tea, letting go of the day's fatigue and embracing a moment of peace. At Horong Bakery, we hope that the small lights we kindle will come together, filling people's daily lives with even greater warmth and comfort.

© Sungkee jin (soulgraph photography)